ANLEGER AUFGEPASST!!! Einmalige Gelegenheit etwas ganz Besonderes in Schladming zu erwerben
Haus
- Mehrfamilienhaus,
8970
Schladming
Beschreibung der Immobilie
ANLEGERPREIS! "Schlüsselfertig"
Für weitere Auskünfte stehe ich Ihnen gerne zur Verfügung.
Die WOHNUNGEN können auch EINZELN ERWORBEN WERDEN!
Die Wohnungen stehen seit Anfang 2025 für die touristische Vermietung zur Verfügung.
Aufpreis: Abstellraum, Carportplatz und KFZ Abstellplatz im Außenbereich.
In ruhiger Wohnlage befindet sich das Neubau Projekt mit 3 separate Wohneinheiten - vielfältige Nutzung.
Der große Garten, die großzügige Grundrissgestaltung und die schöne Aussicht sind nur einige wenige Highlights die diese Liegenschaft bietet.
Betreten wird das Gebäude durch das Stiegenhaus, welches zu den einzelnen Wohneinheiten im Gartengeschoss und in den beiden Obergeschossen führt.
Nachträglicher Lifteinbau möglich (Bewilligung beim Bauamt muss noch eingereicht werden), Pläne dafür liegen bereits vor.
Sehr gute Badeausstattung, im gesamten Gebäude Fußbodenheizung, Parkettböden uvm.
Die Wärmeversorgung sowie die Warmwasseraufbereitung erfolgt mittels Wärmepumpe.
Erdgeschoss:
Top 1: ca. 70m² Wohnfläche mit Vorraum, Abstellraum, 1 Badezimmer, WC extra, großzügigen und hellen Wohn- Ess- Kochbereich sowie 2 Schlafzimmer. Eine Terrasse mit ca. 30m² und ein eigener Garten mit ca. 131m² bieten zusätzlichen Freiraum.
Obergeschoss:
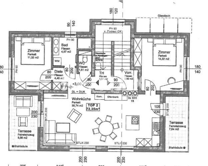
Top 2: ca. 73m² Wohnfläche mit Vorraum, Abstellraum, 1 Badezimmer, WC extra, großzügigen und hellen Wohn- Ess- Kochbereich sowie 2 Schlafzimmer. Zwei Balkone mit ca. 17m² (Aurichtung nach Osten und Westen).
Dachgeschoss:
Top 3: ca. 66m² Wohnfläche mit Vorraum, 1 Badezimmer, WC extra, großzügigen und hellen Wohn- Ess- Kochbereich sowie 1 Schlafzimmer. Drei Balkone mit ca. 73m² (Aurichtung nach Osten, Süden und Westen).
3 Carport-Parkplätze, 3 PKW-Abstellplatz Aussen und 3 Abstellräume (Kellerabteil) runden das Angebot ab.
Schladming - die steirische Sporthauptstadt in der Dachstein-Tauern-Region ist eines der größten Skizentren Österreichs und durch zahlreicher internationaler Weltcup-Rennen weit über die Grenzen Österreichs hinaus bekannt.
115 Pistenkilometer und 46 Skilifte bietet die 4-Berge Skischaukel in der Dachstein-Tauern-Region (Hauser Kaibling, Planai, Hochwurzen und Reiteralm). Ein besonderes Erlebnis ist auch der Dachstein Gletscher - 3000 m Freiheit - Dachstein Skywalk - Panoramarestaurant - Dachstein Super Snowboard Park - Langlaufen ohne Grenzen, Skifahren mit 6 Liftanlagen und Naturschnee das ganze Jahr über sprechen dafür.
Rund 60 km Qualitätsloipen mit schillernden Namen wie zum Beispiel Kristallloipe in wildromantischer Umgebung warten in Schladming Rohrmoos auf Dich. 50 Km präparierte Winterwanderwege laden zum Spazieren und Nordic Walking ein. Und das riesige Langlaufgebiet Ramsau/Dachstein ist nur wenige Kilometer entfernt. Begeistert werden Sie auch von der 7 km langen Naturrodelbahn sein, welche sowohl tags als auch nachts in Betrieb ist.
Wenn Sie Fragen haben oder eine Besichtigung wünschen rufen Sie uns bitte an oder schreiben eine E-Mail!
PS: BITTE BEACHTEN SIE, DASS WIR AUFGRUND DER NACHWEISPFLICHT GEGENÜBER DEM EIGENTÜMER NUR ANFRAGEN UNTER ANGABE DER VOLLSTÄNDIGEN ANSCHRIFT SAMT TELEFONNUMMER BEARBEITEN KÖNNEN, DIESEN ANFORDERUNGEN NICHT GERECHT WERDENDE ANFRAGEN MÜSSEN LEIDER UNBEANTWORTET BLEIBEN!
| Angaben gemäß gesetzlichem Erfordernis: | |||
| Heizwärmebedarf: | 47.0 kWh/(m²a) | ||
| Klasse Heizwärmebedarf: | B | ||
| Faktor Gesamtenergieeffizienz: | 0.72 | ||
| Klasse Faktor Gesamtenergieeffizienz: | A | ||
Eckdaten
| Objektnr: | 2445_2541 |
| Art: | Haus - Mehrfamilienhaus |
| Land: | Österreich |
| Baujahr: | ca. 2022 |
| Zustand: | Erstbezug |
| Möbliert: | Voll |
| Alter: | Neubau |
| Kaufpreis: | auf Anfrage |
| Provision: | 3.00 % |
| Wohnfläche: | 219,00 m² |
| Grundstücksfl.: | 485,00 m² |
| Zimmer: | 8 |
| Bäder: | 3 |
| WC: | 3 |
| Balkone: | 5 |
| Terrassen: | 1 |
| Stellplätze: | 3 |
| Heizwärmebedarf: | B 47,00 kWh/m²a |
| fGEE: | A 0,72 |
Ausstattung
Fußbodenheizung, Kabel/Satelliten-TV, Parkplatz
Internet und TV
Information zur Internet und TV Versorgung hier
Ihre persönliche Beratung
Michaela Schrempf
RE/MAX Nature 1 in Liezen
E m.schrempf@remax-nature.at
T +43361230262
H +43 3612 302 62-20