Penthousewohnung Neubauprojekt RITTIS LIVING
Wohnung
- Etage,
8972
Ramsau am Dachstein
Beschreibung der Immobilie
In einem attraktiven Haus mit insgesamt nur 3 Wohneinheiten, mit grandiosem Blick auf den nahen Dachstein.
Eine Immobilie zum Wohnen und Leben in allerbester Lage, noch dazu in unmittelbarer Nähe zum bekannten Rittisberg.
Durch die gegebene Zugangssituation inklusive Lift ist die Ausführung weitestgehend barrierefrei (ANPASSBARER WOHNBAU = mit einem relativ geringen Aufwand kann Barrierefreiheit hergestellt werden).
Die Widmung WR - Reines Wohngebiet bedingt die Begründung eines Hauptwohnsitzes.
Die hier angebotene Wohneinheit befindet sich im Obergeschoss,
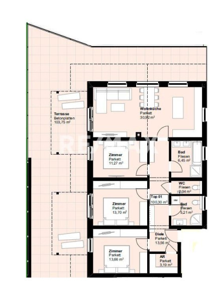
Gut 100m² Wohnfläche unterteilen sich dabei in Diele, Abstellraum, gesondertem WC, einem Badezimmer mit Dusche, einem zweiten Badezimmer mit Dusche und Wanne, einem wohnlichen Koch-Ess-Wohnbereich sowie 3 netten Zimmern.
Auf kürzestem Weg gelangt man auf die gewaltige Terrasse mit knapp 104m², nach Westen und zum Dachstein hin ausgerichtet und einem wahren Traum gleich kommend.
Die Wohnung mit den nach Norden hin riesigen Glaselementen sowie der großzügigen Hebe-Schiebetüre auf die Terrasse hinaus bietet ein mehr als attraktives Ambiente.
Bei den Wohn- und Schlafräumen sind Außenraffstores in elektrischer Ausführung vorgesehen.
Insektenschutz ist gegen Aufpreis möglich.
Im Wohnbereich befindet sich ein eigener Kaminanschluss.
Ein kleiner, eigener Abstellraum mit gut 9m² befindet im Kellergeschoss.
Dazu gibt es einen großzügigen, allgemeinen Abstellraum für Schi und Fahrräder.
Ein Carportplatz ist gegen einen Aufpreis von € 20.000.- fix reserviert und wird mit Kauf zum Eigentum, zum jeweils gleichen Aufpreis können bis zu 3 weitere Carportplätze mitgekauft werden.
Dazu ein Fixaufpreis für die bereits beauftragten und somit mit enthaltenen Zusatzausstattungsdetails, eine eigene E-Ladestation für Ihr Kraftfahrzeug, für Ausführungen aller Fenster und Türen mit hochwertigen Fliegengitterrollos sowie für die Sanitärkomplettierung (mit Ausnahme der Waschtische, diese sind mit der Einrichtung zu beauftragen), gesamt € 12.000.-
Das gesamte Objekt fügt sich wundervoll harmonisch in die gegebene Naturlandschaft ein,
bei der gesamten Konzeptionierung und Planung wurde ganz stark auf Stimmigkeit und Wohlfühlcharakter Bedacht genommen,
die bauliche Umsetzung erfolgt natürlich nur mit hochwertigen und der heutigen Zeit angepassten Materialien,
das Ergebnis sollte so ihren persönlichen Lebenstraum hier möglich machen....
Vor dem Bilderbuchpanorama der Dachsteinsüdwände liegt das Sonnenplateau von Ramsau am Dachstein (1.000 bis 3.000m).
Die Ferienlandschaft auf drei Etagen - Hochplateau, Almgebiet, Dachsteingletscher - bietet im Winter wie im Sommer unzählige Möglichkeiten für Familien und Kinder.
Mit Bewegung in der Natur, Genuss der regionalen Spezialitäten und Nutzen der vielen Freizeitaktivitäten finden Sie Ihre ganz persönliche Quelle der Kraft in Ramsau am Dachstein.
Das Langlaufstadion, der Rittisberg mit seinen Attraktionen, das Erlebnisbad, die diversen Geschäfte und Lokalitäten der Ramsau erwarten Sie...
Auf ein wirtschaftliches Naheverhältnis von RE/MAX Nature zum Abgeber wird ausdrücklich hingewiesen!
Für weitere Fragen bzw. Terminvereinbarungen rufen Sie bitte einfach an oder schreiben uns eine E-Mail.
PS: BITTE BEACHTEN SIE, DASS WIR AUFGRUND DER NACHWEISPFLICHT GEGENÜBER DEM EIGENTÜMER NUR ANFRAGEN UNTER ANGABE DER VOLLSTÄNDIGEN ANSCHRIFT SAMT TELEFONNUMMER BEARBEITEN KÖNNEN, DIESEN ANFORDERUNGEN NICHT GERECHT WERDENDE ANFRAGEN MÜSSEN LEIDER UNBEANTWORTET BLEIBEN!
| Angaben gemäß gesetzlichem Erfordernis: | |||
| Heizwärmebedarf: | 55.6 kWh/(m²a) | ||
| Faktor Gesamtenergieeffizienz: | 0.77 | ||
Eckdaten
| Objektnr: | 2445_2631 |
| Art: | Wohnung - Etage |
| Land: | Österreich |
| Baujahr: | ca. 2024 |
| Zustand: | Erstbezug |
| Alter: | Neubau |
| Kaufpreis: | 998.000,00 € |
| Provision: | 3.00 % |
| Wohnfläche: | 100,54 m² |
| Zimmer: | 4 |
| Bäder: | 2 |
| WC: | 2 |
| Terrassen: | 1 |
| Keller: | 9,37 m² |
| Heizwärmebedarf: | 55,60 kWh/m²a |
| fGEE: | 0,77 |
Ausstattung
Kamin, Zentralheizung, Personenaufzug, Kabel/Satelliten-TV
Internet und TV
Information zur Internet und TV Versorgung hier
Ihre persönliche Beratung
Fabio Perali
RE/MAX Nature 1 in Liezen
E f.perali@remax-nature.at
T +43361230262
H +43 36123026232
