TOP 1 - DIE ideale Wohnung für eine kleine Familie in einem NEUBAUPROJEKT IN TRAUMLAGE

Wohnung - Etage, 8962 Gröbming

Beschreibung der Immobilie

Hiermit dürfen wir Ihnen ein wirklich tolles Neubauprojekt vorstellen, für welches wir geeignete Käufer suchen :

Gelegen etwas außerhalb von Gröbming (vier Autominuten vom Zentrum entfernt), in Richtung Stoderzinken und im Ortsteil Winkl, werden hier fünf durchdachte und
klug ausgerichete Neubauwohnungen in massiver Holzbauweise entstehen.
Die Lage des Grundstücks kann sich sehen lassen: unzählige Sonnenstunden und eine angenehme Umgebung, verbunden mit
den Gröbminger Bergen - das garantiert Lebensqualität!

Heimische Firmen und Professionisten werden dafür Sorge tragen, dass alles in feinster Manier ausgeführt wird und Sie sich als
künftiger Bewohner entsprechend wohlfühlen werden.

Erfüllen Sie sich Ihren Traum von einem Heim im wunderschönen Gröbming! Ein Zweit-, Neben- oder Ferienwohnsitz wird
vonseiten der Gemeinde Gröbming ausdrücklich nicht gestattet!

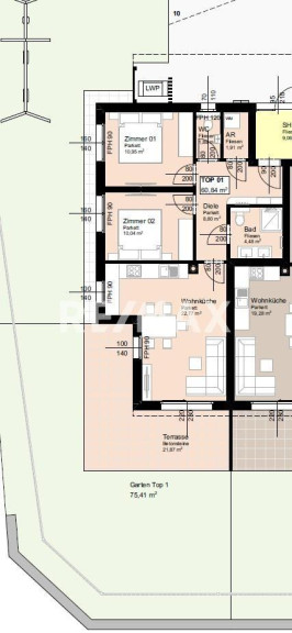
Die gegenständliche Wohnung TOP 1 ist im EG angesiedelt und hat bei einer Gesamtfläche von ca. 60,84m² folgende Raumaufteilung
vorzuweisen:
Diele ca. 8,80m²
WC ca. 1,89m²
Bad ca. 4,48m²
Abstellraum ca. 1,91m²
Zimmer 1 ca. 10,95m²
Zimmer 2 ca. 10,04m²
Wohnküche ca. 22,77m²
Terrasse ca. 21,87m²
Garten ca. 75,41m²
Keller ca. 6,85m²


Ein Carport-Stellplatz muss gegen den Aufpreis von €16.000,- dazugekauft werden; ein Freiparker ist im Aufpreis inkludiert.
Ein Kaminanschluss ist gegen den Aufpreis von €4.500,- brutto möglich.
Grundrissänderungen sind, wenn sie früh genug angefragt werden, im Rahmen der Möglichkeiten noch ausführbar.

Auf ein wirtschaftliches Naheverhältnis von RE/MAX Nature zum Abgeber wird ausdrücklich hingewiesen!

Die Marktgemeinde Gröbming ist nicht umsonst der Ort mit einem der größten Bevölkerungszuwächse im Ennstal: eine ausgezeichnete Infrastruktur, ein umfangreiches Vereins- und Freizeitangebot, aber nicht zuletzt die zentrale Lage im Tal machen es zu einem besonders lebenswerten Fleckchen.
Folgende Einrichtungen/ Angebote sind geboten:
katholische und evangelische Kirche
Einkaufszentrum (Pizzeria, Frisör, Bäckerei, Post, Florist, Supermarkt etc.)
Kindergarten, Volksschule, Mittelschule, Fachschule für Land- und Ernährungswirtschaft
ausgezeichnete Speiserestaurants
hauseigener Abenteuerberg (Stoderzinken) mit Zipline
im Winter Langlaufloipe
im Sommer unzählige Wander- und Radwege

Wenn Sie Fragen haben oder eine Besichtigung machen möchten, rufen Sie bitte einfach an oder schreiben uns eine E-Mail.
PS BITTE BEACHTEN SIE, DASS WIR AUFGRUND DER NACHWEISPFLICHT GEGENÜBER DEM EIGENTÜMER NUR ANFRAGEN UNTER ANGABE DER VOLLSTÄNDIGEN ANSCHRIFT SAMT TELEFONNUMMER BEARBEITEN KÖNNEN, DIESEN ANFORDERUNGEN NICHT GERECHT WERDENDE ANFRAGEN MÜSSEN LEIDER UNBEANTWORTET BLEIBEN!
Angaben gemäß gesetzlichem Erfordernis:
Heizwärmebedarf:55.9 kWh/(m²a)
Klasse Heizwärmebedarf:C
Faktor Gesamtenergieeffizienz:0.58
Klasse Faktor Gesamtenergieeffizienz:A+

Eckdaten

Objektnr: 2445_2775
Art: Wohnung - Etage
Land: Österreich
Baujahr: ca. 2026
Zustand: Erstbezug
Alter: Neubau
Kaufpreis: 325.000,00
Provision: 3.00 %
Wohnfläche: 60,84 m²
Zimmer: 3
Bäder: 1
WC: 1
Terrassen: 1
Stellplätze: 1
Garten: 75,41 m²
Keller: 6,85 m²
Heizwärmebedarf:  C  55,90 kWh/m²a
fGEE:  A+  0,58
Immobilie merken Exposé

Ausstattung

Erdwärme, Zentralheizung, Parkplatz


Internet und TV

Information zur Internet und TV Versorgung hier


Immobilie anfragen


Ihre persönliche Beratung

RE/MAX Nature 1 in Liezen

Marco Schwab

RE/MAX Nature 1 in Liezen

E m.schwab@remax-nature.at

T +4336123026241