"Neubau-Projekt" Repräsentative Wohnanlage in Aigen im Ennstal!

Wohnung - Etage, 8943 Aigen im Ennstal

Beschreibung der Immobilie

Die Begründung eines "ZWEITWOHNSITZES" ist möglich!

In einer sehr guten Lage - sie gilt als überaus beliebte Wohngegend und verbindet alle Vorzüge des Zentrums - entsteht diese monderne Wohnanlage.

Mit insgesamt 16 Wohnungen, barrierefrei, über ein zentral gelegenes Stiegenhaus bzw. einem Lift (vom Parkdeck bis zum Dachgeschoss) erreichbar.

Zum Verkauf stehen 5 Wohnungen im 2. Obergeschoss und 4 Wohnungen im Dachgeschoss.

Ideale Grundrisse und Wohnungsgrößen zwischen 51m² und 82m² bieten Singles, Paaren und Familien mit Kindern ideale Voraussetzungen für zeitgemäßes Wohnen.

Für alle Wohnungen steht ein eigener Garagen- oder Carportabstellplatz zur Verfügung und jeder Wohnung ist ein Abstellraum zugeteilt.
Weiteres werden genügend Besucherparkplätze errichtet

Bei der Wahl der Baustoffe wird besonders auf Hochwertigkeit geachtet, der Anspruch auf maximale Lebensqualität und minimalen Energieverbrauch wird bestmöglich erfüllt.

Die sehr gute Badeausstattung, die Fernwärme-Fußbodenheizung sowie Parkettböden vom Feinsten sind Teile der schlüsselfertigen Ausführung.

Die Preisangaben gelten für die Ausführung "SCHLÜSSELFERTIG"

Im Moment können sie bei Kauf die Planung wie auch die Ausstattung noch in einem gewissen Ausmaß mit beeinflussen.

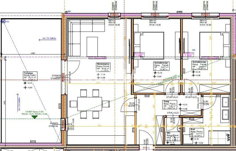
Die hier angebotene Wohnung "Top 11" befindet sich im 2. Obergeschoss und bietet auf ca. 80m² Wohnfläche mit Diele, Vorraum, Badezimmer, WC extra, großzügigen und hellen Wohn- Ess- Küchenbereich sowie 2 Schlafzimmern ein perfektes Wohnambiente. Eine ca.32m² große Terrasse bietet zusätzlichen Freiraum.

Dieser Wohnung ist ein Carportstellplatz zugeteilt (obligatorisch).
Zusatzkosten: EUR 15.000,-

Geplanter Baubeginn ca. Sommer 2025.

Aigen im Ennstal bietet ziemlich alles was man sich wünschen kann...intakte Naturlandschaften, Berge, Badeseen, einen Golfplatz, Skigebiete rundum...Freizeitaktivitäten sowohl im Sommer als auch als im Winter unmittelbar vor Ort oder in nächster Nähe.

Für weitere Fragen bzw. Terminvereinbarungen rufen Sie bitte einfach an oder schreiben uns eine E-Mail.

PS: BITTE BEACHTEN SIE, DASS WIR AUFGRUND DER NACHWEISPFLICHT GEGENÜBER DEM EIGENTÜMER NUR ANFRAGEN UNTER ANGABE DER VOLLSTÄNDIGEN ANSCHRIFT SAMT TELEFONNUMMER BEARBEITEN KÖNNEN, DIESEN ANFORDERUNGEN NICHT GERECHT WERDENDE ANFRAGEN MÜSSEN LEIDER UNBEANTWORTET BLEIBEN!
Angaben gemäß gesetzlichem Erfordernis:
Heizwärmebedarf:36.1 kWh/(m²a)
Klasse Heizwärmebedarf:B
Faktor Gesamtenergieeffizienz:0.8
Klasse Faktor Gesamtenergieeffizienz:A+

Eckdaten

Objektnr: 2445_2794
Art: Wohnung - Etage
Land: Österreich
Baujahr: ca. 2024
Zustand: Erstbezug
Kaufpreis: 376.500,00
Provision: 3.00 %
Wohnfläche: 82,41 m²
Zimmer: 2
Bäder: 1
WC: 1
Terrassen: 1
Stellplätze: 1
Keller: 6,62 m²
Heizwärmebedarf:  B  36,10 kWh/m²a
fGEE:  A+  0,80
Immobilie merken Exposé

Ausstattung

Zentralheizung, Personenaufzug, Garage


Internet und TV

Information zur Internet und TV Versorgung hier


Immobilie anfragen


Ihre persönliche Beratung

RE/MAX Nature 1 in Liezen

Michaela Schrempf

RE/MAX Nature 1 in Liezen

E m.schrempf@remax-nature.at

T +43361230262

H +43 3612 302 62-20