Provisionsfreie Neubauwohnung in Kremser Grünlage! Haus75d - OG - Top 7

Wohnung - Etage, 3500 Krems an der Donau

Beschreibung der Immobilie

Neubauprojekt „marena“
Provisionsfreie NEUBAU-Wohnungen:



In Kremser Grünlage - umrandet von Weinbergen und grünen Hügeln, unweit der Kremser Innenstadt – wird Ihr Traum nach einem außergewöhnlichen neuen Zuhause verwirklicht!

Wohnen am östlichen Tor zur Wachau – ein Standort, der regionstypisches Flair und pulsierendes, kulturelles Stadtleben vereint!
Auf einem Grundstück im Ausmaß von ca. 4.500 m² entsteht ein Ensemble aus 6 Häusern, das seinen künftigen Bewohner_innen individuelles Wohnen mit privaten Freiräumen und großzügigen Gemeinschaftsflächen bietet. Der Baustart erfolgte im Dezember 2021.

Einen Überblick aller Wohnungen finden Sie unter: www.marena.at

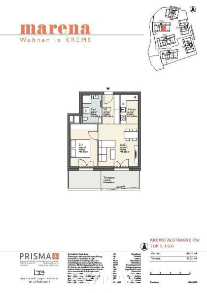
Top 7:
Die perfekte Pärchen- oder Singlewohnung! Im 1. Obergeschoss gelegen mit gemütlicher Terrasse. Eine Küche, ein sonniger Wohn-Essbereich, ein geräumiges Zimmer, ein Vorraum, ein Bad mit Dusche und WC vervollständigen das Angebot. Kellerabteile sind in ausreichender Anzahl vorhanden.

Moderne Architektur
Das moderne Architekturkonzept platziert die einzelnen Baukörper unterschiedlich verschwenkt zueinander und schafft auf diese Weise spannende Blickachsen und öffentliche Räume zwischen den Häusern.
Begrünte Durchgänge, Verbindungswege und Sitzgelegenheiten dienen als Treffpunkt und bieten Raum für gemeinsames Leben.

Freiraumqualität wird bei marena großgeschrieben!
Wählen Sie aus 42 hochwertigen Ein- bis Vierzimmer-Wohnungen mit Wohnnutzflächen zwischen ca. 30 m² und ca. 90 m².
Die Wohnungen im Erdgeschoss bieten neben Terrassen oder Loggien, private Gärten, die Wohnungen im 1. Stock und Dachgeschoß begeistern mit großzügigen Balkonen oder Terrassen.

Genießen Sie den Blick in die Kremser Weinberge!Hoher Wohnkomfort
Im Vordergrund stehen großzügige und funktionale Grundrisse die Klarheit, Stil und Komfort perfekt vereinen.

Ihr Mehrwert liegt in der hochwertigen Ausstattung:

• Durchdachte Grundrisse und zeitlose Architektur vom renommierten Architekturbüro Baumschlager Eberle
• Niedrigstenergiegebäude-Standard (HWB-Klasse A)
• Hochwertige Ausstattung – Parkettböden, großformatige Fliesen, Fenster aus 3-fach-Isolierglas, elektrische Raffstores, uvm.
• Wärmepumpen-System – effizientes Heiz- und Kühlsystem ohne fossile Energieträger
• Fußbodenheizung sowie Raumtemperierung durch Fußbodenkühlung in allen Geschoßen, im Dachgeschoß zusätzlich Kühlung durch
Deckenkühlung
• Raumhöhe im Regelgeschoß 2,65 m, im Dachgeschoß 2,70 m
• Standorttypische Freiraumplanung mit Maßnahmen zum lokalen Artenerhalt
• Großzügiger Spiel- und Gemeinschaftsplatz sowie Gemeinschaftsraum
• Privates Weinkeller-Abteil


Allgemeinbereiche wie Kinderwagen- und Fahrradabstellplatz sind in ausreichender Anzahl vorhanden.


Ein anlageneigener großer Spielplatz für Ihre Kinder ermöglicht Familien einen stressfreien Alltag.

Stellplätze für KFZ sowie eigene Motorrad-Stellplätze finden Sie in der hauseigenen Garage und können dazu erworben werden. Besucher_innenparkplätze stehen im Freien zur Verfügung.


Wohnen am östlichen Tor zur Wachau – mit Aussicht auf die umliegenden Weinberge, unweit des Zentrums.
Von der neuen Wohnung in die Innenstadt zum Einkaufen oder Bummeln geht es innerhalb weniger Minuten. Auch der Bahnhof oder der Campus Krems sind mit einem 15- minütigen Spaziergang fußläufig rasch erreicht. Der Kremser Stadtbus fährt an den Wochentagen im 30-Minuten-Takt, für alle die den öffentlichen Verkehr nutzen möchten. Eine gute Anbindung an die S5/B37 garantiert Ihnen einen stressfreien Alltag.
Zur Naherholung bietet sich der Kremstalrad- bzw. Spazierweg an. Auch die Donau ist schnell erreicht und lädt zu sportlichen Aktivitäten ein.
St. Pölten ist von Krems in 30 Minuten mit dem Auto erreichbar, Wien in 60 Minuten.

Sie haben Fragen zu diesem Bauprojekt?

Um Sie präzise und bedarfsgerecht beraten zu können, möchte ich Sie zu einem persönlichen Gespräch in unser Büro in 3500 Krems, Wachaustraße 18 einladen.

Die Grundrisspläne, die Baubeschreibung sowie eine Preisliste sende ich Ihnen sehr gerne vorab unverbindlich per Mail zu.

Ich freue mich auf ein persönliches Kennenlernen!

Bitte beachten Sie, dass die von uns angebotenen Immobilien nicht dauerhaft auf Fremdplattformen präsentiert werden. Sie können jedoch während der gesamten Vermarktungszeit alle relevanten Informationen zum Objekt auf unserer Homepage unter www.remax.at/2442-1812 online nachlesen!
Angaben gemäß gesetzlichem Erfordernis:
Heizwärmebedarf:22.0 kWh/(m²a)
Klasse Heizwärmebedarf:A
Faktor Gesamtenergieeffizienz:0.5
Klasse Faktor Gesamtenergieeffizienz:A++

Eckdaten

Objektnr: 2442_1812
Art: Wohnung - Etage
Land: Österreich
Baujahr: ca. 2022
Kaufpreis: 299.000,00
Wohnfläche: 45,31 m²
Zimmer: 2
Terrassen: 1
Heizwärmebedarf:  A  22,00 kWh/m²a
fGEE:  A++  0,50
Immobilie merken Exposé

Ausstattung

Erdwärme, Zentralheizung, Personenaufzug


Internet und TV

Information zur Internet und TV Versorgung hier


Immobilie anfragen


Ihre persönliche Beratung

RE/MAX Balance in Krems

Harald Seitner

RE/MAX Balance in Krems

E harald.seitner@remax-balance.at

H +436645156860