Projekt Dachgeschossausbau für 2 Wohneinheiten direkt in der Fußgängerzone Eisenstadt

Wohnung - Etage, 7000 Eisenstadt

Beschreibung der Immobilie

Zum Verkauf kommt dieses Dachgeschoß-Juwel, zum Ausbau, in einem wunderschön restaurierten Historischem Gebäude im Zentrum von Eisenstadt.

Dieses einzigartige, fast 200 Jahre alte Wohnhaus, direkt in der Fußgängerzone von Eisenstadt, wurde in den letzten Jahren aufwändig restauriert. Das Dachgeschoß ist derzeit noch ungenutzt und steht zur Disposition.

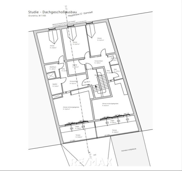
Ein renommierter Architekt hat bereits eine Studie für den Ausbau des Dachgeschoßes zu zwei Wohneinheiten erstellt, die Ihnen selbstverständlich zur weiteren Nutzung zur Verfügung gestellt wird.

Nutzen Sie diese einmalige Gelegenheit und fordern Sie gleich das Immobilienangebot mit der gesamten Studie zum Dachgeschoßausbau bei mir an.


GEPLANTER DACHGESCHOSSAUSBAU
+ Zwei Wohneinheiten (Top DG1: ca.105 m² - Top DG2: ca. 85 m²)
+ Beide Wohneinheiten mit Loggia und Sonnenterrassen
+ Loggia und Terrassen nach Süden ausgerichtet (Innenhoflage)
+ Ausbau zu einer einzigen großen Dachgeschoßwohnung möglich


LAGE:
Die Immobilie liegt zentral in Eisenstadt in der Fußgängerzone und befindet im Herzen der Stadt, in direkter Nähe zum Schloss Esterhazy, das als Wahrzeichen von Eisenstadt gilt.

In der Stadtmitte befinden sich zahlreiche Geschäfte, Restaurants, Cafés, sowie zahlreiche Museen und die bekannte Fußgängerzone mit seinen historischen Altbauten. Die Umgebung des Platzes ist voller Grünflächen und Parks, die zum Spazierengehen oder Entspannen einladen.

In den Sommermonaten finden hier regelmäßig Veranstaltungen statt, wie Konzerte oder Kunstausstellungen. Insgesamt bietet die Lage der Immobilie eine perfekte Kombination aus urbanem Leben und ländlicher Idylle.

Eisenstadt, als Landeshauptstadt, bietet ein breites Spektrum an Schulen und weiterführenden Ausbildungsmöglichkeiten.


ENTFERNUNGEN VON DER IMMOBILIE:
Krankenhaus: ca. 970 m
Apotheke: ca. 50 m
Supermarkt: ca. 10 m
Bus-Bahnhof: ca. 70 m
Autobahn: ca. 2.500 m
Bahnhof: ca. 1.000 m


SONSTIGES:
Die Angaben zum Objekt basieren auf uns zur Verfügung gestellten Informationen. Detailfragen werden im Zuge von Besichtigungen besprochen, geklärt oder nachgereicht.

Wir bitten um Verständnis, dass wir aufgrund der Nachweispflicht gegenüber dem Eigentümer, nur Anfragen mit vollständigen Kontaktdaten (Name, Anschrift, Tel.-Nr., E-Mail) beantworten können.

Wir informieren Sie darüber, dass wir bei diesem Objekt eine Doppelmaklertätigkeit ausüben. (§ 5 Abs. 3 MaklerG.)

Sie haben noch keine Finanzierung oder interessieren sich für ein Vergleichsangebot? Sprechen Sie uns an - wir arbeiten mit langjährigen Finanzierungspartnern zusammen und vermitteln Ihnen gerne einen kompetenten Finanzierungsberater, der Ihnen unverbindlich ein individuelles Angebot erstellt.

Dieses Angebot ist unverbindlich und einer Zwischenverwertung vorbehalten.
Nur auf remax.at finden Sie neue RE/MAX Immobilien früher und vollständig, und mit der RE/MAX App sofort am Handy!

Eckdaten

Objektnr: 2275_6983
Art: Wohnung - Etage
Land: Österreich
Kaufpreis: 250.000,00
Provision: 3.00 %
Wohnfläche: 189,90 m²
Terrassen: 2
Immobilie merken Exposé

Internet und TV

Information zur Internet und TV Versorgung hier


Immobilie anfragen


Ihre persönliche Beratung

RE/MAX Style

Andreas Batka

RE/MAX P&I in Neusiedl/S.

E a.batka@remax-pi.at

H +43 660 628 45 24