DG-Wohnung mit Galerie und Gartenparzelle direkt vor der Tür! - Erstbezug!

Wohnung - Etage, 1230 Wien, Liesing

Beschreibung der Immobilie

Zum Verkauf bieten wir hier 8 schlüsselfertige Eigentumswohnungen in Gehweite zum Liesinger Bahnhof.
Modern und zeitgemäß erbaut erfüllen sich hier all Ihre Wünsche an ein Objekt dieser Kategorie.
In Ziegel-Massiv Bauweise erbaut, Luftwärme-Pumpe und Photovoltaik erfüllt das Haus modernste Standards. Wohnungen bestechen durch moderne Ausstattung und massgeschneiderten Grundrissen. Eine Freifläche ist bei jeder inkludiert ob Terrasse, Balkon, Loggia oder sogar Eigengarten!
Ob Echtparkettböden aus Eiche, große, zeitgemäße Boden und Wandfliesen, 3-fach verglaste Fenster, die Ausstattung sollte ebenso ihren Vorstellungen an eine solche Wohnung gerecht werden.

Highlights:

- Integrierte, elektrische Außenrollläden
- 3-fach verglaste Fenster
- Fußbodenheizung (mit Luftwärmepumpe & PV-Anlage)
- Kabel TV- und Internet-Anschlüsse
- Klimaanlage im Dachgeschoß
- Gärten mit Rollrasen
- Doppelstabmattenzaun

Eine detalierte Bau- umnd Ausstattungsbeschreibung kann gerne auf Anfrage übermittelt werden.

Wählen Sie Ihre Traumwohnung:

Top 1 – EG: 2 Zimmer, Wfl. 42 m2, Garten: 45 m2 - KP: € 250.000 / Anlegerpreis: € 233.319 Verkauft
Top 2 – EG: 3 Zimmer, Wfl. 56 m2, Balkon: 16 m2, Garten: 67 m2 - KP: € 375.000 / Anlegerpreis: € 352.914 Verkauft
Top 3 – 1.OG: 3 Zimmer, Wfl. 55 m2, Loggia 3 m2, Garten 39 m2 - KP: € 306.000 / Anlegerpreis: € 281.520 Verkauft
Top 4 – 1.OG: 3 Zimmer, Wfl. 60 m2, Balkon 4 m2, Garten 39 m2 - KP: € 349.000 / Anlegerpreis: € 321.080 Verkauft
Top 5 – 2.OG: 3 Zimmer, Wfl. 55 m2, Loggia 3 m2, Garten 38 m2 - KP: € 312.000 / Anlegerpreis: € 287.040
Top 6 – 2.OG: 3 Zimmer, Wfl. 60 m2, Balkon 4 m2, Garten 38 m2 - KP: € 345.000 / Anlegerpreis: € 317.400
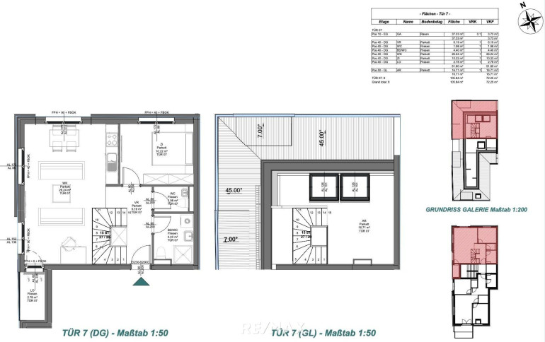
Top 7 – DG: 3 Zimmer, Wfl. 69 m2, Loggia 3 m2, Garten 37 m2 - KP: € 395.000 / Anlegerpreis: € 363.400
Top 8 – DG: 3 Zimmer, Wfl. 57 m2, Balkon 9 m2, Garten 39 m2 - KP: € 344.000 / Anlegerpreis: € 316.480

Lage:
Im unmittelbarer Nähe finden sie zahlreiche Geschäfte des täglichen Bedarfs sowie Ärzte und eine Apotheke. Das Riverside Einkaufszentrum ladet zum gemütlichen shoppen in der Nähe ein.
In Kooperation mit unseren Finanzierungspartner können wir Sie mit attraktiven Konditionen bei der Immobilienfinanzierung unterstüzen!

Infrastruktur/Lage
Gesundheit:
Arzt<180m
Apotheke<350m
Rettungsdienste<900m
Kinder/Schulen:
Kinderbetreuung<200m
Volksschule<700m
Kindergarten<220m
Hauptschule/Neue Mittelschule<320m
Nahversorger:
Supermarkt <350
Bäckerei <270m
Einkaufszentrum<850m
Drogerie<420m
Sonstiges:
Bucherei <500
Bank<450m
Post<650m
Polizei<500m
Überlegen Sie den Verkauf Ihrer Wohnung, Ihres Grundstücks oder Ihres
Hauses bzw. kennen Sie jemanden der eine Immobilie verkaufen möchte?
Die Beratung ist unverbindlich und die Wertermittlung kostenlos!

Wir bitten um Verständnis, dass auf Grund der Nachweispflicht gegenüber dem Eigentümer nur Anfragen mit vollständigen Kontaktdaten (Name, Adresse, Tel., Email) beantwortet werden können.

Ordnungsgemäß verweisen wir auf unsere Funktion als Doppelmakler.

Es gelten die Allgemeinen Bestimmungen des Maklergesetzes -> für Details siehe Nebenkostenübersicht.

Für weitere Fragen bzw. zur Vereinbarung eines Besichtigungstermins steht Ihnen Stefan Besic unter 069915115108 bzw. sb@remax-4you.at zur Verfügung.

Eckdaten

Objektnr: 1662_2791
Art: Wohnung - Etage
Land: Österreich
Baujahr: ca. 2022
Zustand: Erstbezug
Kaufpreis: 395.000,00
Provision: 3.00 %
Wohnfläche: 68,51 m²
Zimmer: 3
Garten: 37,33 m²
Heizwärmebedarf:  B  43,30 kWh/m²a
Immobilie merken Exposé

Ausstattung

Fußbodenheizung, Personenaufzug


Internet und TV

Information zur Internet und TV Versorgung hier


Immobilie anfragen


Ihre persönliche Beratung

RE/MAX 4You in Wien-Hernals

Stefan Besic

RE/MAX 4You in Wien-Hernals

E sb@remax-4you.at

H +43 699/151 151 08

F +43 1/403 28 06