Förderbare Doppelhaushälfe in Högmoos zu verkaufen!

Haus - Reihenhaus, 5660 Taxenbach

Beschreibung der Immobilie

Einklang mit der Umwelt – Förderbare Doppelhaushälfte!

Dieses Objekt ist in Holzriegelbauweise errichtet und befindet sich in einem Ortsteil von Taxenbach.
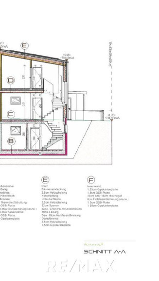
Das 3-geschossige Haus teilt sich in Erdgeschoss, Obergeschoss und Kellergeschoss.

Im Erdgeschoss gibt es einen offenen Wohn-Essbereich mit Küche, einen Vorraum, einen Abstellraum und eine Toilette. Vom Wohnraum aus gelangt man direkt auf die südlich ausgerichtete Terrasse.

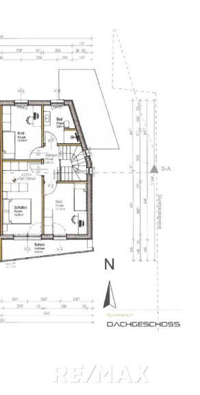
Im Obergeschoss befinden sich drei Schlafzimmer, zwei davon mit Zugang zum südlich ausgerichteten Balkon. Außerdem gibt es auf dieser Etage ein Badezimmer.

Das Haus ist komplett unterkellert. Beheizt wird es mit einer Luftwärmepumpe, und auf dem Dach ist eine Photovoltaikanlage installiert. Parkmöglichkeiten befinden sich direkt am Haus. Seitlich gibt es zudem einen Gartengeräteraum.

Die Doppelhaushälfte kann im aktuellen Bauzustand fast belagsfertig erworben werden. Der angebotene Kaufpreis bezieht sich auf den fast belagsfertigen Zustand. (Es fehlen jedoch noch die Geländer zur vollständigen belagsfertigen Ausführung.)

Das Haus liegt etwas außerhalb von Taxenbach im Ortsteil Högmoos. Zell am See ist nur wenige Autominuten entfernt, und Bruck an der Glocknerstraße ist in nur 6 km erreichbar.




Harmony with Nature – Semi-Detached House Eligible for Subsidies!

This property is built using timber frame construction and is located in a district of Taxenbach.
The three-story house consists of a ground floor, an upper floor, and a basement.

On the ground floor, there is an open-plan living and dining area with a kitchen, an entrance hall, a storage room, and a toilet. The living area provides direct access to the south-facing terrace.

The upper floor features three bedrooms, two of which have access to the south-facing balcony. There is also a bathroom on this floor.

The house has a full basement. It is heated with an air-source heat pump, and a photovoltaic system is installed on the roof. Parking is available directly at the house, and there is also a garden tool shed on the side.

The semi-detached house can be purchased in its current near-finished state. The listed purchase price refers to this near-finished condition (however, railings are still missing for the fully finished stage).

The house is located slightly outside Taxenbach in the Högmoos district. Zell am See is only a few minutes away by car, and Bruck an der Glocknerstraße is just 6 km away.
Angaben gemäß gesetzlichem Erfordernis:
Heizwärmebedarf:39.9 kWh/(m²a)
Klasse Heizwärmebedarf:B
Faktor Gesamtenergieeffizienz:0.62

Eckdaten

Objektnr: 1647_2155
Art: Haus - Reihenhaus
Land: Österreich
Baujahr: 2022
Zustand: Erstbezug
Kaufpreis: 499.000,00
Wohnfläche: 98,00 m²
Grundstücksfl.: 254,58 m²
Zimmer: 4
Bäder: 1
WC: 2
Balkone: 1
Terrassen: 1
Stellplätze: 2
Heizwärmebedarf:  B  39,90 kWh/m²a
fGEE: 0,62
Immobilie merken Exposé

Ausstattung

Erdwärme, Kamin, Zentralheizung, Parkplatz


Internet und TV

Information zur Internet und TV Versorgung hier


Immobilie anfragen


Ihre persönliche Beratung

RE/MAX Homes in Zell am See

Yvonne Kuhlang

RE/MAX Homes in Zell am See

E y.kuhlang@remax-homes.at

T +43(0) 6542 72 14172141

H +43 699 150 150 08