Doppelhaushälfe in Holzriegelbauweise in Högmoos zu verkaufen!

Haus - Reihenhaus, 5660 Taxenbach

Beschreibung der Immobilie

Einklang mit der Umwelt - Förderbare Doppelhaushälfte!

Dieses Objekt ist in Holzriegel Bauweise gebaut und liegt in einem Ortsteil von Taxenbach.
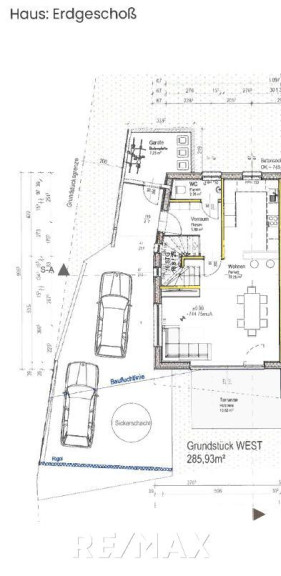
Das 3- geschossige Haus teilt sich in ein Erdgeschoss Obergeschoss und Kellergeschoss.

Im Erdgeschoss befindet sich ein offener Wohn- Essbereich mit Küche Vorraum Abstellraum und eine Toilette Vom Wohnraum hat man einen direkten Zugang zur südlich ausgerichteten Terrasse.

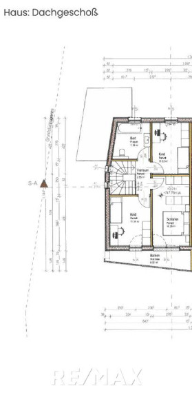
Im Obergeschoss befinden sich 3 Schlafzimmer 2 davon mit Ausgang zum südlich ausgerichteten Balkon Auf dieser Etage befindet sich auch das Badezimmer.

Das Haus ist komplett unterkellert Beheizt wird das Haus mit einer Luftwärmepumpe und Photovoltaik ist am Dach Parkmöglichkeiten befinden sich direkt am Haus Seitlich vom Haus befindet sich ein Gartengeräteraum.

Die Doppelhaushälfte kann im aktuellen Bauzustand fast belagsfertig erworben werden. Der angebotene Kaufpreis bezieht sich auf den fast belagsfertigen Zustand. (Es fehlen jedoch noch die Geländer zur vollständigen belagsfertigen Ausführung.)

Das Haus liegt etwas außerhalb von Taxenbach im Ortsteil Högmoos Lediglich einige Autominuten trennen Sie von Zell am See 6 km nach Bruck a d Glocknerstraße.
























Harmony with Nature – Semi-Detached House Eligible for Subsidies!

This property is built using timber frame construction and is located in a district of Taxenbach. The three-story house consists of a ground floor, upper floor, and basement.

On the ground floor, there is an open-plan living and dining area with a kitchen, entrance hall, storage room, and a toilet. The living area provides direct access to the south-facing terrace.

The upper floor features three bedrooms, two of which have access to the south-facing balcony. There is also a bathroom on this floor.

The house has a full basement. It is heated with an air-source heat pump, and a photovoltaic system is installed on the roof. Parking is available directly at the house, and there is also a garden tool shed on the side.

The semi-detached house can be purchased in its current near-finished condition. The listed purchase price refers to this near-finished state (however, railings are still missing for the fully finished stage).

The house is located slightly outside Taxenbach in the Högmoos district. Only a few minutes by car separate you from Zell am See, and it is just 6 km to Bruck an der Glocknerstraße.
Angaben gemäß gesetzlichem Erfordernis:
Heizwärmebedarf:39.9 kWh/(m²a)
Klasse Heizwärmebedarf:B
Faktor Gesamtenergieeffizienz:0.62

Eckdaten

Objektnr: 1647_2156
Art: Haus - Reihenhaus
Land: Österreich
Baujahr: 2022
Zustand: Erstbezug
Kaufpreis: 499.000,00
Wohnfläche: 102,00 m²
Grundstücksfl.: 285,93 m²
Zimmer: 4
Bäder: 1
WC: 2
Balkone: 1
Terrassen: 1
Stellplätze: 2
Heizwärmebedarf:  B  39,90 kWh/m²a
fGEE: 0,62
Immobilie merken Exposé

Ausstattung

Erdwärme, Kamin, Zentralheizung, Parkplatz


Internet und TV

Information zur Internet und TV Versorgung hier


Immobilie anfragen


Ihre persönliche Beratung

RE/MAX Homes in Zell am See

Yvonne Kuhlang

RE/MAX Homes in Zell am See

E y.kuhlang@remax-homes.at

T +43(0) 6542 72 14172141

H +43 699 150 150 08