NEUBAUEIGENTUMS- UND ANLEGERWOHNUNGEN AM STADTRAND VON WIEN

Wohnung - Etage, 2201 Gerasdorf

Beschreibung der Immobilie

NEUBAUEIGENTUMS- UND ANLEGERWOHNUNGEN AM WIENER STADTRAND
NÄHE BAHNHÖFE GERASDORF UND SÜSSENBRUNN/U1-LEOPOLDAU
IDEAL FÜR ANLEGER UND EIGENNUTZER!

Im Grün- und Erholungsbereich entsteht am Rande des 21. Bezirkes ein Objekt mit 81 Wohnungen zwischen 41 und 69 m² mit modernen Grundrissen. Am Stadtrand von Wien genießen Sie die Ruhe mitten in der Gerasdorfer „Grünzone“ mit vielen Erholungsmöglichkeiten (Gerasdorfer Badeteich, Freizeitparadies Marchfeldkanal, Süssenbrunner Badeteich, Golfclub Süssenbrunn….).

Gerade jetzt sind Wohnungen im Grünen sehr beliebt. Alle Wohnungen haben ausreichend Platz im Freien (Balkon, Terrasse oder Garten).

Aufgrund der guten Anbindung – Bahnhof Gerasdorf ca. 1 km entfernt, Bahnhof Süßenbrunn ca. 1,3 km mit Zubringer zur U1-Leopoldau ca. 2,5 km entfernt - eignen sich die Wohnungen auch bestens zum Vermieten.
Gerne berechne ich Ihnen Ihr individuelles Anlegerkonzept mit den zahlreichen Vorteilen.

In nur wenigen Gehminuten erreichen Sie alle Einrichtungen des täglichen Bedarfs (Kindergarten, Schulen, Ärzte, Apotheke, Einkaufsmöglichkeiten). Genießen Sie eine schöne Zeit im Naturparadies „Marchfeldkanal“ mit den zahlreichen Spazier- und Fahrradwegen“, am Naturbadeteich Gerasdorf mit seiner großen Liegewiese, den traditionellen Stammersdorfer Heurigen mit den bekannten Weinbergen oder den Ausflug zum Bisamberg mit dem traumhaften Blick über Wien. Zum Bummeln eignen sich das Einkaufszentrum G3 in Gerasdorf oder das Shopping-Center Nord.

FACTS:
- 81 modern ausgestattete 2 bis 4-Zimmer-Wohnungen auf Eigengrund;
- Nutzflächen zwischen 41 und 69 m²;
- alle Wohnungen mit Freifläche (Garten, Balkon oder Terrasse);
- 162 Autoabstellplätze (131 Tiefgaragenplätze);
- Kinderwagen- und Fahrradabstellräume im EG;
- Einlagerungsflächen im Keller;
- Kinderspielplatz;
- Fußbodenheizung über Zentralheizung (Gas oder Fernwärme);
- Wärme- und Warmwassermengenzähler in jeder Wohnung;
- Außenjalousien mit manueller Bedienung;
- TV-Datenanschluss;
- Eichen-Fertigklebeparkett in den Aufenthaltsräumen;
- Fliesen im Bad und WC (Bodenfliesen 45x45; Wandfliesen 30x60 cm)
- Busstation vor der Tür (Linie 25B Gerasdorf/Süßenbrunner Platz);
- Bahnhof Gerasdorf (ca. 1 km); Bahnhof Süßenbrunn ca. 1,3 km als Zubringer zur U1-Leopoldau;
- Kaufpreis ab netto EUR 217.620.- (Anlegerrenditen ca. 2,8% ohne Finanzierung);
- Fertigstellung bis November 2024


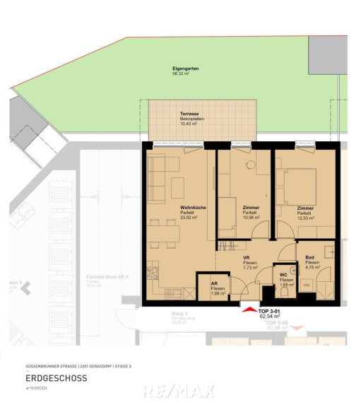
Beispielwohnung: 3-Zimmer-Gartenwohnung mit ca. 62 m²:
Vorzimmer
links geräumige Wohn-Küche mit ca. 23 m² und Zugang zu einer Terrasse (ca. 10 m²) und Eigengarten (ca. 56 m²);
Abstellraum;
Geradeaus zwei Schlafzimmer mit ca. 13 und 11 m² und Zugang zum Garten;
Rechts Badezimmer mit Dusche, Waschtisch und Waschmaschinenanschluss,
separates WC


Kaufpreis:
netto EUR 320.820,-

(zuzüglich 3,5% Grunderwerbssteuer, 1,1% Grundbuchseintragungsgebühr/Befreiung bei dringendem Wohnbedürfnis, maklerprovisionsfrei, Vertragserrichtungskosten 1,8% zuzüglich 20 % Umsatzsteuer + Barauslagen, Notargebühren, ev. Finanzierungskosten)

Kaufpreis für Endverbraucher: EUR 345.000.- zuzüglich o.a. Nebenkosten

Die Preise der Autoabstellplätze:
Tiefgaragenplatz: netto EUR 16.740.- bzw. EUR 18.000.- für Endverbraucher;

Mietrendite: 3,08%


Auf das wirtschaftliche Naheverhältnis zum Anbieter wird hingewiesen.

Für weitere Informationen und Beratung über die günstigsten Finanzierungsmöglichkeiten stehe ich gerne zur Verfügung (auch per Skype).
Gerne informieren wir Sie auch über weitere Anleger- und Eigentumswohnungen.
Angaben gemäß gesetzlichem Erfordernis:
Heizwärmebedarf:31.59 kWh/(m²a)
Klasse Heizwärmebedarf:B
Klasse Faktor Gesamtenergieeffizienz:A

Für weitere Informationen oder Besichtigungen steht Ihnen Herr Mag. Johann Schandl unter 0676 601 99 63 oder office@remax-real-experts.at gerne zur Verfügung.
Qualität macht sicher!
RE/MAX Real Experts wurde bereits wiederholt von der Wirtschaftskammer für die hervorragende Betreuung mit dem Immy ausgezeichnet. Ihre Zufriedenheit ist unsere Aufgabe!

Nutzen Sie auch unser Service für Abgeber!
Schnellstmöglich zum besten Preis verkaufen durch unsere besonderen Vermarktungsaktivitäten!

Eckdaten

Objektnr: 1619_6750
Art: Wohnung - Etage
Land: Österreich
Baujahr: ca. 2023
Zustand: Erstbezug
Alter: Neubau
Kaufpreis: 320.820,00
Kaufpreis / m²: auf Anfrage
Provision: provisionsfrei
Wohnfläche: 62,00 m²
Zimmer: 3
Bäder: 1
WC: 1
Terrassen: 1
Garten: 56,00 m²
Keller: 3,00 m²
Heizwärmebedarf:  B  31,50 kWh/m²a
Immobilie merken Exposé

Ausstattung

Fußbodenheizung, Personenaufzug


Internet und TV

Information zur Internet und TV Versorgung hier


Immobilie anfragen


Ihre persönliche Beratung

RE/MAX Real Experts

Mag. Johann Schandl

RE/MAX Real Experts

E j.schandl@remax-real-experts.at

H +43 (0)676 601 99 63