VERMIETETE ANLEGERWOHNUNGEN IN GUMPENDORF

Wohnung - Terrassenwohnung, 1060 Wien

Beschreibung der Immobilie

VERMIETETE ANLEGERWOHNUNGEN MITTEN IM SECHSTEN BEZIRK – SERVICED APARTMENTS
NÄHE MARIAHILFERSTRASSE – HAUS DES MEERES - NASCHMARKT
AUSSCHLIESSLICH FÜR ANLEGER!

Mitten in Mariahilf, einer der beliebtesten und trendigsten Gegenden Wiens – Nähe der Mariahilfer Straße/Naschmarkt – entsteht ein Objekt mit 56 voll ausgestatteten Wohnungen zwischen 36 und 101 m² (Ein- bis Drei-Zimmerwohnungen).

Die exklusiven Wohneinheiten werden von einem europäischen Topanbieter für „Wohnen auf Zeit“ betrieben. Er übernimmt die Möblierung, Vermietung und Pflege der Wohneinheiten für die nächsten 25 Jahre. Dadurch sind für den Investor höhere Renditen möglich.

Objekt
An der Straßenfront wird das stilvolle Jahrhundertwendehaus revitalisiert und durch zwei Dachgeschoße und attraktiven Freiflächen erweitert. Im Innenhof entsteht ein Neubau mit modernen Grundrissen und lichtdurchfluteten Wohneinheiten mit viel Freiflächen (Garten, Loggien, Balkone oder Terrassen).

Lage
In nur wenigen Gehminuten erreichen Sie Österreichs größte Einkaufsstraße, die beliebte Mariahilfer Straße oder den berühmten Naschmarkt mit den zahlreichen Marktständen und trendige Restaurants. In der Nachbarschaft befindet sich auch das Haus des Meeres mit dem einzigartigen Panoramarestaurant. Fußläufig erreicht man rasch den Wiener Ring mit den historischen Prachtgebäuden und die Wiener Innenstadt.
Die Gäste der voll servicierten Apartments genießen im trendigen Bezirk das Kulturleben (Raimundtheater, Theater an der Wien) die vielen Handwerk- und Spezialgeschäfte sowie die typischen Wiener Kaffeehäuser (Ritter, Sperl, Jelinek) und trendigen Restaurants.

Infrastruktur
Neben der perfekten Nahversorgung ist der Bezirk bestens an das Verkehrsnetz angebunden. In nur wenigen Gehminuten erreichen Sie die U-Bahn-Linien U2, U3 und U4. Die Stationen der Buslinien 13A, 14A und 57A befinden sich direkt vor der Tür. Der Westbahnhof und Hauptbahnhof sind rasch erreichbar (Zubringer zum Flughafen Wien/ca. 20 Minuten).
Für Sportbegeisterte bietet der Bezirk elf Parkanlagen (z.B. Esterhazypark mit Sportplätzen und Kletterwand; Loquaipark), zahlreiche Fahrradwege und gute Anbindung zum Schönbrunner Schlosspark und mehrere Fitness-Studios.

Rundum-Service/Serviced Apartments
Der Betreiber ist einer der führenden Anbieter Europas für „Serviced Apartments“ für kurz- und mittelfristige Aufenthalte, betreibt bereits erfolgreich Objekte in den meisten Großstädten (z.B. Barcelona, Mailand, Berlin, München, Düsseldorf, Frankfurt, Rom, Florenz, Madrid, Prag). Die Wohneinheiten werden hochwertig ausgestattet (inkl. Geschirr, Einrichtungen, Teppiche, Lampen…) und an Geschäftsreisende, die sich länger in der Stadt aufhalten oder Privatpersonen, die sich in der Stadt erst erkunden und eingewöhnen wollen oder auch an Studierende mit Auslandssemester vermietet. Der Betreiber kümmert sich auch um die laufende Pflege der Wohneinheiten.

Der Investor bekommt also ein „Rundum-Sorglospaket“ mit Vermietung, Verwaltung, Mietzinseinhebungen, Mietzinsanpassungen, Reparaturservice.

FACTS
- Eigengrund
- Ein bis Drei-Zimmer-Wohnungen
- Die meisten Wohnungen haben Freifläche (Garten, Loggia, Balkon oder Terrasse)
- 56 modern und voll ausgestattete Wohnungen (teilweise Altbau);
- Gewerbliche Widmung (Beherbergungsunternehmen);
- Fußbodenheizung über Fernwärme
- Wärme- und Warmwassermengenzähler in jeder Wohnung
- Sonnenschutz mit manueller Bedienung
- Klimaanlage in den Wohneinheiten ab dem 2. Stockwerk
- Langfristig vermietet an Betreiber von „Serviced Apartments“ mit Erfahrung und Kompetenz
- Nahversorgung (Lebensmittelgeschäfte, Kindergarten, Schulen, Ärzte..)
- Zahlreiche Sport- und Freizeiteinrichtungen (z.B. zahlreiche Parkanlagen, Apollokino)

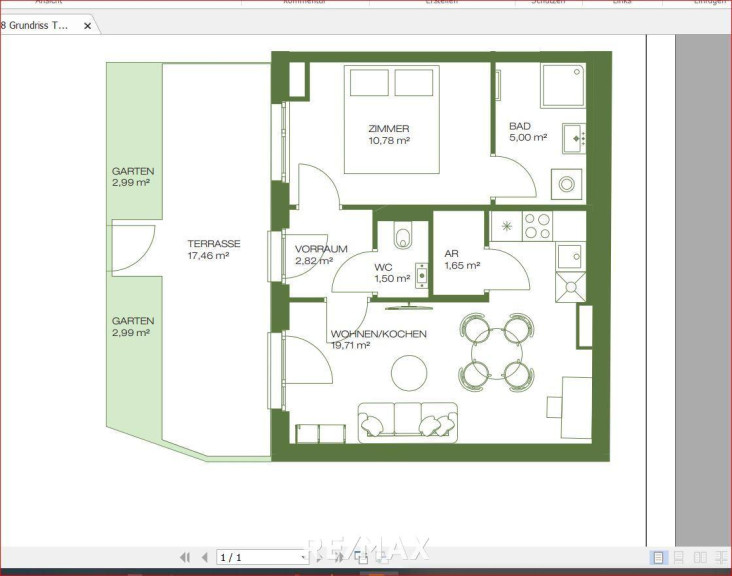
Beispielwohnung: 2-Zimmer-Terrassenwohnung mit ca. 41 m²
Vorzimmer;
Badezimmer mit Dusche, Waschtisch, Waschmaschinenanschluss;
WC extra;
geräumige Wohn-Küche ca. 20 m² und Zugang zur ca. 17 m²-großen Terrasse und ca. 6 m² Garten;
Schlafzimmer ca. 11 m²;
Raumhöhe: 2,58 Meter


Ausstattung
Eichen-Fertigteilparkett in den Aufenthalts- und moderne Fliesen in den Nassräumen;
Küche mit Spüle, E-Herd, Backrohr, Geschirrspüler, Kühlschrank, Dunstabzug mit Umluft;
Einbruchshemmende Eingangstüre;
Zentralheizung über Fernwärme; zentrale Warmwasserversorgung; Wärmemengenzähler in jeder Wohnung; Fußbodenheizung;
Kühlung in den Wohneinheiten ab dem 2. Obergeschoss;
Volle Möblierung zur Eignung für eine kurz- und mittelfristige Vermietung.

Kaufpreis
netto EUR 518.000.- inkl. Küche und Zuschüsse für Möblierung und Betreibung (zuzüglich 3,5% Grunderwerbssteuer, 1,1% Grundbuchseintragungsgebühr, 3,6% Vermittlungsprovision bei Doppelmaklereigenschaft; Vertragserrichtungskosten, Notargebühren, Fremdfinanzierungskosten);

Für Endverbraucher beträgt der Kaufpreis EUR 581.628.- (zuzüglich Nebenkosten wie oben). Mietrendite: 2,75%Vorteile für Anleger
Grundbücherliches Eigentum
Unabhängiges monatliches Einkommen mit Indexierung der Miete
Wertbeständigkeit
Langfristig gesicherte Vermietung (bereits vermietet)
Professionelles Management
Rendite 2,75%
Steuerliche Vorteile


Gerne berechne ich Ihnen Ihr individuelles Anlegerkonzept mit den zahlreichen Vorteilen.

Gerne berate ich Sie auch über die günstigsten Finanzierungsmöglichkeiten und begleite Sie beim Finanzierungsprozess.


Auf das wirtschaftliche Naheverhältnis zum Anbieter wird hingewiesen.

Für weitere Beratungen und Finanzierungsvorschläge stehe ich gerne zur Verfügung (auch per Videotelefonie).

Gerne informieren wir Sie auch über weitere Anleger- und Eigentumswohnungen.

Wir informieren Sie darüber, dass wir bei diesem Objekt eine Doppelmaklertätigkeit ausüben (§ 5 Abs. 3 MaklerG).
Die Angaben beruhen auf Informationen der Eigentümer und/oder Dritter und sind daher ohne Gewähr. Änderungen vorbehalten.
Angaben gemäß gesetzlichem Erfordernis:
Heizwärmebedarf:71.2 kWh/(m²a)
Klasse Heizwärmebedarf:C
Klasse Faktor Gesamtenergieeffizienz:C

Für weitere Informationen oder Besichtigungen steht Ihnen Herr Mag. Johann Schandl unter 0676 601 99 63 oder office@remax-real-experts.at gerne zur Verfügung.
Qualität macht sicher!
RE/MAX Real Experts wurde bereits wiederholt von der Wirtschaftskammer für die hervorragende Betreuung mit dem Immy ausgezeichnet. Ihre Zufriedenheit ist unsere Aufgabe!

Nutzen Sie auch unser Service für Abgeber!
Schnellstmöglich zum besten Preis verkaufen durch unsere besonderen Vermarktungsaktivitäten!

Eckdaten

Objektnr: 1619_6902
Art: Wohnung - Terrassenwohnung
Land: Österreich
Baujahr: ca. 1900
Zustand: Erstbezug
Möbliert: Voll
Alter: Altbau
Kaufpreis: 518.000,00
Kaufpreis / m²: auf Anfrage
Wohnfläche: 41,00 m²
Zimmer: 2
Bäder: 1
WC: 1
Terrassen: 1
Garten: 6,00 m²
Heizwärmebedarf:  C  71,20 kWh/m²a
Immobilie merken Exposé

Ausstattung

Zentralheizung, Personenaufzug, DV-Verkabelung, Kabel/Satelliten-TV


Internet und TV

Information zur Internet und TV Versorgung hier


Immobilie anfragen


Ihre persönliche Beratung

RE/MAX Real Experts

Mag. Johann Schandl

RE/MAX Real Experts

E j.schandl@remax-real-experts.at

H +43 (0)676 601 99 63