Praxis kombiniert mit Wohnen und Lagerflächen

Büro / Praxis - Praxis, 1150 Wien

Beschreibung der Immobilie

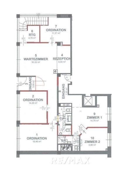
Derzeit wird diese interessante Immobilie als top-ausgestattete Zahnarztpraxis mit separatem Wohnbereich im Erdgeschoß sowie Aufenthaltsbereich, Umkleide, Dusche und Ruhebereich im Untergeschoß verwendet. Sie besteht aus 3 separaten WE-Objekten.

Die aufwändige Komplettsanierung wurde 2017 begonnen.

Auf den Fotos sieht man die hochwertige Ausstattung der 3 Praxisräume samt WC-Anlage, Rezeption und Wartebereich im EG.

Die 2. Einheit wurde mit einem separaten Zugang als Wohnung umfunktioniert und hat 2 Zimmer, WC und Bad.

Die 3. Einheit ist von der Praxis aus durch eine Treppe ins UG erreichbar und besteht aus Aufenthaltsraum, Umkleidebereich, Ruheraum und Dusche sowie Stauraum.

Im Angebotspreis sind die Medizingeräte sowie spezifischen Möbel nicht inkludiert und werden beim Verkauf entfernt. Auf Wunsch können sie gegen Ablöse auch überlassen werden.


Zur Ausstattung:
Die Auslagen wurden neu mit 3-fach Verglasung ausgestattet. Beheizt wird mittels Zentralheizung.
Es ist im UG Fußbodenheizung verbaut. Im EG gibt es Heizkörper.
Die Rezeption ist vis a vis vom Eingang und ein geräumiger Wartebereich steht den Patienten zur Verfügung. Die notwendigen Installationen wurden genau auf den Betrieb einer Praxis im Lokal abgestimmt.

Die Praxis ist noch in Betrieb, Besichtigungstermine können nach Abstimmung gerne vereinbart werden.

Wir freuen uns auf Ihre Anfrage.


Monatliche Vorschreibung für alle drei WE-Objekte summiert
BK netto EUR 914,25
HK netto EUR 240,50
WW netto EUR 25,76
Rücklage netto EUR 516,75
bei Steuerfreiheit gem. §6, Abs.1, Z16 bzw. Z17 kommt noch folgender Betrag hinzu: EUR 221,38
Angaben gemäß gesetzlichem Erfordernis:
Heizwärmebedarf:100.0 kWh/(m²a)
Klasse Heizwärmebedarf:C
Klasse Faktor Gesamtenergieeffizienz:C

Für eine Terminvereinbarung und weitere Informationen stehen wir Ihnen gerne unter 01/ 470 25 00 oder office@remax-real-experts.at zur Verfügung.
Qualität macht sicher!
RE/MAX Real Experts wurde bereits wiederholt von der Wirtschaftskammer für die hervorragende Betreuung mit dem Immy ausgezeichnet. Ihre Zufriedenheit ist unsere Aufgabe!

Nutzen Sie auch unser Service für Abgeber!
Schnellstmöglich zum besten Preis verkaufen durch unsere besonderen Vermarktungsaktivitäten!

Eckdaten

Objektnr: 1619_7087
Art: Büro / Praxis - Praxis
Land: Österreich
Zustand: Gepflegt
Kaufpreis: 850.000,00
Kaufpreis / m²: auf Anfrage
Provision: 3.00 %
Nutzfläche: 185,00 m²
Bürofläche: 185,00 m²
Zimmer: 7,50
WC: 4
Heizwärmebedarf:  C  100,00 kWh/m²a
Immobilie merken Exposé

Ausstattung

Zentralheizung


Internet und TV

Information zur Internet und TV Versorgung hier


Immobilie anfragen


Ihre persönliche Beratung

RE/MAX Real Experts

Hubert Koller

RE/MAX Real Experts

E h.koller@remax-real-experts.at

H +43 (0)699/ 189 28 281