PROVISIONSFREIE REIHENHÄUSER BEIM OBERLAAER LIESINGBACH

Haus - Reihenhaus, 1100 Wien

Beschreibung der Immobilie

Nahe Oberlaa entsteht ein Objekt mit 16 großzügig angelegten Einfamilien- bzw. Reihenhäusern und 20 Eigentumswohnungen in fünf Baukörpern sowie 27 Tiefgaragenplätze.

Eingebettet in die natürliche Grün-Lage des Liesingbaches, genießen Sie das naturnahe Wohnen in einem der 16 Reihenhäuser mit Garten und Terrasse mit einer Wohnfläche zwischen ca. 81 und 121 m² und guter Verkehrsanbindung (U1-Oberlaa und Bus vor der Tür).

Gerne informieren wir Sie auch über die geplanten Zwei-, Drei- oder Vierzimmerwohnung (Wohnfläche zwischen ca. 48 und 91 m²).

Die Beheizung erfolgt mittels Luft-Wasser-Wärmepumpe über die Fußböden.

Aufgrund der ruhigen und „grünen“ Lage sowie der U-Bahn-Anbindung eignen sich die Wohnungen auch bestens zum Vermieten.
Mit der U-Bahn erreicht man schnell auch das Zentrum von Wien sowie die Universitäten.

Die Gegend besticht durch eine Vielfalt von biologischen Lebensmitteln.

Für Sport- und Freizeitaktivitäten stehen zahlreiche Möglichkeiten zur Verfügung (z.B. Therme und Kurpark Oberlaa, Spaziergänge und Radausflüge entlang des Liesingbaches, Erlebnisnachmittag im Böhmischen Prater mit zahlreichen kulinarischen Köstlichkeiten, ausgedehnter Lauf oder Entspannung im Erholungsgebiet Laaerberg, Heurigenbesuche in Oberlaa).


FACTS:
- Eigengrund
- 20 modern ausgestattete Wohnungen mit 2 bis 4 Zimmer;
- 16 Reihenhäuser mit 4 bzw. 5 Zimmer;
- Freiflächen (Garten, Balkon oder Terrasse)
- Zentralheizung mit Luft-Wärme-Pumpe über Fußböden;
- Wärme- und Warmwassermengenzähler in jeder Einheit;
- Eichenparkettböden in den Aufenthaltsräumen; moderne Fliesen in den Nassräumen;
- Alle Sanitäranlagen und Waschmaschinenanschluss;
- Außenjalousien mit manueller Bedienung
- Tiefgaragen- und Fahrradabstellplätze;
- U1-Oberlaa; Busstation 70A vor der Tür;
- Therme Oberlaa und Kurpark ca. 1,5 km;
- Nahversorgung (Lebensmittelgeschäfte, Kindergarten, Schulen, Ärzte.)


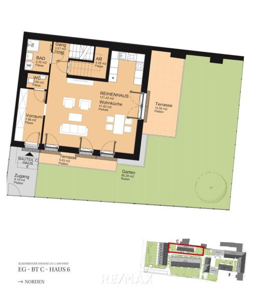
Beispiel: Reihenhaus mit ca. 121 m²
EG:
Vorzimmer;
Abstellraum;
WC extra;
Badezimmer mit Dusche, Waschtisch und Waschmaschinenanschluss,
moderne Wohn-Küche mit ca. 42 m² mit Zugang zur ca. 16 m²-großen Terrasse und ca. 85 m² Garten

OG:
Badezimmer mit Wanne, Dusche, Waschtisch und Waschmaschinenanschluss,
WC extra;
Drei Schlafzimmer mit ca. 15, 13 und 12 m² und Schrankraum mit ca. 6 m²


Kaufpreis:
netto EUR 816.540.- für „Anleger“ bzw. EUR 878.000.- für „Eigennutzer“

(zuzüglich 3,5% Grunderwerbssteuer, 1,1% Grundbuchseintragungsgebühr, provisionsfrei für den Käufer, Vertragserrichtungskosten ca. 1,8% + Ust., Notargebühren; ev. Finanzierungskosten);

ein Tiefgaragenplatz kann um EUR 28.000.- erworben werden; weiter stehen zusätzliche Einlagerungsräume zur Verfügung.


Auf das wirtschaftliche Naheverhältnis zum Anbieter wird hingewiesen.

Die Angaben beruhen auf Informationen der Eigentümer und/oder Dritter und sind daher ohne Gewähr. Änderungen vorbehalten.


Für weitere Beratungen und Finanzierungsvorschläge stehe ich gerne zur Verfügung.
Gerne informieren wir Sie auch über weitere Anleger- und Eigentumswohnungen und stehen für Finanzierungsberatung zur Verfügung.
Angaben gemäß gesetzlichem Erfordernis:
Heizwärmebedarf:39.0 kWh/(m²a)
Klasse Heizwärmebedarf:B

Für weitere Informationen oder Besichtigungen steht Ihnen Herr Mag. Johann Schandl unter 0676 601 99 63 oder office@remax-real-experts.at gerne zur Verfügung.
Qualität macht sicher!
RE/MAX Real Experts wurde bereits wiederholt von der Wirtschaftskammer für die hervorragende Betreuung mit dem Immy ausgezeichnet. Ihre Zufriedenheit ist unsere Aufgabe!

Nutzen Sie auch unser Service für Abgeber!
Schnellstmöglich zum besten Preis verkaufen durch unsere besonderen Vermarktungsaktivitäten!

Eckdaten

Objektnr: 1619_7571
Art: Haus - Reihenhaus
Land: Österreich
Baujahr: ca. 2026
Zustand: Erstbezug
Alter: Neubau
Kaufpreis: 816.540,00
Wohnfläche: 121,00 m²
Zimmer: 4
Bäder: 2
WC: 2
Terrassen: 1
Stellplätze: 1
Heizwärmebedarf:  B  39,00 kWh/m²a
Immobilie merken Exposé

Ausstattung

Fußbodenheizung, Parkplatz


Internet und TV

Information zur Internet und TV Versorgung hier


Immobilie anfragen


Ihre persönliche Beratung

RE/MAX Real Experts

Mag. Johann Schandl

RE/MAX Real Experts

E j.schandl@remax-real-experts.at

H +43 (0)676 601 99 63