ANLEGER AUFGEPASST - Desselbrunn 121 (Top 11) - VERMIETET
Wohnung
- Etage,
4693
Desselbrunn
Beschreibung der Immobilie
Die Lage des Neubauprojektes in Desselbrunn besticht durch seine naturnahe Umgebung. Sie profitieren von einer ländlichen Wohngegend, die zu erholsamen Spaziergängen, Wanderungen und Radtouren einlädt. Dies macht Desselbrunn zu einem attraktiven Wohnort für Familien, Naturliebhaber und Menschen, die eine ausgeglichende Lebensweise schätzen.
Es entstand ein modernes dreigeschossiges Wohngebäude mit insgesamt 12 Wohnungen. Aufgrund der Hanglage präsentiert sich das Gebäude auf der Ostseite mit 3 Geschossen und auf der Westseite mit 2 Geschossen. Der Zugang zu den Wohnungen erfolgt bequem über die Westseite, wo Sie einen einladenden Eingangsbereich vorfinden.
Es kamen insgesamt 22 freie Stellplätze zur Ausführung, wobei jeweils 2 Stellplätze bereits im Kaufpreis inkludiert sind.
Die Beheizung der Wohnungen erfolgt umweltfreundlich und energieeffizient mittels Luft-Wärmepumpe. Dadurch wird nicht nur die Umwelt geschont, sondern auch Ihre Heizkosten reduziert. Eine komfortable Fußbodenheizung sorgt für wohlige Wärme und ein angenehmes Raumklima in den Wohnungen.
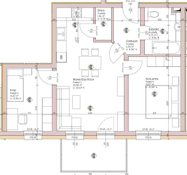
Mit den Wohnungsgrößen zwischen 61 und 91 m² ist für jeden Geschmack und Lebensstil das Passende dabei. Genießen Sie großzügige Wohnräume, moderne Bäder und Ausstattungsdetails, die zum Wohlfühlen einladen. Für erweiterten Stauraum sorgen die zugeordneten Abstellräume.
Top 11 ist bereits vermietet. Vermietungsdauer 3 Jahre. Nähere Auskünfte bzw. Kaufpreis für Vorsteuerabzugsberechtigte auf Anfrage!
Gerne zeige ich Ihnen dieses Neubauprojekt - ich freue mich auf Sie!
| Angaben gemäß gesetzlichem Erfordernis: | |||
| Heizwärmebedarf: | 28.0 kWh/(m²a) | ||
| Klasse Heizwärmebedarf: | B | ||
| Faktor Gesamtenergieeffizienz: | 0.6 | ||
| Klasse Faktor Gesamtenergieeffizienz: | A+ | ||
Eckdaten
| Objektnr: | 1068_4514 |
| Art: | Wohnung - Etage |
| Land: | Österreich |
| Baujahr: | ca. 2023 |
| Zustand: | Erstbezug |
| Alter: | Neubau |
| Kaufpreis: | 269.000,00 € |
| Wohnfläche: | 62,00 m² |
| Zimmer: | 3 |
| Bäder: | 1 |
| WC: | 1 |
| Terrassen: | 1 |
| Stellplätze: | 2 |
| Keller: | 3,31 m² |
| Heizwärmebedarf: | B 28,00 kWh/m²a |
| fGEE: | A+ 0,60 |
Ausstattung
Erdwärme, Zentralheizung, Parkplatz
Internet und TV
Information zur Internet und TV Versorgung hier
Ihre persönliche Beratung
Margit Haider
RE/MAX Traunsee
E m.haider@remax-traunsee.at
T +07612/892 32232
H +43 699 16 89 23 20
F +43 7612 89 23230