Erstbezug! großzügige 3-Zimmer-Wohnung in zentraler Lage
Wohnung
- Etage,
4813
Altmünster
,
Ackerweg 7
Beschreibung der Immobilie
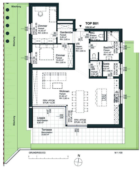
Wir freuen uns, Ihnen diese exklusive Neubauwohnung im Erstbezug anbieten zu dürfen. Mit einer großzügigen Wohnfläche von ca. 125 m² bietet diese Immobilie ein einzigartiges Wohnerlebnis inmitten einer urbanen Umgebung.
Highlights:
Große, helle Räume: Die Wohnung besticht durch ihre lichtdurchfluteten Räume, die ein angenehmes Wohngefühl schaffen.
2 Schlafzimmer: Genügend Platz für die ganze Familie oder als Raum für Home Office und Gäste.
Zentrale Lage: Die Immobilie befindet sich in bester Lage, nur wenige Gehminuten vom See entfernt
Terrasse mit Weitblick: Genießen Sie die frische Luft auf Ihrer 34 m² großen Terrasse und ca. 97 m² großen Garten, mit Blick auf den Traunsee und die umliegende Gebirgskulisse.
1 Tiefgaragenplatz und 1 Außenabstellplatz sorgen für bequemes und sicheres Parken.
Perfekte Infrastruktur: Die Nähe zum See, kombiniert mit einer erstklassigen Infrastruktur, bietet Ihnen alle Annehmlichkeiten des täglichen Bedarfs in greifbarer Nähe.
Diese Immobilie eignet sich perfekt für all diejenigen, die das Besondere suchen und Wert auf Qualität, Komfort und eine einzigartige Lage legen. Der Erstbezug garantiert Ihnen modernste Ausstattung und hochwertige Materialien.
Durch die effiziente Bauweise und den Einsatz energiesparender Technologien erreichen wir den Standard eines Niedrig-Energiehauses.
Seit 01. Jänner 2021 gilt Altmünster als Vorbehaltsgebiet, aus diesem Grund ist die Begründung eines Freizeitwohnsitzes ausschließlich nach grundverkehrsbehördlicher Prüfung und Genehmigung möglich.
Durch die effiziente Bauweise und den Einsatz energiesparender Technologien erreichen wir den Standard eines Niedrig-Energiehauses.
Seit 01. Jänner 2021 gilt Altmünster als Vorbehaltsgebiet, aus diesem Grund ist die Begründung eines Freizeitwohnsitzes ausschließlich nach grundverkehrsbehördlicher Prüfung und Genehmigung möglich.
Virtueller Rundgang: https://tour.ogulo.com/7nN1
Projektwebseite: https://www.remax.at/pr-seevillen2
| Angaben gemäß gesetzlichem Erfordernis: | |||
| Heizwärmebedarf: | 34.7 kWh/(m²a) | ||
| Klasse Heizwärmebedarf: | B | ||
| Faktor Gesamtenergieeffizienz: | 0.73 | ||
| Klasse Faktor Gesamtenergieeffizienz: | A | ||
Für weitere Fragen und für einen Besichtigungstermin steht Ihnen Frau Sabine Wenzel unter Ihrer Handynummer 0676 300 40 62 zur Verfügung.
Eckdaten
| Objektnr: | 1068_4599 |
| Art: | Wohnung - Etage |
| Land: | Österreich |
| Baujahr: | 2023 |
| Zustand: | Erstbezug |
| Alter: | Neubau |
| Kaufpreis: | 856.500,00 € |
| Provision: | 3.00 % |
| Wohnfläche: | 125,00 m² |
| Zimmer: | 3 |
| Bäder: | 1 |
| WC: | 2 |
| Terrassen: | 1 |
| Stellplätze: | 2 |
| Garten: | 97,00 m² |
| Keller: | 5,60 m² |
| Heizwärmebedarf: | B 34,70 kWh/m²a |
| fGEE: | A 0,73 |
Ausstattung
Erdwärme, Zentralheizung, Personenaufzug, Garage, Parkplatz
Internet und TV
Information zur Internet und TV Versorgung hier
Ihre persönliche Beratung
Sabine Wenzel
RE/MAX Traunsee
E s.wenzel@remax-traunsee.at
T +07612/892 32232
H +43 676 300 40 62
F +43 7612 89 232-30