Einzigartiges Wohnbauprojekt im Herzen von Bad Fischau!

Haus - Einfamilienhaus, 2721 Bad Fischau

Lage der Immobilie

Bad Fischau-Brunn liegt im Industrieviertel in Niederösterreich etwa 50 km südlich von Wien am Rand des Wiener Becken und ist eine Marktgemeinde mit 3302 Einwohnern.

Hier können Sie  baden wie zu Kaisers Zeiten: Die Tradition der k&k Bäderkultur sorgt im Fischauer Thermalbad für ein einzigartiges Flair. Im Mittelpunkt steht das immer frische, glasklare Quellwasser. 

Gastronomisch sind Sie in Bad Fischau bestens versorgt. Der Ortskern befindet sich in fußläufiger Nähe- Kaufhäuser, Banken, Gemeindeamt, Polizei und Kindergarten sind hier zu finden. Ein Arzt für Allgemeinmedizin, ein Tierarzt und ein Zahnarzt sind im Ort ansässig. Gemütliche Heurige und kleine Geschäfte verwöhnen mit regionalen Spezialitäten.

Zu den beliebten Sehenswürdigkeiten zählen noch die Eisensteinhöhle, die Pfarrkirche St. Martin und das Schloss Bad Fischau, welches auch für viele öffentliche Veranstaltungen genützt wird.

Wanderungen, vielleicht auf die Hohe Wand und Radausflüge (Mountain Biken) können Sie gleich vor der eigenen Haustür starten.

Die Stadt Wr. Neustadt und das Einkaufszentrum Fischapark sind per Rad oder Auto in wenigen Minuten zu erreichen,  die Autobahnanschlussstellen A2 Wr. Neustadt-West oder Wöllersdorf sind ca. 5 km entfernt und der Bahnhof nur einen Katzensprung entfernt.

Beschreibung der Immobilie

einzigartig - exklusiv - elegant

Ein moderner Wohntraum, vom Architekten geplant und bis ins Detail durchdacht.

Nach Süden ausgerichtet, ein ebener Garten und eine vorgesetzte Terrasse mit Überdachung und Umgrenzung wird dieser Massivbau schlüsselfertig errichtet.

Die Zufahrt erfolgt über eine Brücke, der Zufahrtsweg führt zum Haus und dem gegenüberliegenden Carport.

  • Im offen gestalteten Erdgeschoß befinden sich die geräumige Wohnküche, der Vorraum mit Platz für die Garderobe, ein Abstellraum und ein WC
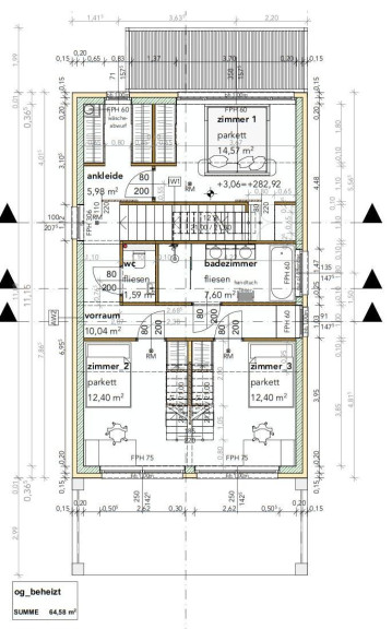
  • das Obergeschoß beherbergt 3 Schlafzimmer, ein Badezimmer und ein separates WC
  • in der Galerie finden Sie einen zusätzlichen Raum und zwei Kabinette, ein wahres Raumwunder

Genießen Sie die Annehmlichkeiten und die Qualität eines Neubaus und ziehen Sie sorglos in ein fertiges Haus ein!

Schlüsselfertige Ausführung, Änderungswünsche im Raumkonzept Innenbereich vor Baubeginn möglich und im Preis inkludiert.

Kaufen ohne Risiko, keine Anzahlung nötig!

Gerne senden wir Ihnen detaillierte Unterlagen, ich freue mich auf ein gemeinsames Gespräch!

Eckdaten

Objektnr: 0001009322
Art: Haus - Einfamilienhaus
Land: Österreich
Baujahr: 2024
Kaufpreis: 649.938,00
Provision: 3% des Kaufpreises plus 20% USt.
Wohnfläche: 167,00 m²
Grundstücksfl.: 319,72 m²
Zimmer: 6
Bäder: 1
WC: 2
Terrassen: 1
Garten: 250,89 m²
Heizwärmebedarf:  A  19,60 kWh/m²a
fGEE:  A++  0,52
Immobilie merken Exposé

Ausstattung

Fußbodenheizung


Internet und TV

Information zur Internet und TV Versorgung hier


Immobilie anfragen


Ihre persönliche Beratung

Raiffeisen Immobilien Vermittlung Ges.m.b.H

Eveline Kamper

Raiffeisen Immobilien Vermittlung

E teamnoesued@riv.at

T +43517517

H +43 664 60 517 517 52