Ruhig wohnen, schnell in Wien: Belagsfertige 2-Zimmer Wohnung

Wohnung , 2122 Münichsthal

Lage der Immobilie

Das Neubauprojekt in der Bachgasse 1, 2122 Münichsthal, liegt idyllisch im Weinviertel, einer der malerischsten Regionen Niederösterreichs. Münichsthal, ein kleiner, ruhiger Ort ca. 3 km von Wolkersdorf entfernt, bietet eine perfekte Kombination aus ländlicher Ruhe und schneller Erreichbarkeit der Stadt. In nur 25 Minuten gelangt man mit dem Auto nach Wien, was die Lage für Pendler besonders attraktiv macht.


Umgeben von Weinbergen und weitläufigen Naturflächen, lädt die Umgebung zu Spaziergängen, Wanderungen oder Radtouren ein. Die charmante Dorfgemeinschaft, lokale Heurigen und die Nähe zu allen wichtigen Annehmlichkeiten wie Schulen, Supermärkten und Ärzten machen die Lage ideal für Familien und Ruhesuchende.

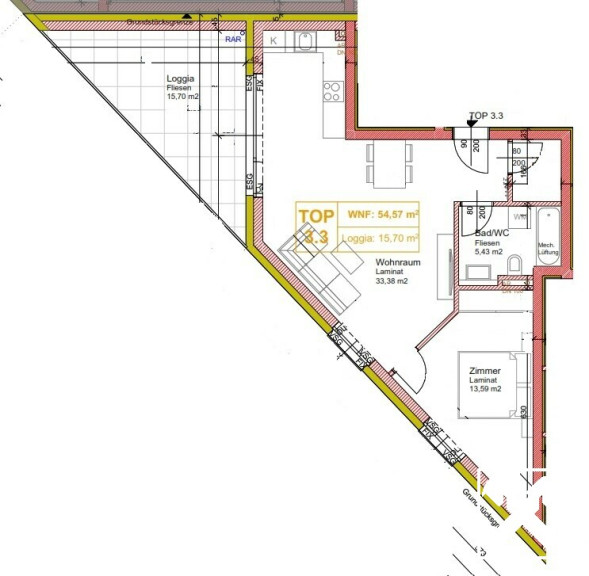
Beschreibung der Immobilie

Diese hochwertig errichtete 2-Zimmer Wohnung in der charmanten Gemeinde Münichsthal bietet modernes Wohnen in ländlicher Ruhe. Auf einer Wohnfläche von ca. 54,57 m² finden Sie ein offenes und helles Raumkonzept, das höchsten Wohnkomfort garantiert. Ein besonderes Highlight ist die großzügige Loggia mit ca. 15,70 m², welche zu entspannten Stunden im Freien einlädt.

Die Wohnung wird belagsfertig übergeben, was Ihnen die Freiheit gibt, den Innenausbau nach Ihren individuellen Wünschen zu gestalten. Optional bieten wir eine schlüsselfertige Fertigstellung für € 16.371,00 an. Hierbei können Sie auf eine qualitativ hochwertige Endausführung vertrauen und ohne zusätzlichen Aufwand einziehen.

Für zusätzlichen Komfort besteht die Möglichkeit, einen KFZ-Abstellplatz für € 15.000,00 zu erwerben.

Da es sich um ein Neubauprojekt handelt, können die genauen laufenden Kosten erst nach der Übergabe der Wohnungen bekanntgegeben werden. Die hier angegebenen Werte dienen lediglich als Richtwerte und werden nach Finalisierung des Projekts konkretisiert.

Eckdaten

Objektnr: 00010093180013
Art: Wohnung
Land: Österreich
Baujahr: 2024
Kaufpreis: 279.000,00
Provision: 3% des Kaufpreises plus 20% USt.
Betriebskosten: 109,14 €
Wohnfläche: 54,57 m²
Zimmer: 2
Bäder: 1
WC: 1
Heizwärmebedarf:  B  35,70 kWh/m²a
fGEE:  A+  0,65
Immobilie merken Exposé

Ausstattung

Fußbodenheizung


Internet und TV

Information zur Internet und TV Versorgung hier


Immobilie anfragen


Ihre persönliche Beratung

Raiffeisen Immobilien Vermittlung Ges.m.b.H

Andreas Zach

Raiffeisen Immobilien Vermittlung

E teamwien@riv.at

T +43517517436646051751780