Neubauwohnung in der Kulturhauptstadt Bad Ischl

Wohnung - Penthouse, 4820 Bad Ischl , Nikolaus-Lenau-Straße 9a

Beschreibung der Immobilie

BEYOND Bad Ischl ist nicht nur ein Wohnprojekt, sondern eine Lebensphilosophie, die den Bewohnern ein Höchstmaß an Lebensqualität und Modernität bietet, ohne die reiche Geschichte und den Charme von Bad Ischl zu vernachlässigen.

Es ist der Ort, an dem das Beste aus beiden Welten aufeinandertreffen. Eine wahre Oase des zeitgenössischen Wohnens im Herzen der Natur. Nicht ohne Grund wählte Kaiser Franz Josef das Salzkammergut und Bad Ischl zu seiner Lieblings-Destination.

DIE NÄHE ZUM KULTURELLEN ERBE VON BAD ISCHL, WIE DEM KAISERPARK UND DEN HISTORISCHEN SEHENSWÜRDIGKEITEN, ERMÖGLICHT ES DEN BEWOHNERN, IN DIE REICHE VIELFALT DER STADT EINZUTAUCHEN. BAD ISCHL WAR STOLZ DARAUF 2024 KULTURHAUPTSTADT EUROPAS ZU SEIN.

Nach wie vor spürt man das reiche kulturelle Erbe und das pulsierende künstlerische Leben, das in dieser bezaubernden Stadt zu finden ist.

BEYOND Bad Ischl BIETET NICHT NUR STILVOLLES WOHNEN, SONDERN DEFINIERT LUXUS NEU.
JEDE WOHNEINHEIT IST BIS INS KLEINSTE DETAIL DURCHDACHT UND BESTICHT DURCH HOCHWERTIGE MATERIALIEN SOWIE EINE TOP-AUSSTATTUNG.

→ nachhaltiges Bebauungskonzept
→ Zentralheizung mit Wärmepumpe
→ Photovoltaik-Anlage
→ Ein Lift verbindet alle Ebenen
→ barrierefreies Wohnen möglich
→ großzügige Kellerabteile (10 - 13 m²)
→ Tiefgarage mit 20 Stellplätzen
→ modernste Haustechnik
→ elektrisches Beschattungssystem
→ exklusive Ausstattung
→ großzügige Glasflächen für traumhafte Ausblicke
→ harmonische Auswahl der Materialien

Tiefgaragenplätze stehen in unterschiedlichen Breiten zur Verfügung und werden als eigene TOPs (lt. Preisliste) angeboten.

Möchten Sie eine Wohnung als Anlage erwerben, kontaktieren Sie uns bezüglich der Anlegerpreisliste!

Wir weisen aber darauf hin, dass Bad Ischl ein sogenanntes Vorbehaltsgebiet ist (grundsätzlich nur Hauptwohnsitz).

Besuchen Sie auch unsere Projektseite und erfahren Sie mehr: https://beyondbadischl.at
Angaben gemäß gesetzlichem Erfordernis:
Heizwärmebedarf:40.0 kWh/(m²a)
Klasse Heizwärmebedarf:B
Faktor Gesamtenergieeffizienz:0.74
Klasse Faktor Gesamtenergieeffizienz:A

Für weitere Fragen und für einen Besichtigungstermin rufen Sie Herrn Wolfgang Hechfelner unter der Büronummer 07612 89 232 an.

Eckdaten

Objektnr: 1068_4800
Art: Wohnung - Penthouse
Land: Österreich
Baujahr: ca. 2026
Zustand: Erstbezug
Alter: Neubau
Kaufpreis: 1.825.000,00
Provision: 3.00 %
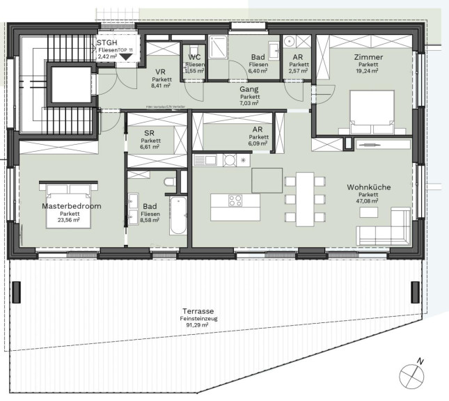
Wohnfläche: 137,00 m²
Zimmer: 3,50
Bäder: 2
WC: 2
Terrassen: 1
Keller: 13,50 m²
Heizwärmebedarf:  B  40,00 kWh/m²a
fGEE:  A  0,74
Immobilie merken Exposé

Ausstattung

Erdwärme, Zentralheizung, Personenaufzug, Kabel/Satelliten-TV


Internet und TV

Information zur Internet und TV Versorgung hier


Immobilie anfragen


Ihre persönliche Beratung

RE/MAX Traunsee

Wolfgang Hechfelner

RE/MAX Traunsee

E w.hechfelner@remax-traunsee.at

T +07612/892 32232

H +43 699 17 89 23 20

F +43 7612 89 232-30