Ordinations-/Büroräumlichkeiten in Hollenburg

Büro / Praxis - Bürofläche, 3506 Hollenburg

Beschreibung der Immobilie

Sie suchen Räumlichkeiten für eine Praxis oder ein Büro? Wir haben sie!

Die 110 m² Nutzfläche befinden sich im Erdgeschoss des Gemeindehauses von Hollenburg.

Der Eingang ist barrierefrei mittels Treppenlift gestaltet, somit ist Ihre Praxis von Ihren Patienten problemlos erreichbar.

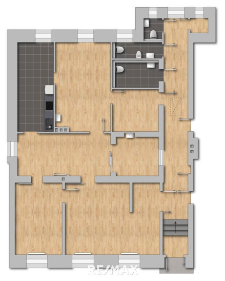
Die Ordination unterteilt sich in folgende Räumlichkeiten:

einen Eingangsbereich, einen großzügigen Warteraum, ein Anmeldungszimmer, ein Arztzimmer, zwei Behandlungsräume, ein Behinderten gerechtes WC, ein weiteres Kunden WC und ein Personal WC.

Die Besprechungs-/Behandlungszimmer wurden mit hochwertigen Türen ausgestattet, somit ist für ungestörte Gespräche mit Ihren Patienten und Privatsphäre gesorgt.

Parkplätze für Ihre Patienten, sowie Ihr Personal sind ausreichend hinter dem Gebäude vorhanden.

Die Gesamtmiete beinhaltet die Nettomiete, die Betriebskosten, ein Heizungsakonto sowie die allf. Ust.

Entfernungen:
Krems (ca. 7 km), St. Pölten (ca. 30 km), Wien (ca. 70 km)

Überzeugen Sie sich von den vielfältigen Nutzungsmöglichkeiten dieser Räumlichkeiten – ich freue mich auf Ihren Anruf!

Bitte beachten Sie, dass die von uns angebotenen Immobilien nicht dauerhaft auf Fremdplattformen präsentiert werden. Sie können jedoch während der gesamten Vermarktungszeit alle relevanten Informationen zum Objekt auf unserer Homepage unter www.remax.at/2442-2298 online nachlesen!
Angaben gemäß gesetzlichem Erfordernis:
Heizwärmebedarf:107.7 kWh/(m²a)
Klasse Heizwärmebedarf:D
Faktor Gesamtenergieeffizienz:1.39
Klasse Faktor Gesamtenergieeffizienz:C

Eckdaten

Objektnr: 2442_2298
Art: Büro / Praxis - Bürofläche
Land: Österreich
Zustand: Gepflegt
Möbliert: Teil
Gesamtmiete: 1.324,78
Kaltmiete (netto): 1.103,98 €
Kaltmiete: 1.103,98 €
Provision: 3.00 MM
Nutzfläche: 110,00 m²
Bürofläche: 110,00 m²
Zimmer: 5
WC: 3
Heizwärmebedarf:  D  107,00 kWh/m²a
fGEE:  C  1,39
Immobilie merken Exposé

Ausstattung

Zentralheizung


Internet und TV

Information zur Internet und TV Versorgung hier


Immobilie anfragen


Ihre persönliche Beratung

RE/MAX Balance in Krems

Christoph Czamutzian, Akad. IM

RE/MAX Balance in Krems

E christoph.czamutzian@remax-balance.at

T 436645132233

H +436645132233