Immobilie merken

Barrierefreie Büroflächen

Büro / Praxis - Bürofläche, 4050 Traun

Beschreibung der Immobilie

Große Büroflächen in verkehrstechnisch guter Lage - öffentliche Verkehrsmittel fußläufig erreichbar!

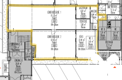
Viele Fenster sorgen für eine freundliche Atmosphäre und genügend Tageslicht. Es stehen mehrere Büros in unterschiedlicher Größe zur Verfügung.

Die Größe der einzelnen Büros kann mittels Trockenbauwände noch neu gestaltet werden.

Ein Teilung der Gesamtfläche ist ebenfalls möglich - somit kann durchaus auch eine Teilfläche angemietet werden.

Genügend Parkplätze stehen für je EUR 30,-- zzgl. 20 % USt. direkt beim Gebäude zur Verfügung.

Eckdaten

Gesamtmiete: 18.451,57 €
Fläche: 1.339,70 m²

Basisdaten zur Immobilie

Objektnr: 0004004965
Art: Büro / Praxis - Bürofläche
Land: Österreich
Baujahr: 1984
Gesamtmiete: 18.451,57
Kaltmiete (netto): 12.832,49 €
Kaltmiete: 15.376,31 €
Provision: 3 Bruttomonatsmieten plus 20% USt.
Betriebskosten: 1.614,28 €
Heizkosten: 929,54 €
Bürofläche: 1.339,70 m²
Heizwärmebedarf:  D  113,00 kWh/m²a
fGEE:  C  1,43

Ausstattung

Gas, Zentralheizung



Internet und TV

Information zur Internet und TV Versorgung hier




Immobilie anfragen




Ihre persönliche Beratung

Real-Treuhand Immobilien Vertriebs GmbH

Markus Follmer

Real-Treuhand Immobilien

follmer@raiffeisen-immobilien.at

+43 50 6596 80028013

+43 676 8141 8013