| HELLE & GEMÜTLICHE ALTBAUWOHNUNG | 1 ZIMMER | 3. OG | SANIERT | GRAZ-GEIDORF
Wohnung
- Etage,
8010
Graz
,
Wormgasse
Beschreibung der Immobilie
Inmitten einer der elegantesten Wohngegenden von Graz präsentiert sich dieses wunderschöne klassische Altbau-Zinshaus, das um 1891 erbaut wurde und durch seine detailreiche, typisch historische Architektur beeindruckt. Der Charme des 19. Jahrhunderts wurde in den überwiegend im Originalstil erhaltenen Wohnungen bewahrt und verleiht dem Haus eine besonders stilvolle Atmosphäre sowie höchsten Wohnkomfort.
Die Liegenschaft befindet sich in der Wormgasse in Graz-Geidorf, einer der repräsentativsten und begehrtesten Adressen der Stadt, geprägt von zahlreichen hervorragend erhaltenen Altbauten.
Die Umgebung überzeugt durch ihre außergewöhnliche Lebensqualität: In unmittelbarer Nähe liegen der Stadtpark, die Universität, das LKH Universitätsklinikum Graz sowie die Grazer Innenstadt mit ihrem historischen Altstadtkern – alles bequem in wenigen Minuten zu Fuß erreichbar.
Helle Altbauwohnung mit besonderem Charme – Top 10 im 3. Obergeschoss
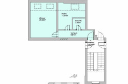
Diese sehr helle Altbauwohnung befindet sich im 3. Obergeschoss (ohne Lift) und bietet auf 50,47 m² eine gut durchdachte Raumaufteilung. Die Wohnung gliedert sich in eine Küche, ein großzügiges Zimmer, einen Vorraum sowie ein Badezimmer mit Badewanne und WC.
Besonders hervorzuheben ist der einzigartige Wohncharakter, der durch die Dachflächenfenster und die sichtbaren Holzbalken entsteht. Diese Kombination verleiht der Wohnung eine warme, gemütliche Atmosphäre und einen unverwechselbaren Altbaucharme.
Die Beheizung erfolgt mittels Elektroheizung, was eine einfache und individuelle Regulierung ermöglicht.
Vereinbaren Sie gerne einen Besichtigungstermin.
Hinweis: Die Bilder wurden zur besseren Veranschaulichung mit Hilfe von KI generiert. Die Wohnung wir unmöbliert verkauft.
Wir weisen darauf hin, dass zwischen dem Vermittler und dem zu vermittelnden Dritten ein familiäres oder wirtschaftliches Naheverhältnis besteht.
Der Vermittler ist als Doppelmakler tätig.
DECUS Immobilien GmbH – Wir beleben Räume
Für weitere Informationen und Besichtigungen steht Ihnen gerne Frau Katharina Hammerl unter der Mobilnummer +43 660 688 33 43und per E-Mail unter hammerl@decus.at persönlich zur Verfügung.
www.decus.at | office@decus.at
Wichtige Informationen
Bitte beachten Sie, dass per 13.06.2014 eine neue Richtlinie für Fernabsatz- und Auswärtsgeschäfte in Kraft getreten ist.
Ab 1.4.2024 entfallen die Grundbuchs- und Pfandrechtseintragungsgebühren vorübergehend für Eigenheime bis zu einer Bemessungsgrundlage von EUR 500.000,-. Voraussetzung ist das dringende Wohnbedürfnis, ausgenommen davon sind vererbte oder geschenkte Immobilien. Die Befreiung ist jedoch für den Einzelfall zu prüfen, DECUS Immobilien übernimmt hierzu keine Haftung.
Ab 01.07.2023 gilt das Erstauftraggeber-Prinzip bei Wohnungsmietverträgen, ausgenommen davon sind Dienst-/Natural-/Werkswohnungen. Wir dürfen gem. § 17 Maklergesetz darauf hinweisen, dass wir auf die Doppelmaklertätigkeit gem. § 5 Maklergesetz bei Wohnungsmietverträgen verzichten und nur noch einseitig tätig sind (bei den restlichen Vermittlungsarten nicht) und ein wirtschaftliches Naheverhältnis zu unseren Auftraggebern besteht.
Im Falle eines Abschlusses mit Ihnen oder einem von Ihnen namhaft gemachten Dritten bzw. bei beidseitiger Willensübereinstimmung beträgt unser Honorar (lt. Honorarverordnung für Immobilienmakler) 2 Bruttomonatsmieten (BMM) bei Dienst-/Natural-/Werkwohnungen sowie Suchaufträgen, 3 BMM bei Gewerbe-, PKW-, Keller- und Lagermietverträgen sowie bei Kaufobjekten 3 % des Kaufpreises, zuzüglich der gesetzlichen Umsatzsteuer.
Dieses Objekt wird Ihnen unverbindlich und freibleibend angeboten. Oben angeführte Angaben basieren auf Informationen und Unterlagen des Eigentümers und sind unsererseits ohne Gewähr.
Nähere Informationen sowie unsere AGBs und die Nebenkostenübersichtsblatt finden Sie auf unserer Homepage www.decus.at unter "Service" - "Rechtliches zum FAGG" sowie im Anhang der zugesendeten Objekt-Exposés!
Infrastruktur / Entfernungen
Gesundheit
Arzt <250m
Apotheke <250m
Klinik <750m
Krankenhaus <750m
Kinder & Schulen
Schule <500m
Kindergarten <250m
Universität <500m
Höhere Schule <750m
Nahversorgung
Supermarkt <500m
Bäckerei <250m
Einkaufszentrum <1.500m
Sonstige
Geldautomat <250m
Bank <250m
Post <250m
Polizei <500m
Verkehr
Bus <250m
Straßenbahn <750m
Autobahnanschluss <5.750m
Bahnhof <500m
Angaben Entfernung Luftlinie / Quelle: OpenStreetMap
Eckdaten
| Kaufpreis: | 220.000,00 € |
| Fläche: | 50,47 m² |
| Zimmer: | 1 |
Basisdaten zur Immobilie
| Objektnr: | 1144609 |
| Art: | Wohnung - Etage |
| Land: | Österreich |
| Baujahr: | 1891 |
| Alter: | Altbau |
| Kaufpreis: | 220.000,00 € |
| Provision: | 3% des Kaufpreises zzgl. 20% USt. |
| Betriebskosten: | 96,52 € |
| MwSt Gesamt: | 9,65 € |
| Wohnfläche: | 50,47 m² |
| Nutzfläche: | 50,47 m² |
| Zimmer: | 1 |
| Keller: | 1,63 m² |
| Heizwärmebedarf: | D 130,10 kWh/m²a |
| fGEE: | D 2,30 |
Ausstattung
Fliesen, Laminatboden, Elektro, Einbauküche, Badewanne
Internet und TV
Information zur Internet und TV Versorgung hier
Ihre persönliche Beratung
Katharina Hammerl
DECUS Immobilien GmbH
hammerl@decus.at
+43 660 688 33 43
+43 660 688 33 43
F +43 1 35 600 10
