ERSTBEZUG Neubauwohnung-Villendorf Ensemble am Steindl! Villa 6-EG-Top 3
Wohnung
- Etage,
3500
Krems an der Donau
Beschreibung der Immobilie
Das moderne Ensemble liegt im naturverbundenen Kremser Ortsteil Am Steindl, an einem sonnigen Südhang, der sich
sanft in Richtung Kulturstadt und Donautal hinabneigt und überragende Ausblicke bietet. Neben der ausgezeichneten
Lage überzeugt das Projekt durch ein CO2-optimiertes Energie- und Gebäudekonzept mit thermischer
Bauteilaktivierung, Photovoltaikanlagen sowie Erdwärmesonden. Hohe Energie- und Kosteneffizienz für
Bewohnerinnen und Bewohner. Modernes Wohnklima!
Das gesamte Projekt ist barrierefrei konzipiert. Jede Gebäudeeinheit hat einen Lift sowie einen direkten Zugang in die
Tiefgarage.
Das Projekt im Überblick:
freifinanzierte Neubauwohnungen mit 2-4 Zimmer
von 38 - bis 108m² Wohnfläche
private Freiflächen wie Garten, Terrasse oder Balkon
Tiefgaragenplätze vorhanden (nicht im KP enthalten), E-Mobility optional
Fahrradabstellplätze (TG bzw. EG)
Einlagerungsräume für jede Wohnung
Ein Projekt für die Gemeinschaft
Gemeinschaftsraum und Gemeinschaftsgarten
Spiel-Bereich im Freien
Kinderwagen- & Fahrradabstellplätze
Die Wohnungen erfüllen jegliche Anforderungen an modernes und stylisches Wohnen.
- Fußbodenheizung bzw. Deckenheizung mit zentralem Raumthermostat
- überdurchschnittliche Elektroausstattung
- Lackierter Eichenparkettboden in den Wohnräumen
- Feinsteinzeug in den Nassräumen
- exklusive Sanitärausstattung von Marken wie Laufen, Kaldewei und Grohe
- 3-fach verglaste Holz-Alu Fenster
- die Fenster und Fenstertüren verfügen über außen liegenden Sonnenschutz
Lage:
Ländliches Flair gepaart mit städtischer Infrastruktur, gute Anbindung an die S 5, öffentliche Verkehrsmittel
(Bushaltestelle in 6 Gehminuten) sowie eine verkehrsberuhigte Lage garantieren Ihnen einen stressfreien Alltag. Zur
Naherholung bieten sich Ihnen zahlreiche Möglichkeiten in und rund um Krems, genießen Sie außerdem die Wachauer
Wein- und Gastronomievielfalt.
Ich freue mich Ihnen diese stilvollen Wohnungen präsentieren zu dürfen!
Bitte beachten Sie, dass unsere Immobilien nicht dauerhaft auf Fremdplattformen präsentiert werden. Sie können jedoch während der gesamten Vermarktungszeit alle relevanten Informationen zum Objekt auf unserer Homepage unter www.remax.at/2442-2321 bis 2361 online nachlesen. Zögern Sie nicht, uns zu kontaktieren, um weitere Informationen zu erhalten oder einen unverbindlichen Besichtigungstermin zu vereinbaren.
| Angaben gemäß gesetzlichem Erfordernis: | |||
| Heizwärmebedarf: | 28.6 kWh/(m²a) | ||
| Klasse Heizwärmebedarf: | B | ||
| Faktor Gesamtenergieeffizienz: | 0.57 | ||
| Klasse Faktor Gesamtenergieeffizienz: | A+ | ||
Eckdaten
| Objektnr: | 2442_2357 |
| Art: | Wohnung - Etage |
| Land: | Österreich |
| Baujahr: | ca. 2024 |
| Zustand: | Erstbezug |
| Kaufpreis: | 398.000,00 € |
| Provision: | 3.00 % |
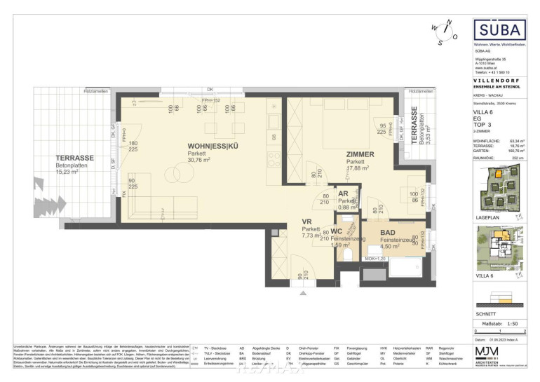
| Wohnfläche: | 63,34 m² |
| Zimmer: | 2 |
| Bäder: | 1 |
| WC: | 1 |
| Terrassen: | 2 |
| Stellplätze: | 1 |
| Garten: | 160,76 m² |
| Heizwärmebedarf: | B 28,60 kWh/m²a |
| fGEE: | A+ 0,57 |
Ausstattung
Erdwärme, Zentralheizung, Personenaufzug, Garage
Internet und TV
Information zur Internet und TV Versorgung hier
Ihre persönliche Beratung
Christoph Czamutzian, Akad. IM
RE/MAX Balance in Krems
E christoph.czamutzian@remax-balance.at
H +436645132233