Beschreibung der Immobilie
GEHOBENES WOHNEN, URBANER LIFESTYLE
Mitten im 1. Wiener Gemeindebezirk, in zentraler Lage zwischen Wien Mitte und Stephansplatz – so genießt man das Großstadtleben. An der noblen Adresse Parkring 12 befindet sich der
PARKRING TOWER. Dieses mixed use Bestandsgebäude beherbergte bisher neben attraktiven Wohnungen auch Büros und das "Hotel Parkring". Nun entstehen im zweiten Obergeschoss 1 Büro und 8 exklusive Eigentumswohnungen mit einer Wohnfläche von 55 bis 129 Quadratmetern. In attraktiver Lage direkt am Ring gelegen, genießen die künftigen Bewohner:innen die Grün- und Erholungsflächen des wunderschönen Stadtparks direkt vor der Haustür sowie das pulsierende Citylife der Hauptstadt.
DER IDEALE WOHNTYP FÜR JEDES INDIVIDUELLE BEDÜRFNIS
Durch den Wohnungsmix von 2 bis 4 Zimmern werden mit dem PARKRING TOWER einerseits Singles mit gehobenen Ansprüchen als auch Paare mit Wunsch nach viel Raum und Entfaltung fündig. Durchdachte Grundrisse, modernste Ausstattung, hochwertige Materialien und nicht zuletzt Annehmlichkeiten wie die Tiefgarage, Aufzüge und der hauseigene Concierge-Service machen dieses Projekt zu einem absoluten Wohntraum. Einige der Einheiten verfügen zudem über attraktive Freiflächen, die zum einzigartigen Flair beitragen und die unmittelbare Nähe zum Stadtpark spürbar machen.
UNESCO-Welterbe
Seit 2001 gehört das historische Zentrum der Stadt, insbesondere der gesamte 1. Bezirk, die Ringstraße und die angrenzenden Gebiete, zum UNESCO-Welterbe. Dies beschränkt naturgemäß die Möglichkeiten von Wohnraumentwicklung innerhalb der Ringstraße. Eine Wohnung in dieser Lage zu erwerben, ist somit wie der Besitz eines kostbaren Edelsteins, was das Projekt PARKRING TOWER zu einem unvergleichlich seltenen Gut und diese Adresse zu einer absoluten Spitzenlage macht.
DIE ERSTE ADRESSE IN SACHEN LEBENSGEFÜHL
Mit der Top Lage des PARKRING TOWERs sind Sie bestens vernetzt: Neben der Anbindung an alle öffentlichen Verkehrsmittel sind Sie zudem auch zu Fuß in wenigen Gehminuten direkt beim Wiener Stephansplatz, dessen Dom nicht umsonst zu den bekanntesten Wahrzeichen unserer Bundeshauptstadt zählt. Noch zentraler als direkt im Mittelpunkt des Geschehens geht nicht. Willkommen in der Weltstadt, heimkommen mitten im ersten Bezirk.
Stephansplatz: 10min Fußweg
FLUGHAFEN WIEN: 16min mit dem CAT, 22min mit dem Auto
GOLDENES QUARTIER/ LUXUS SHOPPING BOUTIQUEN: 10 Gehminuten
STADTPARK: gleichdirekt gegenüber
KULTURGENUSS UND FREIZEITAKTIVITÄTEN
Mit dem gegenüberliegenden Stadtpark liegen Sport- und Erholungsmöglichkeiten direkt vor der Haustür. Darüber hinaus sind zahlreiche Sehenswürdigkeiten, die die Bundeshauptstadt so lebenswert und weltberühmt machen, nur wenige Gehminuten vom PARKRING TOWER entfernt: Staatsoper, Stephansdom, Hofburg, Spanische Hofreitschule, Albertina, Kunst- und Naturhistorisches Museum, Parlament, Burgtheater und Nationalbibliothek lassen keine Wünsche offen und bieten Kulturgenuss für jeden Geschmack.
SHOPPING, BRANDS & FREIZEITGESTALTUNG
Zum Bummeln und Schlendern laden die unzähligen Boutiquen des ersten Bezirks. Die kleinen Shops an der Wollzeile, die vielen hochwertigen Brands rund um den Stephansplatz sowie die exklusiven Geschäfte am Graben, Kohlmarkt und dem Goldenen Quartier lassen jedes Shopping-Herz höherschlagen. Für die kleine Pause zwischendurch finden sich zahlreiche nette Bars für ein Gläschen Prosecco oder einen schnellen Espresso zur Stärkung.
VOM BUSINESS MEETING ZUM AFTER WORK
Auch beruflich ist man am Parkring bestens vernetzt. Unzählige Kanzleien und Praxen sind im ersten Bezirk vertreten, namhafte Firmen haben hier ihren Sitz. Für all jene, die jobbedingt häufig reisen müssen, sind auch Flughafen und Bahnhof nicht weit. Mit der Anbindung an den Ring, die Lände in unmittelbarer Nähe und damit die rasche Erreichbarkeit der Autobahn ist schnelles Vorankommen garantiert.
DIE WOHNLÖSUNG FÜR IHREN LEBENSSTATUS
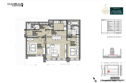
Die unterschiedlichen Wohnungstypen reichen von der funktionell geschnittenen 2-Zimmer-Wohnung über die großzügige 3-Zimmer-Wohneinheit mit Platz für die ganze Familie bis zum exklusiven 4-Zimmer-Traum mit Blick über die Stadt. Sie haben die Wahl – in jedem Fall mit Top-Ausstattung und hochwertigsten Materialien.
ELEGANTES AMBIENTE, FUNKTIONALE TECHNIK & WOHNKOMFORT AUF HÖCHSTEM NIVEAU
PARKRING TOWER verbindet überzeugende Funktionalität mit anspruchsvoller Designsprache: Exklusives Flair und Top Lage gepaart mit der Premium League in Sachen Ausstattung: Parkettböden, Fußbodenheizung und modernste Bäder mit Keramik in Top-Qualität sorgen für Wohlfühlambiente und zeitgemäßen Komfort. Die Wohnungen verfügen teilweise über attraktive Freiflächen, die hauseigene Tiefgarage und der Lift bieten uneingeschränkte Lebensqualität. Ein Concierge-Service kümmert sich um die kleinen und großen Bedürfnisse der Bewohner:innen und rundet das gehobene Wohnpackage ab.
Infrastruktur / Entfernungen
Gesundheit
Arzt <500m
Apotheke <500m
Klinik <500m
Krankenhaus <1.000m
Kinder & Schulen
Schule <500m
Kindergarten <500m
Universität <500m
Höhere Schule <500m
Nahversorgung
Supermarkt <500m
Bäckerei <500m
Einkaufszentrum <1.000m
Sonstige
Geldautomat <500m
Bank <500m
Post <500m
Polizei <1.000m
Verkehr
Bus <500m
U-Bahn <500m
Straßenbahn <500m
Bahnhof <500m
Autobahnanschluss <3.000m
Angaben Entfernung Luftlinie / Quelle: OpenStreetMap
Eckdaten
| Kaufpreis: | 2.046.000,00 € |
| Fläche: | 93,00 m² |
| Zimmer: | 3 |
Basisdaten zur Immobilie
| Objektnr: | 1279 |
| Art: | Wohnung - Etage |
| Land: | Österreich |
| Baujahr: | 2025 |
| Alter: | Neubau |
| Kaufpreis: | 2.046.000,00 € |
| Provision: | 3% des Kaufpreises zzgl. 20% USt. |
| Wohnfläche: | 93,00 m² |
| Zimmer: | 3 |
| Bäder: | 2 |
Ausstattung
Garage
Internet und TV
Information zur Internet und TV Versorgung hier
Ihre persönliche Beratung
Evgeny Pilnikov
Luxury Immobilien GmbH
sales@luxury-vienna.com
+43 664 338 49 07
