Urban leben, im Grünen wohnen – Gretels Garten, provisionsfrei!

Wohnung - Etage, 1220 Wien

Lage der Immobilie

Direkt beim Badeteich Hirschstetten, unweit der Blumengärten Hirschstetten. Öffentliche Anbindung: - U-Bahn (U2): Haltestelle Hausfeldstraße ca. 1,4 km - Die Haltestelle Hausfeldstraße ist in ca. 15 Minuten fußläufig erreichbar. Von hier ist die Wiener Innenstadt nur 20 Minuten entfernt. - Straßenbahn (26): Haltestelle Prinzgasse ca. 350 m - Bus: - Linie 85A: Haltestelle Pirquetgasse ca. 150 m - Linie 95A: Haltestelle Pirquetgasse ca. 150 m - Linie 95B: Haltestelle Zanggasse ca. 300 m - Linie 97A: Haltestelle Zanggasse ca. 350 m Gastronomie: - Cafés und Restaurants - Bäckereien Einkauf: - Supermarkt am Gelände - ADEG: 600 m - Lidl: 850 m - Hofer: 900 m - Penny Markt: 1,5 km Bildung: - Kindergarten am Gelände - Bildungscampus Berresgasse: 400 m - Ganztagesvolksschule: 350 m - Berufsschule: 400 m Gesundheit: - Fach- und Allgemeinärzt:innen im direkten Umfeld - Apotheke: 550 m - Physiotherapie: 750 m - Donauspital: 3,9 km

Beschreibung der Immobilie

„Gretls Garten“, die neue Wohnhausanlage mit 118 freifinanzierten Eigentumswohnungen, ist ab sofort bezugsfertig sein und liegt nur einen kurzen Fußweg vom frei zugänglichen Hirschstettner Badeteich entfernt. Der Badeteich bietet Erholungsmöglichkeiten mit seinen Spazierwegen, nur wenige Minuten von den neuen Eigenheimen entfernt. Die Wohnanlage besteht aus vier Gebäudeblöcken mit unterschiedlichen Höhen und bietet geräumige Wohnungsgrundrisse sowie großzügige Freiflächen, darunter kompakte Eigengärten. Zu den Annehmlichkeiten zählen eine Garage, Einlagerungsräume, Kinderwagen- und Fahrradräume, ein Gemeinschaftsraum, hauseigene Spielplätze und eine Gemeinschaftsterrasse. Die Architektur fördert den Gemeinschaftsgedanken. Das autofreie Viertel verfügt über zahlreiche Rad- und Fußwege. Es gibt 94 Tiefgaragenstellplätze, die alle für E-Mobilität vorbereitet sind. Die Wohnanlage liegt zwischen dem Badeteich Hirschstetten und der Hausfeldstraße, nur 10 Minuten von der U2-Station Hausfeldstraße entfernt. Die Buslinie 97A und die Straßenbahnlinie 26 bieten zusätzliche Verkehrsanbindung. Die Wohnungsgrößen variieren von 60 bis 111 Quadratmetern, mit 2 bis 4 Zimmern. Alle Wohnungen werden provisionsfrei angeboten. Die Ausstattung umfasst Echtholzböden, keramische Fliesen, elektrische Außenbeschattung, Glasfaseranschluss (A1 und Wien Energie), Fußbodenheizung mittels Fernwärme, Kellerabteil, Fahrradraum, Kinderwagenabstellmöglichkeit und einen Lift. Highlights zusammengefasst: - Provisionsfrei - Fußbodenheizung & Warmwasseraufbereitung mittels Fernwärme - Nahe Badeteich und U2 - Perfekte Verkehrsanbindung - Hochwertige Ausstattung - Elektrische Außenbeschattung - Glasfaseranschluss - Lift, Kellerabteil, Fahrradraum & Kinderwagenabstellmöglichkeit Die Fertigstellung ist bereits im Herbst 2024 erfolgt. Jetzt können Sie in Ihre neue Traumwohnung einziehen und die zahlreichen Vorzüge genießen.

Eckdaten

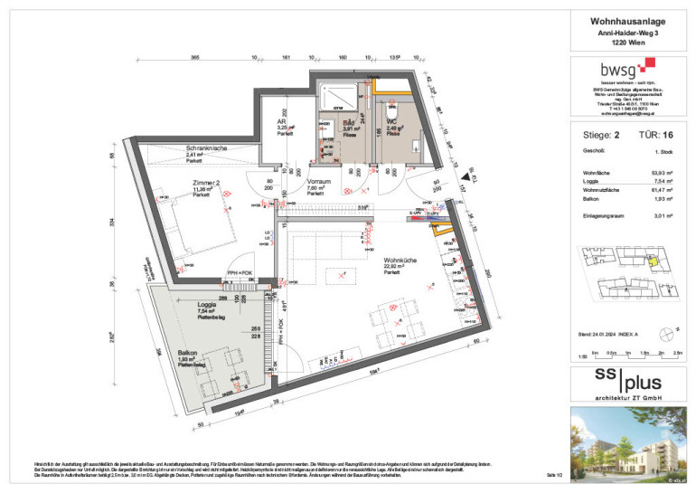
Objektnr: 126639_26
Art: Wohnung - Etage
Land: Österreich
Baujahr: 2024
Zustand: Erstbezug
Kaufpreis: 306.625,68
Betriebskosten: 74,97 €
Wohnfläche: 61,47 m²
Zimmer: 2
Balkone: 1
Heizwärmebedarf:  B  25,20 kWh/m²a
fGEE:  A  0,74
Immobilie merken Exposé

Ausstattung

Parkett, Fliesen, Fußbodenheizung, Personenaufzug


Internet und TV

Information zur Internet und TV Versorgung hier


Immobilie anfragen


Ihre persönliche Beratung

Aneta Nosalek

IMMOcontract Immobilien Vermittlung GmbH

E A.Nosalek@IMMOcontract.at

T 0043676841094207