Lage der Immobilie
Dieses Zweifamilienhaus aus den 30er Jahren in 1130 Wien bietet eine ideale Lage für Familien und Berufstätige. Nur einen Steinwurf vom Hietzinger Krankenhaus entfernt, genießen Sie eine hervorragende Anbindung an medizinische Einrichtungen sowie zahlreiche Einkaufsmöglichkeiten. Schulen, Kindergärten und Universitäten befinden sich in unmittelbarer Nähe, während die öffentlichen Verkehrsmittel wie Bus und Straßenbahn und U-Bahn bequem erreichbar sind. Hier leben Sie zentral und dennoch ruhig!Beschreibung der Immobilie
Willkommen in Ihrem neuen Zuhause in der begehrten Wohngegend von 1130 Wien! Dieses verträumte Zweifamilienhaus bietet Ihnen auf großzügigen 195m² eine Vielzahl an Möglichkeiten, Ihre Wohnträume zu verwirklichen. Hier haben Sie die Chance selbst umzuplanen und in ein Zuhause zu investieren, das Ihnen nicht nur Raum zum Leben, sondern auch eine Oase der Ruhe bietet.
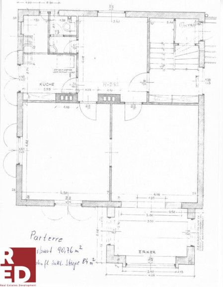
Das Haus verfügt über neun Zimmer, die Ihnen ausreichend Platz für die gesamte Familie bieten. Ob Sie ein Homeoffice einrichten, ein Spielzimmer für die Kinder gestalten oder einfach nur gemütliche Rückzugsorte schaffen möchten – hier sind Ihrer Kreativität keine Grenzen gesetzt. Die großzügigen Fenster sorgen für eine helle und freundliche Atmosphäre und bieten Ihnen einen herrlichen Grünblick, der Sie jeden Tag aufs Neue begeistert.
Der Garten lädt dazu ein, die warmen Sommermonate im Freien zu genießen. Ob für gesellige Grillabende mit Freunden oder entspannte Stunden im eigenen Grünen – hier können Sie die Natur in vollen Zügen erleben. Der Balkon bietet darüber hinaus einen weiteren Rückzugsort, um die frische Luft zu genießen oder den Tag ausklingen zu lassen.
Das Haus ist renovierungsbedürftig und derzeit als Zweifamilenhaus ausgelegt, was Ihnen aber die Möglichkeit gibt, es ganz nach Ihren Vorstellungen um zu gestalten.
Praktische Annehmlichkeiten wie drei WCs, drei Bäder und eine Garage mit zusätzlichem Stellplatz runden das Angebot ab und sorgen dann für einen hohen Wohnkomfort. In dieser vielseitigen Immobilie wird der Alltag zum Erlebnis.
Die Lage des Hauses ist ein weiterer entscheidender Pluspunkt. Sie sind hervorragend an das öffentliche Verkehrsnetz angebunden, mit Bus- und Straßenbahnhaltestellen in unmittelbarer Nähe. So erreichen Sie die Innenstadt und andere Stadtteile schnell und unkompliziert. In der Umgebung finden Sie alles, was das Herz begehrt: Ärzte, Apotheken, Schulen, Kindergärten, Universitäten sowie Supermärkte und eine Bäckerei sind bequem zu Fuß oder mit dem Fahrrad erreichbar.
Dieses Haus in 1130 Wien bietet Ihnen nicht nur ein Zuhause, sondern auch die Chance auf eine wertvolle Investition in eine der attraktivsten Wohngegenden der Stadt.
Unter Umständen könnte man auch das Haus abreissen und einen Neubau hinstellen. Das erfordert allerdings eine Einreichung bei den zuständigen Magistraten. Sollte dies nicht erlaubt werden, könnte sich der Verkäufer auch vorstellen, dass man dann den Kauf rückgängig machen kann. Das wäre doch eine Option, oder?
Lassen Sie sich diese Gelegenheit nicht entgehen und verwirklichen Sie Ihre Wohnträume in dieser einzigartigen Immobilie! Wir freuen uns darauf, Ihnen diese besondere Immobilie bei einer Besichtigung näher zu bringen.
Hinweis gemäß Energieausweisvorlagegesetz: Ein Energieausweis wurde vom Eigentümer bzw. Verkäufer, nach unserer Aufklärung über die generell geltende Vorlagepflicht, sowie Aufforderung zu seiner Erstellung noch nicht vorgelegt. Daher gilt zumindest eine dem Alter und der Art des Gebäudes entsprechende Gesamtenergieeffizienz als vereinbart. Wir übernehmen keinerlei Gewähr oder Haftung für die tatsächliche Energieeffizienz der angebotenen Immobilie.
Wir weisen darauf hin, dass zwischen dem Vermittler und dem zu vermittelnden Dritten ein familiäres oder wirtschaftliches Naheverhältnis besteht.
Der Vermittler ist als Doppelmakler tätig.
RED Real Estates Development Immobilien und Bauträger GmbH
Sterngasse 3/2/6
1010 Wien
+43 676 5063031
Eckdaten
| Kaufpreis: | auf Anfrage |
| Fläche: | 195,00 m² |
| Zimmer: | 9 |
Basisdaten zur Immobilie
| Objektnr: | 8131/56 |
| Art: | Haus - Einfamilienhaus |
| Land: | Österreich |
| Baujahr: | 1935 |
| Zustand: | Teil_vollrenovierungsbed |
| Alter: | Altbau |
| Kaufpreis: | auf Anfrage |
| Provision: | 3% des Kaufpreises zzgl. 20% USt. |
| Wohnfläche: | 195,00 m² |
| Nutzfläche: | 292,00 m² |
| Grundstücksfl.: | 435,00 m² |
| Zimmer: | 9 |
| Bäder: | 3 |
| WC: | 3 |
| Balkone: | 1 |
| Stellplätze: | 1 |
| Garten: | 345,00 m² |
| Keller: | 87,00 m² |
Ausstattung
Parkett, Fliesen, Gas, Zentralheizung, Einbauküche, Bad mit Fenster, Garage, Parkplatz
Internet und TV
Information zur Internet und TV Versorgung hier
Ihre persönliche Beratung
Dipl.Ing. Stella Lessmann
RED REAL ESTATES DEVELOPMENT Bauträger und Immobilien GmbH
s.lessmann@immo.red
+43 676 5063031
