Provisionsfrei! Luxury Home - GANZ OBEN auf 2 Ebenen mit viel Platz! Direkt am Hauptbahnhof

Wohnung - Etage, 1100 Wien

Lage der Immobilie

Eingebettet in eine urbane Umgebung punktet die Adresse mit einer perfekten Infrastruktur und Verkehrsanbindung: Der Hauptbahnhof (U1, Straßenbahn 18, O, D, Autobus 13A, 69A, S-Bahn, Regionale Busse, Fernverkehr) mit seiner Hauptbahnhof-City samt attraktiven Geschäften, Gastronomie sowie sonntags geöffnetem Supermarkt sind ebenso fußläufig entfernt wie Arztpraxen, Kindergärten und Schulen. Die Favoritenstraße, eine beliebte Wiener Einkaufsstraße mit zahlreichen Geschäften, Märkten und Lokalen erreicht man ebenso wie das Schloss Belvedere innerhalb kürzester Zeit. Die Wiener City ist mit der U1 nur wenige Fahrminuten entfernt und Züge bringen Sie ohne Umsteigen zum Flughafen und Richtung Salzburg, Graz, Bratislava oder Budapest. Über die in der Nähe befindlichen Autobahnauffahrten der A4 und A23 verlassen Sie rasch die Stadt.

Beschreibung der Immobilie

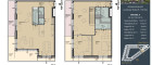
In urbaner Lage, weniger als fünf Minuten vom Hauptbahnhof entfernt, wird ein modernes Wohnhaus mit 80 freifinanzierten Eigentumswohnungen zwischen 29 m² und 180 m² Wohnfläche errichtet. Sämtliche Wohnungen verfügen über Freiflächen wie Eigengärten, Balkone und Terrassen, durch die ein attraktiver Mehrwert geschaffen wird. Bei der Ausstattung wird Individualität großgeschrieben, zwischen drei unterschiedlichen Ausstattungslinien sowie vier Parkettböden-Varianten kann gewählt werden. Auch bei der Technik befindet sich dieses Gebäude auf dem neuesten Stand: Geheizt und temperiert wird über eine Bauteilaktivierung (Geschoßdecke), und mittels Smart-Home Lösung können Sonnenschutz und Raumbeleuchtung sowie auf Käuferwunsch weitere Leistungen gesteuert werden. Unterschiedlich gestaltete Kinder- und Jugendspielplätze im Innen- und Außenbereich ermöglichen Spiel und Spaß innerhalb des Projektes. Die Fertigstellung ist für Spätsommer 2025 geplant.

Eckdaten

Objektnr: 125158_66
Art: Wohnung - Etage
Land: Österreich
Baujahr: 2024
Zustand: Erstbezug
Kaufpreis: 1.450.000,00
Wohnfläche: 153,57 m²
Zimmer: 4
Bäder: 2
WC: 2
Balkone: 2
Heizwärmebedarf:  B  21,30 kWh/m²a
fGEE:  A  0,75
Immobilie merken Exposé

Ausstattung

Parkett, Fliesen, Personenaufzug, Badewanne, Dusche


Internet und TV

Information zur Internet und TV Versorgung hier


Immobilie anfragen


Ihre persönliche Beratung

IMMOcontract Immobilien Vermittlung GmbH

Tsvetilena Galabinova

IMMOcontract Immobilien Vermittlung GmbH

E t.galabinova@IMMOcontract.at

T 004366460008196

H 004366460008196