NEUER PREIS! Ungarischer Landsitz nahe der österreichischen Grenze
Haus
,
9339
Öntesmajor
Lage der Immobilie
Nationalpark Neusiedlersee - Seewinkel/HansagBeschreibung der Immobilie
LAGE
Dieses idyllische Grundstück befindet sich in unmittelbarer Nähe des Grenzübergangs Pamhagen, eingebettet in die malerische Landschaft eines kleinen Dorfes. Das wunderschöne Burgenland mit seinen charmanten Ortschaften wie Frauenkirchen, Weiden oder Podersdorf ist in nur ca. 25 Minuten erreichbar. Ob für Weingenießer, Liebhaber kulinarischer Köstlichkeiten, passionierte Radfahrer oder Erholungssuchende am Neusiedler See – die Region bietet für jeden etwas.
Ein weiterer Vorteil: Die Erhaltungskosten dieser Immobilie sind äußerst gering und kaum mit den üblichen österreichischen Standards vergleichbar. Nutzen Sie diese Gelegenheit, um sich eine Oase der Ruhe und Lebensfreude zu schaffen!
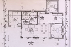
BESCHREIBUNG/RAUMAUFTEILUNG
Beim Betreten des Hauses gelangt man in den einladenden Wohnraum, der nahtlos in eine offene Küche übergeht. Die offene Gestaltung schafft eine freundliche und kommunikative Atmosphäre. Auf dieser Ebene befinden sich zudem zwei gemütliche Zimmer und zwei Badezimmer, die höchsten Komfort bieten.
Eine elegante Treppe führt vom Wohnraum in den oberen Bereich des Hauses. Hier findet man eine großzügige Galerie, die viel Platz für individuelle Gestaltungsmöglichkeiten bietet. Zusätzlich gibt es ein kleines Extrazimmer, das sich ideal als Lese- oder Arbeitszimmer eignet. Eine weitere Galerie mit einem kleinen Arbeitszimmer bietet einen herrlichen Blick in den Garten und schafft einen inspirierenden Arbeitsbereich.
Der Außenbereich des Anwesens ist ebenso beeindruckend wie das Innere. Eine großzügige Terrasse von 64,76 m² lädt zum Entspannen und Verweilen ein. Für Fahrzeuge steht ein Carport für zwei PKW zur Verfügung, das mit einem elektrischen Tor ausgestattet ist.
Zusätzliche Gebäude und Einrichtungen:
Steinhütten: Zwei charmante Steinhütten mit einer Fläche von 14,40 m² und 13,60 m² bieten zusätzlichen Stauraum oder können als Werkstätten genutzt werden.
Badehaus: Das Badehaus mit einer Größe von 17 m² verfügt über eine moderne Technik und eine Infrarot-Kabine, die zur Entspannung und Erholung einlädt.
Pool: Ein Highlight des Anwesens ist der Pool mit Gegenstromanlage, der eine Größe von 7,40 x 3,60 m und ein Fassungsvermögen von 30 m³ hat. Hier kann man an heißen Sommertagen eine erfrischende Abkühlung genießen.
Salettl: Ein gemütliches Salettl mit den Maßen 3 x 3 m bietet einen weiteren idyllischen Rückzugsort im Garten.
INFRASTRUKTUR
Trotz der ruhigen Lage muss man nicht auf eine gute Infrastruktur verzichten. In nur 10 Minuten erreicht man den Ort Kapuvár, der vielfältige Einkaufsmöglichkeiten bietet.
INFORMATION
Provision: 3 % des Kaufpreises + 20 % USt
Oben angeführte Angaben basieren auf Informationen und Unterlagen des Auftraggebers und sind unsererseits ohne Gewähr.
Wir weisen darauf hin, dass zwischen dem Vermittler und dem zu vermittelnden Dritten ein familiäres oder wirtschaftliches Naheverhältnis besteht.
Der Vermittler ist als Doppelmakler tätig.
Eckdaten
| Kaufpreis: | 395.000,00 € |
| Fläche: | 232,00 m² |
| Zimmer: | 4,50 |
Basisdaten zur Immobilie
| Objektnr: | 2740 |
| Art: | Haus |
| Land: | Ungarn |
| Baujahr: | 2014 |
| Zustand: | Neuwertig |
| Möbliert: | Teil |
| Alter: | Neubau |
| Kaufpreis: | 395.000,00 € |
| Nutzfläche: | 232,00 m² |
| Grundstücksfl.: | 2.740,00 m² |
| Zimmer: | 4,50 |
| Bäder: | 2 |
| WC: | 2 |
| Terrassen: | 1 |
| Stellplätze: | 2 |
| Garten: | 2.400,00 m² |
| Heizwärmebedarf: | D 123,84 kWh/m²a |
Ausstattung
Dielenboden, Fliesen, Gas, Zentralheizung, Wohnküche / offene Küche, Ostbalkon, Bad mit Fenster, Dusche, Kabel/Satelliten-TV, Carport, Swimmingpool
Internet und TV
Information zur Internet und TV Versorgung hier
Ihre persönliche Beratung
Alexander Hamersky
Marschall Immobilien GmbH
a.hamersky@marschall.at
+43 676 700 79 18
+436767007918
