Lage der Immobilie
KongreßparkBeschreibung der Immobilie
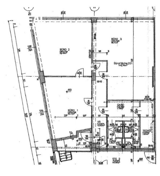
Zur Vermietung gelangt eine attraktive Bürofläche in ruhiger Lage neben dem Kongreßpark.
Das Objekt umfasst eine Fläche von ca. 146 m² und besteht aus 3 Büroräumen, einer Teeküche und Sanitäranlagen.
Es ist situiert im 1. Liftstock (nicht ganz barrierefrei).
Das Büro ist leicht zu erreichen, der Bahnhof Hernals, sowie die Haltestellen der Linien 43 und 10 befinden sich in unmittelbarer Nähe. Parkplätze sind in der Umgebung ausreichend vorhanden und können zusätzlich im Haus angemietet werden.
Ruhige Lage mit Grünblick und beste Nahversorgung in der Mittagspause machen dieses Objekt besonders attraktiv für alle, die eine moderne Fläche mit viel Licht im Gegenzug zur innerstädtischen Lage im Altbau bevorzugen.
Die Bruttomiete inkl. BK ohne Ust.: EUR 1.703,69
Die Bruttomiete inkl. BK und 20% Ust.: EUR 2.044,43
Zwischen dem Eigentümer und der s REAL Immobilienvermittlung GmbH besteht ein wirtschaftliches Naheverhältnis.
Infrastruktur / Entfernungen
Gesundheit
Arzt <150m
Apotheke <325m
Klinik <1.100m
Krankenhaus <925m
Kinder & Schulen
Schule <425m
Kindergarten <475m
Universität <2.075m
Höhere Schule <1.650m
Nahversorgung
Supermarkt <25m
Bäckerei <200m
Einkaufszentrum <575m
Sonstige
Geldautomat <575m
Bank <575m
Post <575m
Polizei <375m
Verkehr
Bus <100m
U-Bahn <300m
Straßenbahn <175m
Bahnhof <150m
Autobahnanschluss <4.150m
Angaben Entfernung Luftlinie / Quelle: OpenStreetMap
Eckdaten
| Kaltmiete (netto): | 1.387,28 € |
| Fläche: | 145,76 m² |
| Zimmer: | 3 |
Basisdaten zur Immobilie
| Objektnr: | 965/812 |
| Art: | Büro / Praxis |
| Land: | Österreich |
| Zustand: | Gepflegt |
| Alter: | Neubau |
| Kaltmiete (netto): | 1.387,28 € |
| Kaltmiete: | 1.703,69 € |
| Miete / m²: | 9,52 € |
| Provision: | 3 Bruttomonatsmieten zzgl. 20% USt. |
| Betriebskosten: | 316,41 € |
| Nutzfläche: | 145,76 m² |
| Bürofläche: | 145,76 m² |
| Zimmer: | 3 |
| WC: | 2 |
| Heizwärmebedarf: | B 46,00 kWh/m²a |
Ausstattung
Personenaufzug, Teeküche
Internet und TV
Information zur Internet und TV Versorgung hier
Ihre persönliche Beratung
Paul Tibaj
s REAL Kommerz
paul.tibaj@sreal.at
+43 (0)5 0100 - 26260
+43 664 88998632
