| HOTELPROJEKT | AM HAUPTPLATZ | IN FÜRSTENFELD
Zinshaus Renditeobjekt
,
8280
Fürstenfeld
,
Kommendegasse
Lage der Immobilie
Hauptplatz FürstenfeldBeschreibung der Immobilie
Zum Verkauf gelang ein baubewilligtes Hotelprojekt im Herzen von Fürstenfeld!
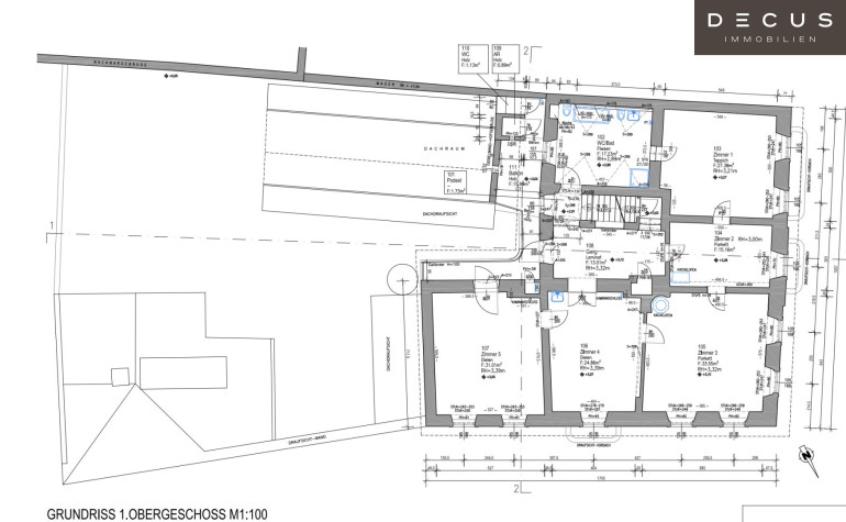
Das Projekt bietet eine beeindruckende Gesamtnutzfläche von 1.468 m² und umfasst 39 Zimmer. Außerdem sind Wintergärten auf jeder Etagen geplant.
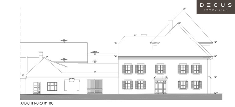
Die historischen Außenmauern bleiben im Erdgeschoss und ersten Obergeschoss weitgehend erhalten, wodurch der Altstadtflair bewahrt wird. Durch das Projekt, welches sich optimal in das Stadtbild einfügt, entsteht eine neue visuelle und wirtschaftliche Bereicherung für das Stadtzentrum.
Die Immobilie befindet sich in zentraler Lage in der Stadt Fürstenfeld in der Steiermark. Sie liegt in unmittelbarer Nähe zum Hauptplatz, der das Zentrum der Stadt darstellt und alle wichtigen Geschäfte und Einrichtungen des täglichen Bedarfs bietet. Die Region ist für zahlreiche Ausflugsziele wie Schloss Welsdorf, Zotter Schokolade Erlebniswelt sowie zahlreiche Thermen.
Alle erforderlichen Unterlagen und Planungen im Zusammenhang mit der Baubewilligung, wie die Gastroeinreichung, HKLS-Planung, Brandschutzkonzept und schalltechnische Berechnungen, sind im Verkaufsangebot enthalten und werden übergeben.
Wir weisen darauf hin, dass zwischen dem Vermittler und dem zu vermittelnden Dritten ein familiäres oder wirtschaftliches Naheverhältnis besteht.
Der Vermittler ist als Doppelmakler tätig.
DECUS Immobilien GmbH – Wir beleben Räume
Für weitere Informationen und Besichtigungen steht Ihnen gerne Frau Katharina Hammerl unter der Mobilnummer +43 660 688 33 43und per E-Mail unter hammerl@decus.at persönlich zur Verfügung.
www.decus.at | office@decus.at
Wichtige Informationen
Bitte beachten Sie, dass per 13.06.2014 eine neue Richtlinie für Fernabsatz- und Auswärtsgeschäfte in Kraft getreten ist.
Ab 1.4.2024 entfallen die Grundbuchs- und Pfandrechtseintragungsgebühren vorübergehend für Eigenheime bis zu einer Bemessungsgrundlage von EUR 500.000,-. Voraussetzung ist das dringende Wohnbedürfnis, ausgenommen davon sind vererbte oder geschenkte Immobilien. Die Befreiung ist jedoch für den Einzelfall zu prüfen, DECUS Immobilien übernimmt hierzu keine Haftung.
Ab 01.07.2023 gilt das Erstauftraggeber-Prinzip bei Wohnungsmietverträgen, ausgenommen davon sind Dienst-/Natural-/Werkswohnungen. Wir dürfen gem. § 17 Maklergesetz darauf hinweisen, dass wir auf die Doppelmaklertätigkeit gem. § 5 Maklergesetz bei Wohnungsmietverträgen verzichten und nur noch einseitig tätig sind (bei den restlichen Vermittlungsarten nicht) und ein wirtschaftliches Naheverhältnis zu unseren Auftraggebern besteht.
Im Falle eines Abschlusses mit Ihnen oder einem von Ihnen namhaft gemachten Dritten bzw. bei beidseitiger Willensübereinstimmung beträgt unser Honorar (lt. Honorarverordnung für Immobilienmakler) 2 Bruttomonatsmieten (BMM) bei Dienst-/Natural-/Werkwohnungen sowie Suchaufträgen, 3 BMM bei Gewerbe-, PKW-, Keller- und Lagermietverträgen sowie bei Kaufobjekten 3 % des Kaufpreises, zuzüglich der gesetzlichen Umsatzsteuer.
Dieses Objekt wird Ihnen unverbindlich und freibleibend angeboten. Oben angeführte Angaben basieren auf Informationen und Unterlagen des Eigentümers und sind unsererseits ohne Gewähr.
Nähere Informationen sowie unsere AGBs und die Nebenkostenübersichtsblatt finden Sie auf unserer Homepage www.decus.at unter "Service" - "Rechtliches zum FAGG" sowie im Anhang der zugesendeten Objekt-Exposés!
Infrastruktur / Entfernungen
Gesundheit
Arzt <250m
Apotheke <250m
Krankenhaus <1.000m
Kinder & Schulen
Schule <250m
Kindergarten <750m
Nahversorgung
Supermarkt <250m
Einkaufszentrum <1.000m
Bäckerei <250m
Sonstige
Bank <250m
Geldautomat <250m
Post <250m
Polizei <3.500m
Verkehr
Bus <500m
Autobahnanschluss <2.250m
Bahnhof <1.250m
Flughafen <1.500m
Angaben Entfernung Luftlinie / Quelle: OpenStreetMap
Eckdaten
| Kaufpreis: | 1.250.000,00 € |
| Fläche: | 1.468,00 m² |
Basisdaten zur Immobilie
| Objektnr: | 1144673 |
| Art: | Zinshaus Renditeobjekt |
| Land: | Österreich |
| Kaufpreis: | 1.250.000,00 € |
| Kaufpreis / m²: | auf Anfrage |
| Provision: | 3% des Kaufpreises zzgl. 20% USt. |
| Nutzfläche: | 1.468,00 m² |
| Heizwärmebedarf: | B 48,31 kWh/m²a |
| fGEE: | B 0,93 |
Internet und TV
Information zur Internet und TV Versorgung hier
Ihre persönliche Beratung
Katharina Hammerl
DECUS Immobilien GmbH
hammerl@decus.at
+43 660 688 33 43
+43 660 688 33 43
F +43 1 35 600 10
