Jakomini/Steyrergasse - Charmante Wohnung mit Blick auf Schlossberg frisch saniert
Wohnung
,
8010
Graz
Beschreibung der Immobilie
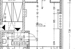
Aufteilung: Vorraum, Bad mit WC, Wohn-Ess-Küche.
Miete inkl. BK: 499 €
Kaufpreis: 124.900 .-
Verfügbar ab sofort
Gerne übermitteln wir Ihnen nähere Informationen, Grundriss sowie einen Videorundgang auf schriftliche Anfrage.
Eckdaten
| Gesamtmiete: | 498,62 € |
| Fläche: | 40,72 m² |
| Zimmer: | 1 |
Basisdaten zur Immobilie
| Objektnr: | O2100163831 |
| Art: | Wohnung |
| Land: | Österreich |
| Baujahr: | 1905 |
| Alter: | Altbau |
| Gesamtmiete: | 498,62 € |
| Kaltmiete (netto): | 370,00 € |
| Kaltmiete: | 453,29 € |
| Provision: | provisionsfrei EUR inkl. 20% MwSt. |
| Betriebskosten: | 83,29 € |
| Wohnfläche: | 40,72 m² |
| Gesamtfläche: | 40,72 m² |
| Zimmer: | 1 |
| Bäder: | 1 |
| Heizwärmebedarf: | D 115,20 kWh/m²a |
| fGEE: | C 1,67 |
Ausstattung
Parkett, Fernwärme, Wohnküche / offene Küche, Badewanne, Kabel/Satelliten-TV
Internet und TV
Information zur Internet und TV Versorgung hier
Ihre persönliche Beratung
BSc Patrick Großschädl
Papst Immobilien GmbH
info@papst-immo.at
0650 8286331
