Lage der Immobilie
AspernbrückengasseBeschreibung der Immobilie
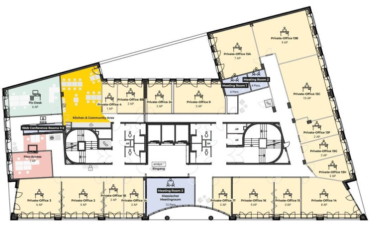
Erleben Sie modernes Arbeiten in zentraler Lage: Direkt am Donaukanal, nahe Schwedenplatz und der Wiener Innenstadt, bietet andys Aspernbrückengasse 1000 m² Bürofläche mit Private-Offices für 1-26 Arbeitsplätze ab 13 m², Flex-Desk-Bereichen, Meetingräumen und Networking-Zonen.
Inklusive Leistungen:
- All-in-Services: Tägliche Reinigung, kostenloser Kaffee, Tee, Säfte, Obst und Snacks
- Premium-WLAN, Drucken/Scannen, digitale Vernetzung und 24/7 Zutritt per App
- Professionelle Ausstattung: Meeting- und Web-Conference-Räume, Open-Spaces und Phone-Booths
Perfekte Lage und Anbindung:
Im 2. Bezirk, umgeben von einer lebhaften Gastronomieszene und nahe dem Prater.
- Öffis: U1 (3 Min.), U4 (9 Min.), Straßenbahn 1/2/71 (4 Min.)
- Parken: Garage Praterstraße (1 Min.)
Mit flexiblen Angeboten und umfassendem Service ist andys Aspernbrückengasse ideal für moderne Arbeitsanforderungen.
Kostenbeispiel: Büro mit zwei Arbeitsplätzen EUR 1.138,-
Bei längerer Bindungsdauer sind Rabatte möglich!
Mit umfassenden Services, modernster Ausstattung und optimaler Anbindung sind diese Büroflächen in der Wagenseilgasse der perfekte Ort für effizientes Arbeiten.
Wir freuen uns, Ihnen detaillierte Informationen zu den Anmietungsmöglichkeiten bereitzustellen. Bitte senden Sie uns Ihre Anfrage.
Wir weisen darauf hin, dass zwischen dem Vermittler und dem zu vermittelnden Dritten ein familiäres oder wirtschaftliches Naheverhältnis besteht.
Infrastruktur / Entfernungen
Gesundheit
Arzt <500m
Apotheke <500m
Klinik <500m
Krankenhaus <500m
Kinder & Schulen
Schule <500m
Kindergarten <500m
Universität <500m
Höhere Schule <1.500m
Nahversorgung
Supermarkt <500m
Bäckerei <500m
Einkaufszentrum <1.000m
Sonstige
Geldautomat <500m
Bank <500m
Post <500m
Polizei <500m
Verkehr
Bus <500m
U-Bahn <500m
Straßenbahn <500m
Bahnhof <500m
Autobahnanschluss <3.000m
Angaben Entfernung Luftlinie / Quelle: OpenStreetMap
Eckdaten
| Kaltmiete (netto): | 1.138,00 € |
| Fläche: | 50,00 m² |
Basisdaten zur Immobilie
| Objektnr: | 965/1007 |
| Art: | Büro / Praxis |
| Land: | Österreich |
| Zustand: | Neuwertig |
| Möbliert: | Voll |
| Kaltmiete (netto): | 1.138,00 € |
| Kaltmiete: | 1.138,00 € |
| Provision: | Provision bezahlt der Abgeber. |
| Nutzfläche: | 50,00 m² |
| Bürofläche: | 50,00 m² |
| Heizwärmebedarf: | B 39,88 kWh/m²a |
| fGEE: | D 1,23 |
Ausstattung
Teppichboden, Fliesen, Personenaufzug, Teeküche
Internet und TV
Information zur Internet und TV Versorgung hier
Ihre persönliche Beratung
Paul Tibaj
s REAL Kommerz
paul.tibaj@sreal.at
+43 (0)5 0100 - 26260
+43 664 88998632
