Lage der Immobilie
WohllebengasseBeschreibung der Immobilie
Zur Vermietung gelangen mehrere Büroflächen im renommierten EURO PLAZA, einem der bedeutendsten Bürostandorte Wiens.
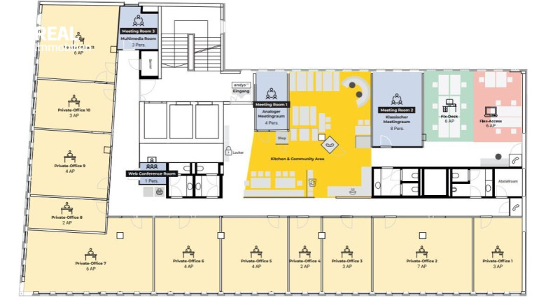
Auf 600 m² werden flexible Arbeitsumgebungen geboten: Private-Offices für 1-30 Arbeitsplätze ab 13 m², Flex-Access und Fix-Desk-Bereiche, professionell ausgestattete Schulungs- und Meetingräume sowie Networking-Zonen.
Inklusive Leistungen
- Tägliche Reinigung, kostenloser Kaffee, Tee, Säfte, Obst und Snacks
- Premium-WLAN, Drucken/Scannen, Aktenvernichtung
- 24/7 Zutritt per App, digitale Vernetzung über Membersportal
- Großzügige Community-Areas mit Teeküche und Lounge
- Professionelle Meeting-, Podcast- und Web-Conference-Räume
- Betreuung durch ein engagiertes Team
Top-Lage und Anbindung
Direkt im EURO PLAZA am Wienerberg gelegen, mit Nahversorgung, Parks und Erholungsmöglichkeiten in Gehweite.
- Öffentliche Verkehrsmittel:
- U6 Meidling (5 Gehminuten)
- S-Bahn, Regionalzüge (7 Gehminuten)
- Badner Bahn, Straßenbahn 62 (5 Gehminuten)
- Busse 7A, 15A, 62A (max. 6 Gehminuten)
- Parkmöglichkeiten:
- Europlaza Parkhaus (1 Gehminute)
Kostenbeispiel: Büro mit zwei Arbeitsplätzen EUR 1.138,-
Bei längerer Bindungsdauer sind Rabatte möglich!
Mit umfassenden Services, modernster Ausstattung und optimaler Anbindung sind diese Büroflächen in der Wagenseilgasse der perfekte Ort für effizientes Arbeiten.
Wir freuen uns, Ihnen detaillierte Informationen zu den Anmietungsmöglichkeiten bereitzustellen. Bitte senden Sie uns Ihre Anfrage.
Wir weisen darauf hin, dass zwischen dem Vermittler und dem zu vermittelnden Dritten ein familiäres oder wirtschaftliches Naheverhältnis besteht.
Infrastruktur / Entfernungen
Gesundheit
Arzt <500m
Apotheke <500m
Klinik <500m
Krankenhaus <1.000m
Kinder & Schulen
Schule <500m
Kindergarten <500m
Universität <1.500m
Höhere Schule <1.000m
Nahversorgung
Supermarkt <500m
Bäckerei <500m
Einkaufszentrum <1.000m
Sonstige
Geldautomat <500m
Bank <500m
Post <500m
Polizei <1.000m
Verkehr
Bus <500m
U-Bahn <500m
Straßenbahn <500m
Bahnhof <500m
Autobahnanschluss <2.000m
Angaben Entfernung Luftlinie / Quelle: OpenStreetMap
Eckdaten
| Kaltmiete (netto): | 1.138,00 € |
| Fläche: | 38,00 m² |
Basisdaten zur Immobilie
| Objektnr: | 965/1006 |
| Art: | Büro / Praxis |
| Land: | Österreich |
| Zustand: | Neuwertig |
| Möbliert: | Voll |
| Kaltmiete (netto): | 1.138,00 € |
| Kaltmiete: | 1.138,00 € |
| Provision: | Provision bezahlt der Abgeber. |
| Nutzfläche: | 38,00 m² |
| Bürofläche: | 38,00 m² |
| Heizwärmebedarf: | C 56,85 kWh/m²a |
| fGEE: | C 0,82 |
Ausstattung
Fliesen, Teppichboden, Personenaufzug, Teeküche
Internet und TV
Information zur Internet und TV Versorgung hier
Ihre persönliche Beratung
Paul Tibaj
s REAL Kommerz
paul.tibaj@sreal.at
+43 (0)5 0100 - 26260
+43 664 88998632
