***SCHNELL ZUSCHLAGEN: wunderschöne 3-Zimmer-Gartenwohnung - leistbarer Neubau Nähe St.Pölten / Wohnpark Ober-Grafendorf - ökologisch, hochmodern, ausgezeichnet ***
Wohnung
,
3200
Ober-Grafendorf
,
Felix Iribauer-Straße
Beschreibung der Immobilie
Leistbare Eigentumswohnung in Ober-Grafendorf – ökologische Holzbauweise – ausgezeichnet mit klimaAKTIV Gold – Top Infrastruktur – hochattraktives Zuhause im Grünen, das Stadt- und Landleben perfekt verbindet
Hier erfüllt sich Ihr Wohntraum!
Keine Provision für den Käufer !!
Bezugsfertig Anfang 2026 !!
DIE WOHNUNG:
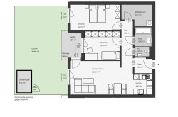
Die hier angebotene Garten-Wohnung überzeugt mit einem modernen, zentral begehbaren Grundriss.
Über den Vorraum gelangt man direkt in den offen gestalteten Koch-, Wohn- und Essbereich, welcher das Herzstück der Wohnung ist. Die Wohnung verfügt über zwei Schlafräume sowie einen Schrankraum. Das Badezimmer ist mit Badewanne und Waschtisch ausgestattet und über den Flur zu erreichen.
Vorraum, separates WC und Schrankraum geben zusätzlichen Platz, um die wesentlichen Bereiche des Lebens strukturiert zu halten. In allen Räumen wird hochwertiger Parkettboden oder moderne Bodenfließen verlegt.
Darüber hinaus verfügt die Wohnung über einen Eigengarten (43,24m²) mit Terrasse. Optional können Sie eine Gartenhütte als zusätzlichen Stauraum gegen Aufpreis erwerben.
Die Wohnung ist nach Osten ausgerichtet.
Raumaufteilung:
-Vorraum
-WC separat
-Bad mit Badewanne und Waschtisch
-Abstellraum
-Wohnküche
-Zimmer 1
-Zimmer 2
-Schrankraum
-Garten mit Terrasse (Gartenhütte optional gegen Aufpreis)
Zusammenfassung Ausstattungsmerkmale:
-Sonnenschutz an allen Fenstern /Fenstertüren
-Fernwärmeanschluss
-Fußbodenheizung
-Aufzug
-Waschmaschinenanschluss
-Gegensprechanlage
-WC separat
- Einlagerungsraum = Gartenhütte (optional gegen Aufpreis)
-Barrierefrei
-Bahnhofsnähe
-gute Infrastruktur
-10 Autominuten nach St. Pölten
-Kinderwagenraum
-Fahrradabstellplätze
Es erwartet Sie hier ein hochattraktives Zuhause im Grünen, das die Vorzüge von Stadt- und Landleben perfekt vereint.
DAS PROJEKT:
Der Wohnpark Ober-Grafendorf besticht durch ein harmonisches Gesamtkonzept mit großzügigem Kinderspielplatz und Grünflächen als zentralen Treffpunkt.
Leistbar – ökologisch – hochmodern
Hier entsteht Gemeinschaft auf modernsten Wohnräumen. Insgesamt entstehen 168 leistbare und hochmoderne Eigentumswohnungen mit idealen Grundrissen und Freiflächen. Die Wohnhausanlage besteht aus vier Baukörpern mit jeweils vier Geschoßen und wird in modernster ökologischer Holzbauweise ausgeführt. Das Projekt der Elk Gruppe ist nicht nur nachhaltig und klimafreundlich, sondern bietet durch Verwendung des Baustoffes Holz auch ein besonders behagliches Raumklima.
Ein eigenes Carsharing-Angebot, Fahrrad-Ports bei allen Wohnanlagen, ausreichend PKW-Stellplätze und der nahegelegene Bahnhof sorgen für ausgezeichnete Mobilität für Jung und Alt.
Selbstverständlich ist jedes Wohnhaus mit verschließbaren Einlagerungsräumen, Kinderwagenabstellplätzen, Sonnenschutz mittels Rollläden und Aufzug ausgestattet.
Der Bauteil A wurde bereits fertiggestellt und ist bereits vollständig bewohnt.
Der Bauteil B wurde bereits fertiggestellt und ist bezugsfertig. Ein Großteil der Wohnungen wurde bereits verkauft.
Der Bauteil C wird derzeit errichtet, geplante Fertigstellung Ende 2025.
Das Projekt der renommierten ELK Gruppe ist nicht nur nachhaltig und klimafreundlich, sondern bietet durch Verwendung des Baustoffes Holz auch ein besonders behagliches Raumklima.
Für sein Engagement im Klimaschutz wurde das Projekt Wohnpark Ober-Grafendorf im November 2022 mit dem klimaaktiv Gebäudestandard Gold ausgezeichnet. Der klimaaktiv Gebäudestandard des Bundesministeriums für Klimaschutz, Umwelt, Energie, Mobilität, Innovation und Technologie ist österreichweit eines der renommiertesten Bewertungssysteme für die Nachhaltigkeit von Gebäuden mit besonderem Fokus auf Energieeffizienz, Klimaschutz und Ressourceneffizienz.
Hier entsteht leistbarer Wohntraum !
WEITERE GRUNDRISSE VERFÜGBAR:
- wählen Sie Ihre Eigentumswohnung ganz nach Ihren Bedürfnissen
Die Wohnungen überzeugen mit einem modernen, zentral begehbaren Grundriss. Ein offen gestalteter Koch-, Wohn und Essbereich ist das Herzstück Ihres Eigenheims. Darüber hinaus liegt es bei Ihnen, wie viele Zimmer Ihr Wohntraum haben soll. Zur Auswahl stehen 1, 2, 3 oder 4 Zimmer.
Vorraum, separates WC und Schrankraum geben zusätzlich Platz, um die wesentlichen Bereiche des Lebens strukturiert zu halten. In allen Räumen wird hochwertiger Parkettboden oder moderne Bodenfließen verlegt.
Alle Wohnungen sind mit Klimaanlagen-Vorbereitung ausgestattet.
Morgensonne oder Abendrot
Jede der Wohnungen verfügt über einen Außenbereich. Ganz nach Ihren Vorlieben können Sie zwischen Eigengarten mit Terrasse, gemütlicher Loggia oder Dachterrasse mit großartigem Fernblick wählen.
Je nach Lage steht Ihnen außerdem die Wahl offen, ob dieser Außenbereich nach Osten, Süden oder Westen ausgerichtet sein soll.
Kaufpreise ab € 169.000,00
2-Zimmer Wohnungen ab 45 m2, Kaufpreise ab €179.900,00
3-Zimmer Wohnungen ab 68 m2, Kaufpreise ab € 234.000,00
4-Zimmer Wohnungen ab 96 m2, Kaufpreise ab 295.000,00
DIE LAGE:
Ober-Grafendorf ist eine niederösterreichische Marktgemeinde mit rund 4.800 Einwohnern südwestlich von der Landeshauptstadt St. Pölten gelegen.
Ober-Grafendorf, das „Tor zum Pielachtal“ ist leicht über die B39 sowie über die Mariazellerbahn erreichbar.
Zuhause im Grünen – Arbeiten in der Stadt – die perfekte Symbiose
Binnen 10 Autominuten oder 20 Minuten mit der S-Bahn gelangen Sie in die niederösterreichische Landeshauptstadt St. Pölten. Südlich der A1 gelegen verfügt Ober-Grafendorf über einen raschen Anschluss zu Wien sowie den anderen Bundesländern. Eine solche Lage mit unmittelbarer Anbindung ist kaum zu übertreffen.
Ober-Grafendorf zeichnet sich durch seine Schulen, Gesundheitseinrichtungen, aber auch als Einkaufsort aus. Volkschule, Kindergarten, Ärzte, Einkaufsmärkte, Banken, Post, Bäckerei, Tankstellen, Bahnhof, Apotheke, etc. sind zum Teil fußläufig erreichbar.
Kulturelle Treffpunkte, zahlreiche Sportangebote und Vereine lassen auch in der Freizeit, in Obergrafendorf keine Langeweile aufkommen.
In unmittelbarer Nähe zum Ebersdorfersee und der Pielach leben Sie nahe dem Urquell des Lebens – dem Wasser. Keine 2 km, also weniger als 5 Minuten mit dem Rad, befindet sich der Badesee mit Hochseilgarten, Hundestrand, Lokalen sowie Tennisplätzen, Richtung Osten, lediglich 2 Radminuten entfernt, befindet sich der Sportplatz. Auch der Kindergarten ist fußläufig binnen kürzester Zeit erreichbar. Lebensmittelgeschäfte (wie Billa, Spar und Penny-Markt), Ärzte und das Ortszentrum sind ebenfalls nah.
ELK, der geeignete Partner für Ihren Wohntraum
Gegründet vor 60 Jahren und mittlerweile mit einer Größe von 1.200 Mitarbeitern ist ELK der Marktführer in Österreich für Wohnraum in Fertigteilbauweise.
Die eigene Produktion in Österreich und die regelmäßigen Gütezertifizierungen im Rahmen der Qualitätssicherung gewährleisten die Einhaltung der hohen selbst auferlegten Qualitätsstandards zum bestmöglichen Preis.
Elk bietet jahrzehntelange Erfahrung in der Schaffung von hochwertigem Wohnraum, um Ihren Wohntraum in Ober-Grafendorf, in unmittelbarer Nähe zur Pielach, wahr werden zu lassen.
Bauteil A und B sind bereits fertiggestellt.
Mit der Errichtung des Bauteiles C wurde bereits begonnen. Die Fertigstellung ist für Ende 2025 geplant. Bezugsfertig sind die Wohnungen voraussichtlich Anfang 2026.
Wir weisen darauf hin, dass zwischen dem Vermittler und dem zu vermittelnden Dritten ein familiäres oder wirtschaftliches Naheverhältnis besteht.
Der Vermittler ist als Doppelmakler tätig.
Infrastruktur / Entfernungen
Gesundheit
Arzt <5.250m
Apotheke <750m
Klinik <7.250m
Krankenhaus <9.000m
Kinder & Schulen
Schule <750m
Kindergarten <1.000m
Universität <9.000m
Höhere Schule <6.500m
Nahversorgung
Supermarkt <500m
Bäckerei <750m
Einkaufszentrum <2.500m
Sonstige
Bank <750m
Geldautomat <750m
Post <750m
Polizei <750m
Verkehr
Bus <750m
Bahnhof <750m
Autobahnanschluss <2.500m
Flughafen <3.000m
Angaben Entfernung Luftlinie / Quelle: OpenStreetMap
Eckdaten
| Objektnr: | 6418/730 |
| Art: | Wohnung |
| Land: | Österreich |
| Baujahr: | 2025 |
| Zustand: | Erstbezug |
| Alter: | Neubau |
| Kaufpreis: | 279.500,00 € |
| Provision: | keine Provision für den Käufer! |
| Wohnfläche: | 81,58 m² |
| Zimmer: | 3 |
| Bäder: | 1 |
| WC: | 1 |
| Terrassen: | 1 |
| Stellplätze: | 1 |
| Garten: | 49,66 m² |
| Heizwärmebedarf: | A 23,80 kWh/m²a |
| fGEE: | A 0,67 |
Ausstattung
Parkett, Fliesen, Fußbodenheizung, Personenaufzug, Westbalkon, Badewanne, Kabel/Satelliten-TV, Parkplatz
Internet und TV
Information zur Internet und TV Versorgung hier
Ihre persönliche Beratung
Prok. Daniela König
ACACIO Immobilien GmbH
E dk@acacio.at
T +43 2275 42026-14
H +43 664 386 55 02
