Sehr schönes Büro im Herzen von Wien 1020 Wien - 250 m²
Büro / Praxis
,
1020
WIen
Lage der Immobilie
Sehr gut angebundenBeschreibung der Immobilie
Das Büro eignet sich perfekt für einen Betrieb oder auch für die Vermietung an Geschäftskunden.
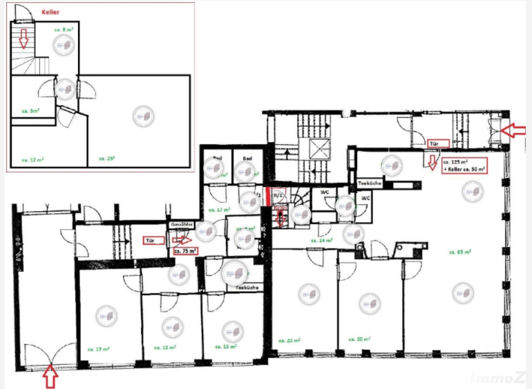
Das Büro besteht aus:
250 m2 Nutzfläche, diese teilen sich wie folgt auf:
6 Büroräume
1 Teeküche
3 WC´s
2 Duschen
50m² Keller mit der eigenen Heizungsanlage und 3 Räumen.
Monatliche Kosten im Überblick:
Miete 3.300,-- Euro monatlich netto
Betriebskosten: 347,40 Euro netto
HK und Stromkosten: nach Verbrauch
Kaution 3 MM
Provision 3 BMM
Für weitere Fragen oder eine Besichtigung steht Ihnen gerne Herr Josef Fuhrmann
unter 0664 433 22 83 oder j.fuhrmann@immo.express zur Verfügung.
Gerne unterstützen wir Sie auch bei der Finanzierung bei diesem oder einem anderen Objekt. Sprechen Sie uns darauf an, wir beraten Sie gerne.
Wir weisen darauf hin, dass wir, mit Ausnahme von Wohnungssuchenden für Mietwohnungen, als DoppelmaklerIn tätig sind. Nähere Informationen zum DoppelmaklerIn auf Anfrage gerne.
Eckdaten
| Gesamtmiete: | 3.960,00 € |
| Fläche: | 200,00 m² |
| Zimmer: | 9 |
Basisdaten zur Immobilie
| Objektnr: | O2100154512 |
| Art: | Büro / Praxis |
| Land: | Österreich |
| Baujahr: | 1960 |
| Alter: | Neubau |
| Gesamtmiete: | 3.960,00 € |
| Kaltmiete (netto): | 3.300,00 € |
| Kaltmiete: | 3.300,00 € |
| Provision: | 3 % zzgl. 20% MwSt. |
| Wohnfläche: | 200,00 m² |
| Gesamtfläche: | 250,00 m² |
| Bürofläche: | 200,00 m² |
| Zimmer: | 9 |
| Bäder: | 2 |
| WC: | 3 |
| Keller: | 50,00 m² |
| Heizwärmebedarf: | D 135,50 kWh/m²a |
| fGEE: | D 1,87 |
Ausstattung
Fliesen, Zentralheizung, Einbauküche, Personenaufzug, Dusche, Kabel/Satelliten-TV
Internet und TV
Information zur Internet und TV Versorgung hier
Ihre persönliche Beratung
Josef Fuhrmann
Immoexpress KG
j.fuhrmann@immo.express
+43 664 43 32 283
F +43 (1) 688 02 74
