>>> VERKAUFT !!! <<< Baugrundstück in Schartner Ruhelage - mit Aussicht und ohne Bauzwang

Grundstück - Baugrund Eigenheim, 4612 Scharten

Beschreibung der Immobilie

Baugrundstück in Schartner Ruhelage - mit Aussicht und ohne Bauzwang

1.015 m² Baugrund in Scharten - ohne Bauverpflichtung!

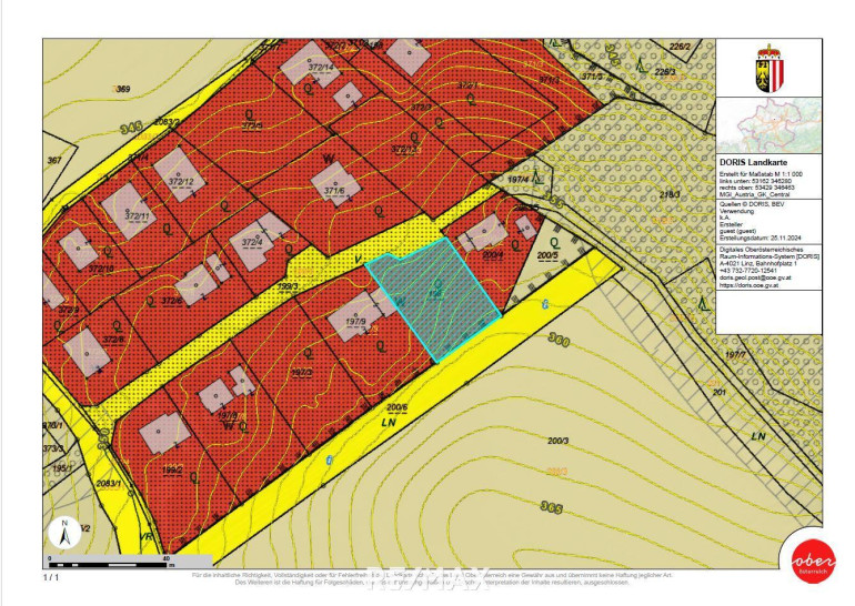
Diese ca. 1.015 m² große Bauparzelle in leichter Hanglage ist ruhiger Sackgassenlage gelegen. Die Parzelle ist vollständig aufgeschlossen und es existiert keine Bauverpflichtung.


Objektart: Bauland Wohngebiet
Standort: 4612 Scharten
Grundstücksgröße: ca. 1.015 m²
Flächenwidmung: Wohngebiet
Lage: Siedlungslage Unterscharten
Topographie: Leichte Hanglage
Erschließung: Über Gemeindestraße

Aufschließungsbeiträge in Gesamthöhe von 4.151,60 € wurden bereits entrichtet.
(2.208,53 € für Wasser & Kanal, 1.943,07 € für die Verkehrsfläche).


KAUFPREIS: 179.000 €


Haben wir Ihr Interesse geweckt? Gerne senden wir Ihnen auf Anfrage ein ausführliches Exposé zu.


BITTE BEACHTEN SIE, dass wir aufgrund der Nachweispflicht gegenüber dem Eigentümer nur Anfragen mit vollständiger Angabe des Namens und
der Anschrift bearbeiten können. Gerne senden wir Ihnen ein kostenloses Detailangebot mit weiteren Informationen zu

Unverbindliche Unterlagen:
Die angegebenen Informationen sind nach bestem Wissen erstellt, Druck- bzw. Redaktionsfehler oder Irrtümer vorbehalten. Für Angaben, Auskünfte und Flächen, die uns von Eigentümerseite bzw. Dritten zur Verfügung gestellt wurden, können wir keine Haftung übernehmen. Gem. § 5, Abs. 3 Maklergesetz weisen wir darauf hin, dass wir als Doppelmakler tätig sind.

Eckdaten

Objektnr: 3777_333
Art: Grundstück - Baugrund Eigenheim
Land: Österreich
Kaufpreis: 179.000,00
Provision: 3.00 %
Grundstücksfl.: 1.015,00 m²
Immobilie merken Exposé

Internet und TV

Information zur Internet und TV Versorgung hier


Immobilie anfragen


Ihre persönliche Beratung

RE/MAX Bonus

Franz Ammerstorfer

RE/MAX Bonus

E f.ammerstorfer@remax-bonus.at