Provisionsfreie 5 Kurzzeitvermietung - Apartments in Oberlaa bei U1 Station
Gastgewerbe
- weitere Beherbergungsbetriebe,
1100
Wien
Beschreibung der Immobilie
Baujahr: 2022
Wohnungen: 5 vollmöblierte Einheiten mit je ca. 47 m², Es sind 5 Apartments für Kurzeitvermietung bewilligt. Von 2021 bis 2024 war das Gebäude als Hotel gewidmet, jedoch mit der Gesetzesänderung 2024 wurde von der Behörde auf 50% eingeschränkt und deshalb sind diese 5 Apartments im Packet zu erwerben. Eine gewerbliche Betriebsanlagengenehmigung ist vorhanden.Lage: Wien, 2 Gehminuten zur U1-Endstation Oberlaa, sehr ruhige Umgebung
Ausstattung: Garage (optional) | Lift | Photovoltaikanlage | Klimaanlage | Infrarotheizungen| hochwertiges Interieur mit Massmöbeln von Peter Max.
Objektbeschreibung:
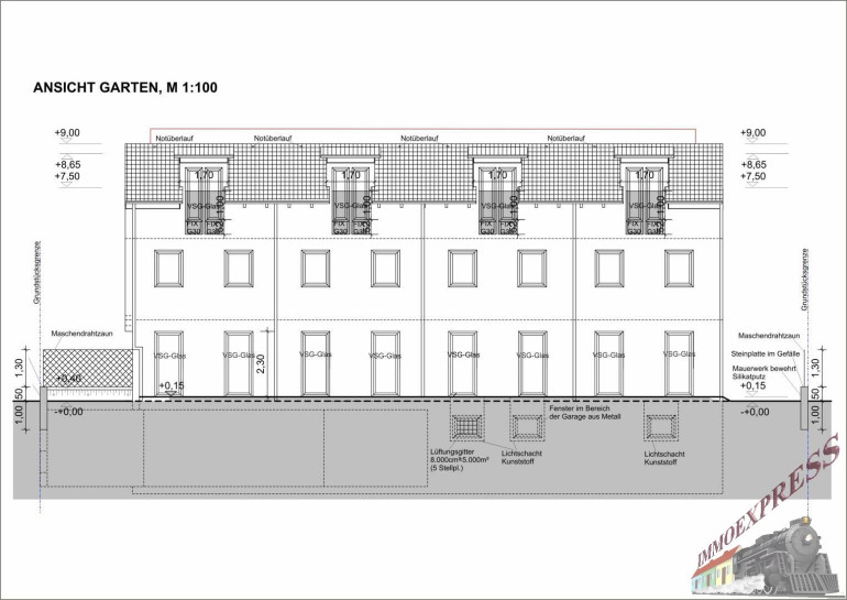
Nur wenige Schritte von der U1-Endstation Oberlaa entfernt präsentiert sich diese im Jahr 2022 fertiggestellte Liegenschaft als optimale Kapitalanlage für die Kurzzeitvermietung. Das Haus befindet sich in sehr ruhiger Lage – eingebettet zwischen Therme Oberlaa, Kurpark und Liesingbach – und bietet urbanen Komfort in naturnaher Umgebung.
Die Immobilie verfügt über insgesamt 12 stilvoll und mit exklusiven Maßmöbeln von Peter Max eingerichtete Wohnungen, alle mit modernen Bädern, großzügigen Wohnbereichen und komplett ausgestatteten Küchen. Die Apartments gewährleisten ein besonderes Wohngefühl.
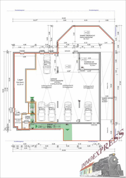
Das Haus punktet mit zeitgemäßer Technik: Lift, großzügige Garagenplätze sowie eine leistungsstarke Photovoltaikanlage mit Speichereinheit zur nachhaltigen Energieversorgung steigern Effizienz und Attraktivität des Objektes. Moderne Brandmeldeanlage, Zutrittssystem von Loxone, videoüberwacht.
Ausstattungsdetails:
- Vollmöbliert: Exklusive Maßmöbel (Peter Max), hochwertige Einbauküchen, Komplett-Ausstattung für sofortige Nutzung durch Gäste
- Bäder: Modern, mit hochwertigen Armaturen und Walk-In-Duschen
- Lift: Barrierefreier Zugang zu allen Etagen
- Tiefgarage: Komfortable Parkmöglichkeiten für Hausgäste
- Photovoltaik: 15kWhp Energieeffiziente und 12 KW Speicher, zeitgemäße Stromversorgung
Highlights für Anleger:
- Sofortige Einnahmengenerierung durch professionelle Kurzzeitvermietung
- Hohe Auslastungspotenziale durch Freizeit, Wellness und Nahversorgung in fußläufiger Distanz
- Zukunftssicher und nachhaltig durch Photovoltaikanlage und zeitgemäße Bauweise
- Top-Anbindung: Direkt an U1, schnelle Verbindung zum Zentrum
- Wertbeständig und pflegeleicht durch Baujahr 2022 und erstklassige Ausstattung
- Nutzung: teilweise Kurzzeitvermietung – betriebsbereit und voll ausgestattet
- Wohnungen: 12, davon 4 mit Terrasse | je ca. 47 m²
- Besonderheiten: Garage, Lift, Photovoltaik, Designer-Mobiliar
- Lage: 2 Minuten zur U1 Oberlaa, Spaziernähe zu Therme, Kurpark und Stadtwanderweg
Liegt vor HWB 31,6kWh/m²a– geringe Betriebskosten durch Photovoltaik.
Weitere Informationen, Grundrisse und Besichtigungen gerne nach Vereinbarung.
Kaufpreis: netto 1.790.000 €Kaufnebenkosten:
3,5% Grunderwerbsteuer
1,5% Kaufvertragserrichtung
1,1% Eintragung ins Grundbuch
Gerne unterstützen wir Sie auch bei der Finanzierung bei diesem oder einem anderen Objekt. Sprechen Sie uns darauf an, wir beraten Sie gerne.
Wir weisen darauf hin, dass wir, mit Ausnahme von Wohnungssuchenden für Mietwohnungen, als DoppelmaklerIn tätig sind. Nähere Informationen zum DoppelmaklerIn auf Anfrage gerne.
Eckdaten
| Kaufpreis: | 1.790.000,00 € |
| Fläche: | 559,00 m² |
Basisdaten zur Immobilie
| Objektnr: | O2100164533 |
| Art: | Gastgewerbe - weitere Beherbergungsbetriebe |
| Land: | Österreich |
| Baujahr: | 2022 |
| Möbliert: | Voll |
| Alter: | Neubau |
| Kaufpreis: | 1.790.000,00 € |
| Kaufpreis / m²: | auf Anfrage |
| Provision: | provisionsfrei |
| Wohnfläche: | 559,00 m² |
| Grundstücksfl.: | 850,00 m² |
| Gesamtfläche: | 240,00 m² |
| Stellplätze: | 1 |
| Garten: | 400,00 m² |
| Keller: | 359,00 m² |
| Heizwärmebedarf: | B 32,00 kWh/m²a |
| fGEE: | A 0,78 |
Ausstattung
Einbauküche, Kabel/Satelliten-TV
Internet und TV
Information zur Internet und TV Versorgung hier
Ihre persönliche Beratung
Hans-Peter Kebhart
Immoexpress KG
hp.kebhart@immo.express
+43 650 49 09 592
F +43 (1) 688 02 74
