Einfamilienhaus mit schönem Garten am Badesee Neudörfl auf Pachtgrund

Haus - Ferienhaus, 7201 Neudörfl

Beschreibung der Immobilie

Traumhaftes Einfamilienhaus am privaten Neudörfler Badesee

Ein ganzjährig bewohnbares Haus in 2. Reihe auf Pachtgrund am Stadtrand Wiener Neustadts wartet auf neue Bewohner. Das 2000/2001 von einer lokalen Zimmerei errichtete Haus in Holzriegelbauweise bietet mit ca. 153 m² Wohnnutzfläche auf 2 Etagen ausreichend Platz für die ganze Familie. Das Objekt kann möbliert übergeben werden.

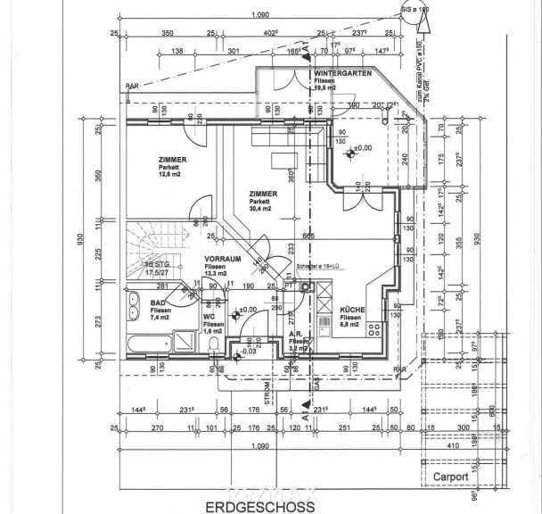
Highlight ist der offene Wohnbereich im Erdgeschoss bestehend aus Wohnzimmer, Küche, hellem Essbereich und Übergang zum großen Wintergarten mit Ausblick in den Garten. Die heimelige Atmosphäre wird von einem Schwedenofen abgerundet.
Ein Vorraum mit gefliester Stiege zum Dachgeschoss, ein großes Bad mit Badewanne, ein WC, ein Zimmer mit weiterem Zugang zum Garten und kleiner Terrasse vervollständigen den Grundriss.
Im Dachgeschoß gibt es einen sehr großen Hauptraum mit großer Lagermöglichkeit, ein 25 m² großes Schlafzimmer, aus denen auch 2 Räume entstehen könnten, sowie ein sehr großes Bad mit WC.
Eine Gastherme betreibt Heizkörper und Warmwasserversorgung. Für wohlige Wärme sorgt außerdem der Schwedenofen im großen Wohnbereich.

Der wunderschön gestaltete Garten ist ein Paradies für Naturfreunde und bietet neben einem großartigen Pflanzen- und Baumbewuchs eine schattenspendende Pergola aus Weinreben und Rosengewächs. Es ist ausreichend Platz zum Entspannen und auch für die lieben Kleinen vorhanden. 2 Gartenhäuschen, ein Geräteschuppen und Holzlager sowie ein großer Carport vervollständigen das ideal geschnittene Grundstück.

Der sehr klare Privatsee ausschließlich für Pächter lädt zum Sonnenbaden und Schwimmen ein. Ein zweiter öffentlicher Badestrand mit Gastronomie, Wasserinsel, Beachvolleyballplatz, Umkleidekabinen, schattigem Kinderbereich und sanitären Einrichtungen ist ebenfalls nur 200 m entfernt. Der 9 ha große Privatsee als auch der 3 ha große Neudörfler Badesee bestechen mit ausgezeichneter Wasserqualität.

RAUMAUFTEILUNG
Erdgeschoss:
+ Wohnzimmer: ca. 30,4 m²
+ Wintergarten: ca. 19,5 m²
+ Küche: ca. 6,8 m²
+ Bad: ca. 7,4 m²
+ Vorzimmer: ca. 13,3 m²
+ Zimmer: ca. 12,6 m²
+ Abstellraum: ca. 3,2 m²

Dachgeschoss:
+ Bad: ca. 11 m²
+ Zimmer: ca. 25 m²
+ Zimmer: ca. 22 m²
Die monatliche Pacht/Miete für das Grundstück beträgt derzeit ca. € 646,17 EUR - (Wertgesichert für 10 Jahre)
Für die 2. Vertragsperiode: monatlich ca. € 710, -

Die Marktgemeinde Neudörfl an der Leitha mit 5.000 Einwohnern ist weithin bekannt für seine gastliche Atmosphäre vor den Toren Wiener Neustadts und nur 40 min von Wien entfernt. Durch die Großstadtnähe, der sehr guten Verkehrsanbindung und der idyllischen Lage erfreut sich diese burgenländische Weinbaugemeinde als Wohn- und Ausflugsort großer Beliebtheit. Eine außergewöhnliche Gastronomie mit bekannten Heurigenlokalen, die Badeseen, örtliche und überörtliche touristische Sehenswürdigkeiten und eine florierende Wirtschaft machen es zu einer sehr lebenswerten Ortschaft.

ENTFERNUNGEN:
Ortszentrum: 1 km
Volksschule, Kindergarten: 1.4 km
EUROSpar: 650 m
Restaurant und Heurige: 1-1,5 km
Wiener Neustadt Zentrum: 3,5 km
Wien: 15 km
Arzt, Apotheke: 1,6 km
Wien Stadtgrenze: 45 km
Flughafen: 57 km

Nutzen Sie diese einmalige Gelegenheit Ihren Traum von Wohnen, Erholung, Freizeit und Sport wahr werden zu lassen.

Die Angaben zum Objekt basieren auf uns zur Verfügung gestellten Informationen. Eine Haftung unsererseits ist hierfür ausgeschlossen. Detailfragen werden im Zuge von Besichtigungen besprochen, geklärt oder nachgereicht.

Beim angegebenen Preis handelt es sich um einen Richtpreis. Der tatsächliche Kaufpreis kann über oder unter diesem Kaufpreis liegen. Ich behalte mir das Recht vor, bei entsprechender Nachfrage den Verkauf über ein digitales Angebotsverfahren abzuwickeln.

Wir bitten Sie um Verständnis, dass wir aufgrund der Nachweispflicht gegenüber dem Eigentümer nur Anfragen mit vollständiger Angabe der Anschrift bearbeiten können. Der Interessent wird auf die erweiterten Richtlinien des Konsumentenschutzes im Sinne des FAGG hingewiesen.
Angaben gemäß gesetzlichem Erfordernis:
Heizwärmebedarf:71.0 kWh/(m²a)
Klasse Heizwärmebedarf:C
Faktor Gesamtenergieeffizienz:1.51
Klasse Faktor Gesamtenergieeffizienz:C

Nur auf remax.at finden Sie neue RE/MAX Immobilien früher und vollständig, und mit der RE/MAX App sofort am Handy!

Eckdaten

Objektnr: 2275_7321
Art: Haus - Ferienhaus
Land: Österreich
Baujahr: ca. 2001
Möbliert: Voll
Kaufpreis: 199.000,00
Provision: 3.00 %
Wohnfläche: 153,00 m²
Grundstücksfl.: 598,00 m²
Zimmer: 4
Bäder: 2
WC: 1
Stellplätze: 1
Heizwärmebedarf:  C  71,00 kWh/m²a
fGEE:  C  1,51
Immobilie merken Exposé

Ausstattung

Gas, Kamin, Zentralheizung, Kabel/Satelliten-TV, Parkplatz


Internet und TV

Information zur Internet und TV Versorgung hier


Immobilie anfragen


Ihre persönliche Beratung

RE/MAX Style

DI (FH) Thomas Jank

RE/MAX P&I in Neusiedl/S.

E t.jank@remax-pi.at

H +43 677 640 73 200