Altbaubüro in ausgezeichneter Lage - Nähe Stephansdom - unsaniert

Büro / Praxis - Bürofläche, 1010 Wien

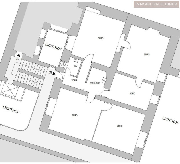
Beschreibung der Immobilie

Mitten in der prachtvollen Wiener-Innenstadt, nur unweit des berühmten Wiener Stephansdomes, liegt dieses fantastische Altbaubüro, die ideale Adresse für Ihren neuen Firmenstandort.

Die gastroniomische Vielfalt in der nahen Umgebung, die ideale öffentliche Verkehrsanbindung (U1 und U3 in unmittelbarer Nähe) und sämtliche Geschäfte für den täglichen Bedarf in Gehdistanz runden diesen perfekten Bürostandort ab.


INFRASTRUKTUR + HIGHLIGHTS AUF EINEN BLICK
• TOPLAGE + TOP Firmenadresse
• U1, U3 Nähe
• beste Infrastruktur und Kulinarik in unmittelbarer Gehdistanz
• äußerst repräsentativ


MEHR INFOS UND DETAILS AUF ANFRAGE!!

KONTAKT
Herr Robert Fried
Mobil: 0664 88 296 010
robert.fried@hubner-immobilien.com

__
Angaben gemäß gesetzlichem Erfordernis:
Miete 2301,3 zzgl 20% USt.
Betriebskosten 293,03 zzgl 20% USt.
Umsatzsteuer 518,87
------------------------------------------------------------------
Gesamtbetrag 3113,2
------------------------------------------------------------------
Heizwärmebedarf:87.0 kWh/(m²a)
Klasse Heizwärmebedarf:C
Faktor Gesamtenergieeffizienz:1.53
Klasse Faktor Gesamtenergieeffizienz:C

Eckdaten

Objektnr: 3610_7637
Art: Büro / Praxis - Bürofläche
Land: Österreich
Zustand: Gepflegt
Alter: Altbau
Gesamtmiete: 3.113,20
Kaltmiete (netto): 2.301,30 €
Kaltmiete: 2.594,33 €
Nutzfläche: 153,42 m²
Bürofläche: 153,42 m²
Zimmer: 5
WC: 1
Heizwärmebedarf:  C  87,00 kWh/m²a
fGEE:  C  1,53
Immobilie merken Exposé

Ausstattung

Parkett, Gas, Etagenheizung, Personenaufzug


Internet und TV

Information zur Internet und TV Versorgung hier


Immobilie anfragen


Ihre persönliche Beratung

Hubner Immobilien GmbH

Robert Fried

Hubner Immobilien GmbH

E robert.fried@hubner-immobilien.com