Lage der Immobilie
In nur wenigen Minuten können Sie alle wichtigen Einrichtungen, wie z.B.: Supermärkte, Cafés, Arzt mit Apotheke, Post, Bankinstitute, Polizei, Gastronomiestätten, Hallenbad, Schulen und Freizeiteinrichtungen, erreichen. Die Infrastruktur der Marktgemeinde Vitis ist ausgezeichnet, da die Anbindung mit den öffentlichen Verkehrsmittel hervorragend ist. Diese Ortschaft verfügt auch über einen eigenen Bahnhof, welcher eine direkte Anbindung nach Wien hat.Beschreibung der Immobilie
Willkommen in sehr guter zentraler Lage mitten in der Marktgemeinde Vitis. Dieser Ort ist der zentrale Knotenpunkt des oberen Waldviertels und bietet eine hervorragende Infrastruktur.
Hier erwartet Sie ein einzigartiges Angebot von einem großzügigen Rohbauhaus auf einem beeindruckenden Eckgrundstück mit insgesamt 1.663 m² Grundstücksfläche. Das Einfamilienhaus bietet Ihnen ausreichend Raum für kreative Ideen und individuelle Gestaltungsmöglichkeiten. Dank der bereits umgesetzten Raumaufteilung können Sie nun die nächsten Arbeitsschritte individuell in Angriff nehmen.
Stellen Sie sich vor, wie Sie Ihre persönlichen Rückzugsorte schaffen und ein harmonisches Zuhause für Ihre Familie gestalten! Besonders hervorzuheben ist der traumhafte Garten, der nicht nur Platz für Ihre persönlichen Freizeitaktivitäten bietet, sondern auch ein Ort der Entspannung und Erholung werden kann.
Die umzäunte Liegenschaft teilt sich auf in Gartengrundstück, Wohnhaus (Rohbau), geplante Garage (ca. 54 m²) mit geplanter zweiter, überdachter Zufahrt und einem geplanten Nebengebäude mit WC (ca. 46 m²).
Das Wohnhaus unterteilt sich in:
- Kellergeschoss (ca. 171,20 m² Nutzfläche)
- Erdgeschoss (ca. 163,60 m² Nutzfläche) ausgeführt mit einer Holzsichtdecke
- Dachboden.
Das Kellergeschoss mit rd. 171 m² unterteilt sich in: Technikraum, 5 Lagerräume, Gang, Aufgang zum Erdgeschoss und direktem Ausgang in den Garten.
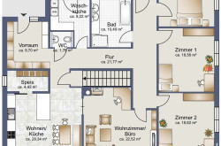
Das Erdgeschoss mit rd. 163 m² Nutzfläche unterteilt sich in: Vorraum, Waschküche, WC, Badezimmer, Schlafzimmer, Zimmer 1, Zimmer 2, Flur, Speis, Küche/Esszimmer, Wohnzimmer, Abgang zum Kellergeschoss und geplanter Auslass für Aufgang mittels Dachbodentreppe.
Bauchronologie:
- 2022: Baubewilligung durch Gemeinde
- 2022: Baubeginn (10.05.2022)
- 2022: Errichtung Brunnen
- 2023: Einbau Fenster & Türen
- 2023: Errichtung Dachstuhl und Eindeckung
- 2027: Ende offizielle Frist zur Fertigstellung (10.05.2027)
Offene Punkte der Gemeinde:
Die Gemeindeabgaben für das abgetragene Gebäude wurden bereits entrichtet. Dieser Rohbau hat nun eine größere bebaute Fläche als das abgetragene Gebäude und diesbezüglich ist an die Gemeinde noch eine Ergänzungsabgabe für das Erdgeschoss für Regenwasser-, Schmutzwasser- und Fäkalkanal in der Höhe von ca. € 1.700,- zu entrichten. Im Kellergeschoss sind keine Kanal- sowie Wasseranschlüsse geplant. Wenn bei der Errichtung des Nebengebäudes sowie der Garage ein oder mehrere Wasser- und/oder Kanalanschlüsse gelegt werden, so muss hierzu ebenfalls eine Ergänzungsabgabe entrichtet werden.
Weiters muss nach Errichtung der Garage (laut aktuellem Einreichplan) ein Verkehrsspiegel in Absprache mit der Gemeinde auf Kosten der neuen Eigentümer angebracht werden.
Die Erbauung der geplanten Garage, der überdachten Zufahrt sowie des Nebengebäudes muss in geschlossener Bauweise erfolgen und an das vorhandene, straßenseitige Bauwerk der Gemeinde angebunden werden.
Beim Bauvorhaben ist ebenso eine Stützmauer Richtung Nachbar eingetragen worden und diese muss auch entsprechend der zukünftigen, bewilligten Geländeveränderung errichtet werden.
Die Endabnahme und Fertigstellungsmeldung seitens der Gemeinde zu dieser Liegenschaft ist noch offen. Die offizielle Frist bis zur Fertigstellung läuft bis 10.05.2027. Sollte diese Frist verstreichen, so sollen die zukünftigen Eigentümer der Liegenschaft bei der Gemeinde vorstellig werden und gemeinsam mit der Gemeinde einen realistischen Zeitraum zur Fertigstellung festlegen.
Bonus für Kaufinteressenten:
- Die Aufschließung für das gesamte Grundstücke wurde bereits entrichtet.
- Ein Brunnen wurde bereits gegraben und kann zur individuellen Nutzung verwendet werden.
- Der Rohbau verfügt bereits über ein eingedecktes Dach, Fenster und Türen wurden ebenfalls eingebaut.
- Zusätzlich wurde bereits am Dach die Vorrichtung für eine zukünftige Photovoltaik-Anlage angebracht.
- Das vorhandene Baumaterial sowie die verpackte Dachbodentreppe verbleiben im Gebäude.
- Die Liegenschaft verfügt über zwei Zufahrtsmöglichkeiten, sofern die zwei Mauersteher der ersten Zufahrt erhalten bleiben.
- Die Bauhütte und das Baustellen-WC (= Eigenkonstruktion) verbleiben auf der Liegenschaft.
Offenes Landesdarlehen:
Basierend einer Förderung vom Land Niederösterreich wurde zu Baubeginn ein Darlehen zugesichert. Die aktuelle Aushaftung des Darlehens beträgt € 29.060,34 (= Stand per 18.03.2025). Dieses Landesdarlehen kann vom neuen Eigentümer übernommen werden, sofern die Person(en) förderungswürdig ist (sind). Das Angebot ist ein Highlight, da beim Kauf der Liegenschaft sowie der Übernahme des Darlehens weniger finanzielle Eigen- sowie Fremdmittel benötigt werden.
Berechnung für die Finanzierung der Liegenschaft: Kaufpreis € 277.000,- abzgl. offenes Darlehen per 18.03.2025 € 29.060,34 = aktueller Eigen- sowie Fremdmittelbedarf von € 247.939,66.
Gebäudeinfrastruktur:
Die Liegenschaft ist an das öffentliche Wasser-, Kanal- und Stromnetz angeschlossen. Die Regenwasserableitung erfolgt in den bestehenden Kanal. Die Liegenschaft verfügt auch über einen eigenen Brunnen. Die geplante Beheizung und Warmwasseraufbereitung soll mittels zentraler Erdwärme-Sole-Wärmepumpe erfolgen. Die Glasfaserleerverrohrung liegt bereits an der Grundstücksgrenze.
Nutzen Sie diese einmalige Gelegenheit, einen Rohbau zu erwerben, den Sie nach Ihren Vorstellungen zum Leben erwecken können. Lassen Sie Ihrer Kreativität freien Lauf und gestalten Sie Ihre individuelle Wohlfühloase in einer der schönsten Lage von Vitis.
Überzeugt? Dann zögern Sie nicht und vereinbaren Sie noch heute einen Besichtigungstermin. Wir freuen uns darauf, Ihnen Ihr neues Zuhause zeigen zu dürfen und Ihnen dabei zu helfen, Ihren Wohntraum zu verwirklichen.
Besichtigungen des Objekts können nach gemeinsamer Absprache von Montag bis Freitag stattfinden.
Hier geht´s zum 360° Rundgang: https://app.immoviewer.com/portal/tour/3110492?accessKey=67c6
Viele weitere Rundgänge sowie alle neuen s REAL Immobilienangebote finden Sie auf www.sreal.at.
Alle Angaben sind ohne Gewähr und basieren ausschließlich auf Informationen, welche uns von den Eigentümern, Gemeinden, Bauämtern, Hausverwaltungen und etwaigen behördlichen Instanzen zur Verfügung gestellt wurden.
Kauf und Finanzierung aus einer Hand - nutzen Sie die Synergien der Erste Bank & Sparkassen-Unternehmensgruppe. Gerne arrangieren wir für Sie ein unverbindliches Finanzierungsgespräch mit den Finanzierungsspezialisten der Erste Bank & Sparkasse.
Infrastruktur / Entfernungen
Gesundheit
Arzt <500m
Apotheke <8.500m
Krankenhaus <9.500m
Klinik <9.500m
Kinder & Schulen
Schule <500m
Kindergarten <500m
Höhere Schule <5.000m
Nahversorgung
Supermarkt <500m
Bäckerei <500m
Einkaufszentrum <9.000m
Sonstige
Bank <500m
Geldautomat <5.500m
Polizei <500m
Post <500m
Verkehr
Bus <500m
Bahnhof <1.500m
Angaben Entfernung Luftlinie / Quelle: OpenStreetMap
Eckdaten
| Kaufpreis: | 277.000,00 € |
| Fläche: | 163,00 m² |
| Zimmer: | 4 |
Basisdaten zur Immobilie
| Objektnr: | 960/71164 |
| Art: | Haus |
| Land: | Österreich |
| Baujahr: | 2022 |
| Zustand: | Rohbau |
| Alter: | Neubau |
| Kaufpreis: | 277.000,00 € |
| Provision: | 3% des Kaufpreises zzgl. 20% USt. |
| Nutzfläche: | 163,00 m² |
| Grundstücksfl.: | 1.663,00 m² |
| Zimmer: | 4 |
| Bäder: | 1 |
| WC: | 1 |
| Garten: | 1.248,00 m² |
| Keller: | 171,00 m² |
| Heizwärmebedarf: | B 47,80 kWh/m²a |
| fGEE: | A+ 0,56 |
Ausstattung
Wasch/Trockenraum
Internet und TV
Information zur Internet und TV Versorgung hier
Ihre persönliche Beratung
Heiko Mlejnek
s REAL Immobilienvermittlung GmbH
heiko.mlejnek@sreal.at
+43 (0)5 0100 - 26234
+43 664 78040849
