Wohnen am Puls der Stadt – Erstbezug in Döblinger Bestlage!
Wohnung
,
1190
Wien
,
Heiligenstädter Straße
Lage der Immobilie
Diese Immobilie befindet sich in einer hervorragenden Lage in der Heiligenstädter Straße, 1190 Wien. Nur wenige Gehminuten zur U4-Station Heiligenstadt, bietet sie eine optimale Anbindung an das öffentliche Verkehrsnetz. In der unmittelbaren Umgebung finden Sie alles, was das Leben angenehm macht: Ärzte, Apotheken, Schulen, Kindergärten sowie Einkaufsmöglichkeiten. Auch Banken, Geldautomaten und Freizeitmöglichkeiten sind bequem erreichbar. Ideal für Familien und Berufstätige!Beschreibung der Immobilie
Wohnen am Puls der Stadt – Erstbezug in Döblinger Bestlage!
Im lebendigen 19. Bezirk Wiens, nur einen Katzensprung von der Innenstadt entfernt, entsteht ein exklusives Wohnprojekt, das 39 moderne Eigentumswohnungen und 4 Atriumwohnungen umfasst.
Mit großzügigen Raumkonzepten von 2 bis 4 Zimmern und Größen zwischen 44 und 120 m² bietet es Platz für individuelles Wohnen in einer der begehrtesten Lagen der Stadt.
Heiligenstadt kombiniert das lebendige Stadtleben mit der Ruhe der Natur. Die Nußdorfer Heurigen sowie die Nähe zu Kahlenberg und Cobenzl bieten perfekte Möglichkeiten für entspannte Spaziergänge und vielfältige Freizeitaktivitäten. Das nahegelegene Q19 Einkaufsquartier sorgt zudem für ein abwechslungsreiches Shopping-Erlebnis. Ein Ort, an dem Urbanität und Natur in perfekter Harmonie verschmelzen.
Das Projekt:
- 39 Eigentumswohnungen
- 4 Atriumwohnungen im Erdgeschoß
- 2 bis 4 Zimmerwohnungen mit Größen von 44 bis 120 m²
- Hauseigene Tiefgarage mit 20 Stellplätzen
- Ein Kellerabteil zu jeder Wohnung
- Fahrrad- und Kinderwagenabstellraum
- Kleinkinderspielplatz im Innenhof der Anlage
Die Ausstattung:
- Fußbodenheizung über Fernwärme mit Einzelraumregelung
- Klimaanlagen in allen Wohnungen des 1. DG und 2. DG
- Kunststofffenster mit 3-fach Verglasung
- Außenbeschattung bei allen Fenstern in Form von Rollläden (EG und 1. OG) bzw. Raffstores (ab dem 2. OG)
- Videogegensprechanlage
- Vorbereitungen in der Tiefgarage zur Nachrüstung von E-Ladestationen
Die Lage & Infrastruktur:
Bahnhof Wien Heiligenstadt – 5 Gehminuten entfernt – mit folgenden Anbindungen:
- U4-Station „Heiligenstadt“
- Buslinien 10A, 11A und 39A
- S-Bahn-Linie S45 sowie Regionalzüge
- Straßenbahnlinie D – 3 Gehminuten entfernt
Ein Stellplatz in der Tiefgarage kann zusätzlich um EUR 38.000,- erworben werden (nur für Käufer der 3-4 Zimmerwohnungen).
Der Verkauf erfolgt provisionsfrei für den Käufer!
Fertigstellung geplant: voraussichtlich Mai 2027
Ein detaillierten Überblick finden Sie auf unserer EHL-Projekthomepage.
Visualisierung (Symbolbild) © JamJam
Wir weisen darauf hin, dass zwischen dem Vermittler und dem zu vermittelnden Dritten ein familiäres oder wirtschaftliches Naheverhältnis besteht.
Der Vermittler ist als Doppelmakler tätig.
Infrastruktur / Entfernungen
Gesundheit
Arzt <250m
Apotheke <250m
Klinik <1.000m
Krankenhaus <1.250m
Kinder & Schulen
Schule <750m
Kindergarten <250m
Universität <500m
Höhere Schule <750m
Nahversorgung
Supermarkt <250m
Bäckerei <500m
Einkaufszentrum <1.000m
Sonstige
Geldautomat <250m
Bank <250m
Post <500m
Polizei <500m
Verkehr
Bus <250m
U-Bahn <250m
Straßenbahn <250m
Bahnhof <500m
Autobahnanschluss <1.000m
Angaben Entfernung Luftlinie / Quelle: OpenStreetMap
Eckdaten
| Kaufpreis: | 1.217.500,00 € |
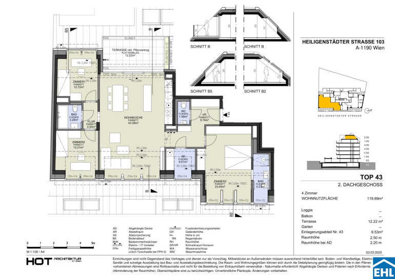
| Fläche: | 119,69 m² |
| Zimmer: | 4 |
Basisdaten zur Immobilie
| Objektnr: | 83649 |
| Art: | Wohnung |
| Land: | Österreich |
| Baujahr: | 2025 |
| Zustand: | Erstbezug |
| Alter: | Neubau |
| Kaufpreis: | 1.217.500,00 € |
| Provision: | Provisionsfrei für den Käufer |
| Betriebskosten: | 259,27 € |
| Heizkosten: | 37,40 € |
| MwSt Gesamt: | 29,67 € |
| Wohnfläche: | 119,69 m² |
| Zimmer: | 4 |
| Bäder: | 2 |
| WC: | 2 |
| Terrassen: | 1 |
| Heizwärmebedarf: | A 23,80 kWh/m²a |
| fGEE: | A 0,73 |
Ausstattung
Parkett, Fliesen, Fußbodenheizung, Wohnküche / offene Küche, Personenaufzug, Westbalkon, Badewanne, Dusche, Tiefgarage
Internet und TV
Information zur Internet und TV Versorgung hier
Ihre persönliche Beratung
Julie Wittrich
EHL Immobilien GmbH
j.wittrich@ehl.at
+43 1 5127690405
+43 664 780 15 358
