Beschreibung der Immobilie
Sie wünschen sich ein Zuhause, das Raum zum Wachsen bietet, in ruhiger Lage liegt und gleichzeitig Platz für all Ihre Abenteuerideen hat? Dann wird dieses charmante Einfamilienhaus in Lungötz Ihre Familie begeistern.
Am Ende einer kleinen Sackgasse gelegen, finden Ihre Kinder hier ein sicheres Umfeld zum Spielen und Radfahren. Die ruhige Siedlung ist umgeben von Natur – perfekt für Spaziergänge, kleine Wanderungen oder Schneemannbauen im Winter.
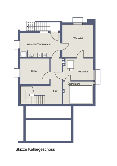
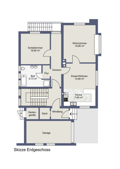
Mit ca. 155 m² Wohnfläche auf drei Etagen und einer Grundstücksgröße von ca. 793 m² ist genügend Platz für alle da – drinnen wie draußen! Das Haus wurde teilerneuert und punktet mit klassischem Charme und praktischem Grundriss.
Garten für Groß und Klein. Ob Trampolin, Gemüsebeet, Sandkasten oder Familiengrillabende – der Garten bietet viel Platz und Möglichkeiten. Hier kann Ihr Familienleben richtig aufblühen.
Fragen Sie gleich an! Ich sende Ihnen gern weitere Unterlagen und Details zur Immobilie.
Infrastruktur / Entfernungen
Gesundheit
Arzt <3.500m
Apotheke <9.500m
Krankenhaus <9.500m
Kinder & Schulen
Schule <3.500m
Kindergarten <8.000m
Nahversorgung
Bäckerei <3.500m
Supermarkt <500m
Einkaufszentrum <8.500m
Sonstige
Geldautomat <3.500m
Bank <3.500m
Post <3.500m
Polizei <9.000m
Verkehr
Bus <500m
Autobahnanschluss <8.000m
Bahnhof <9.000m
Angaben Entfernung Luftlinie / Quelle: OpenStreetMap
Eckdaten
| Objektnr: | 960/71876 |
| Art: | Haus |
| Land: | Österreich |
| Baujahr: | 1976 |
| Kaufpreis: | 445.000,00 € |
| Provision: | 3% des Kaufpreises zzgl. 20% USt. |
| Grundstücksfl.: | 793,00 m² |
| Heizwärmebedarf: | G 266,00 kWh/m²a |
| fGEE: | E 2,54 |
Internet und TV
Information zur Internet und TV Versorgung hier
Ihre persönliche Beratung
Mag. Dr. Alois Nußbaumer
s REAL Immobilienvermittlung GmbH
alois.nussbaumer@sreal.at
+43 (0)5 0100 - 26334
+43 664 6204191
