Lage der Immobilie
Absolutes Zentrum in der Bezirkshauptstadt von Amstetten!!!!!Beschreibung der Immobilie
Die vermieteten Büroräumlichkeiten befinden sich im Erdgeschoss eines generalsanierten Mehrparteienhauses, welches sich inmitten des Stadtzentrums direkt am Hauptplatz von Amstetten befindet.
Highlights:
- Topzustand nach Neusanierung
- beste Lage
- Top Ausstattung
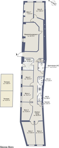
Raumaufteilung:
- insgesamt sind 7 Büroräume und ein größerer Besprechungsraum vorhanden
- Küche
- Herren- und Damen-WC getrennt, sowie zusätzlich ein Behinderten-WC
- 1 Abstellraum und 1 Technikraum
- 2 Terrassenflächen im Innenhof
Weiteres:
- barrierefreier Zugang
- Hauszentralheizung, Warmwasser-Elektroboiler
- Kunststofffenster
- Telefon, Internet, Kabel-TV
- 3 Kellerabteile
- Gemeinschaftsräume: Fahrradabstellraum/Kinderwagenabstellraum
- Energiekennzahlen: HWB = 35 kWh/m²a, fGEE = 0,82
Vermietung: Die Räumlichkeiten sind seit 01.08.2013 unbefristet vermietet, mit langfristiger Kündigungsmöglichkeit für Mieterin und Vermieterin. Der Mietvertrag ist wertgesichert.
Rendite: Die Rendite beträgt ca. 5 %.
ACHTUNG: Es wird ausdrücklich darauf hingewiesen, dass es sich bei diesem Verkauf um einen umsatzsteuerpflichtigen Verkauf handelt und daher zum angeführten Nettokaufpreis von € 595.000,00 noch 20% USt hinzukommen. Es ergibt sich daher ein Bruttokaufpreis von € 714.000,00.
Infrastruktur / Entfernungen
Gesundheit
Arzt <500m
Apotheke <500m
Klinik <1.500m
Krankenhaus <1.000m
Kinder & Schulen
Schule <500m
Kindergarten <500m
Höhere Schule <6.000m
Nahversorgung
Supermarkt <500m
Bäckerei <500m
Einkaufszentrum <500m
Sonstige
Bank <500m
Geldautomat <500m
Post <500m
Polizei <500m
Verkehr
Bus <500m
Autobahnanschluss <2.500m
Bahnhof <1.000m
Flughafen <6.500m
Angaben Entfernung Luftlinie / Quelle: OpenStreetMap
Eckdaten
| Kaufpreis: | 595.000,00 € |
| Fläche: | 230,06 m² |
Basisdaten zur Immobilie
| Objektnr: | 960/71821 |
| Art: | Büro / Praxis |
| Land: | Österreich |
| Baujahr: | 2013 |
| Kaufpreis: | 595.000,00 € |
| Kaufpreis / m²: | 2.586,28 € |
| Provision: | 3% des Kaufpreises zzgl. 20% USt. |
| Betriebskosten: | 356,67 € |
| MwSt Gesamt: | 71,33 € |
| Nutzfläche: | 230,06 m² |
| Bürofläche: | 230,06 m² |
| WC: | 3 |
| Terrassen: | 2 |
| Keller: | 25,55 m² |
| Heizwärmebedarf: | B 35,00 kWh/m²a |
| fGEE: | A 0,82 |
Ausstattung
Gas, Zentralheizung, Personenaufzug, Kabel/Satelliten-TV
Internet und TV
Information zur Internet und TV Versorgung hier
Ihre persönliche Beratung
Herbert Schnettgen
s REAL Immobilienvermittlung GmbH
herbert.schnettgen@sreal.at
+43 (0)5 0100 - 25483
+43 664 8184323
