Immobilie merken

EXKLUSIVES BÜRO IN TOPLAGE - 263 m²!

Büro / Praxis - Bürofläche, 3100 St. Pölten

Lage der Immobilie

Altstadt, Bahnhofsnähe, Frequenzlage, Fußgängerzone, öffentl. Verkehrsmittel, repräsentativ, Zentrum

Beschreibung der Immobilie

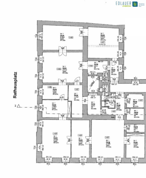
EXKLUSIVES BÜRO IN TOPLAGE in der Fußgängerzone von St. Pölten! Lage: BÜRO in TOPLAGE innerhalb der Fußgängerzone, direkt beim RATHAUSPLATZ! HOHE GRUNDFREQUENZ durch: Fußgängerzone, Rathausplatz, Kaffeehäuser und diverse andere Geschäfte. NÜTZEN SIE DIE CHANCE auf einen der attraktivsten und besten Standorte in der St. Pöltener Fußgängerzone für Ihren 1. Standort oder für die Standortoptimierung bestehender Standorte! Mietfläche und Raumaufteilung: Büro im 1.OG (mit Lift) mit einer Nutzfläche von ca. 263 m² bestehend aus: 3 Vorräume, Wartebereich, Serverraum, 2 Abstellräume, Teeküche inkl. Nebenraum, 8 Büroräume, und 3 WC´s; Hochwertige Ausstattung Verwendungsmöglichkeit: Aufgrund der sehr guten Lage im Stadtzentrum innerhalb der Fußgängerzone für fast alle Dienstleistungszwecke geeignet. Monatliche Kosten: Die monatliche Miete von EUR 4.875,25 versteht sich inklusive Betriebskosten, Wasser, Lift-Betriebskosten und gesetzlicher Umsatzsteuer. Die verbrauchsabhängigen Kosten für Strom werden direkt mit dem Energieversorgungsunternehmen verrechnet. Heizung: Die Beheizung der Büroräumlichkeiten erfolgt mittels einer Fernwärme-Zentralheizung. Zudem ist ein Heizkostenakonto von monatlich EUR 453,60 zzgl. USt. vorgeschrieben. Vertragskonditionen: Der Mietvertrag wird je nach Vereinbarung abgeschlossen. (Richtwert 4-8 Jahre) Öffentliche Verkehrsmittel: Etwa 4 Gehminuten von dem Büro entfernt befindet sich der Busbahnhof beziehungsweise auch der Zugbahnhof. Verfügbarkeit: Das Objekt ist ab sofort verfügbar. Nebenkosten: a) Kaution: EUR 16.000,- b) Vergebührung: abhängig von vereinbarter Mietdauer c) Vermittlungsprovision: 3 BMM zzgl. 20% USt. Energiekennzahl: Die Liegenschaft besitzt die Kennzahl C bei einem Heizwärmebedarf (HWB) von 95,6 kWh/m² und einem Gesamt-Energieeffizienz-Faktor (fGEE) von 1,45. Hinweis auf Naheverhältnis: Wir weisen darauf hin, dass zum Vermieter ein wirtschaftliches Naheverhältnis besteht (wiederholte Beauftragungen). Besichtigung: Für Rückfragen sowie zur Vereinbarung eines unverbindlichen Besichtigungstermins stehen wir Ihnen gerne zur Verfügung. Objektnummer: 7980 Halten Sie bitte bei telefonischen Auskünften diese Objektnummer bereit. Wir ersuchen aus organisatorischen Gründen (Datenbankpflege) und aufgrund unserer Nachweispflicht gegenüber dem Abgeber um vollständige Angabe Ihrer Kontaktdaten einschließlich Vor- und Zuname, Adresse und Telefonnummer. Der Schutz Ihrer personenbezogenen Daten ist uns ein großes Anliegen. Wir verwenden Ihre Daten für die Interessenten- und Kundenverwaltung im Rahmen der Immobilienvermittlung (z.B. für die Zusendung von Immobilienangeboten). Die Rechtsgrundlage dafür bildet – sofern nicht eine gesetzliche Grundlage vorliegt – ein abgeschlossener Vertrag bzw. eine Vertragsanbahnung (Vermittlungsvertrag). Die Weitergabe personenbezogener Daten erfolgt ohne ausdrückliche separate Einwilligung nur insoweit, wie es für Vertragsabwicklungen erforderlich ist. Keinesfalls werden Ihre Daten zu Werbezwecken o.ä. weitergegeben. Unsere Mitarbeiter und unsere Dienstleistungsunternehmen sind zur Verschwiegenheit und zur Einhaltung der Datenschutzbestimmungen verpflichtet. Lesen Sie mehr in unserer Datenschutzerklärung auf unserer Homepage.

Eckdaten

Gesamtmiete: 4.875,25 €
Fläche: 263,00 m²
Zimmer: 9

Basisdaten zur Immobilie

Objektnr: 202/07980
Art: Büro / Praxis - Bürofläche
Land: Österreich
Gesamtmiete: 4.875,25
Kaltmiete (netto): 3.419,00 €
Kaltmiete: 4.062,71 €
Miete / m²: 13,00 €
Provision: 3 BMM
Nutzfläche: 263,00 m²
Zimmer: 9
WC: 3
Heizwärmebedarf:  C  95,60 kWh/m²a
fGEE:  C  1,45

Ausstattung

Zentralheizung, Fernwärme, Personenaufzug



Internet und TV

Information zur Internet und TV Versorgung hier




Immobilie anfragen




Ihre persönliche Beratung

Realkanzlei Edlauer Immobilientreuhänder

Gregor LAMP

Realkanzlei Edlauer Immobilientreuhänder

g.lamp@edlauer.com

+43/2742/35243854

+43/660/507 90 96

F +43/2742/352438 - 3


Realkanzlei Edlauer Immobilientreuhänder - Immobilen Makler

Josefstraße 19, 3100 St. Pölten

+43/2742/352438-0

https://www.edlauer.com