Gediegene Bürofläche in Amstettner Betriebsgebiet Nord - Obergeschoss 1!

Büro / Praxis - Bürofläche, 3300 Amstetten

Lage der Immobilie

Im nördlichen Betriebsgebiet Amtstetten-Ardagger befindet sich diese idealerweise als Büro genutzte Fläche, eingebettet in das Areal eines größeren Logistikunternehmens.


Leicht erreichbar sind für Sie auch das nahe Mühlviertel, das Ybbstal, und vor allem die nahen Autobahnanschlusstelle Amstetten West!

Beschreibung der Immobilie

Eine gediegene Bürofläche für Interessenten mit Anspruch, können wir Ihnen ab sofort im Betriebsgebiet Amstetten-Nord / Ardagger anbieten!

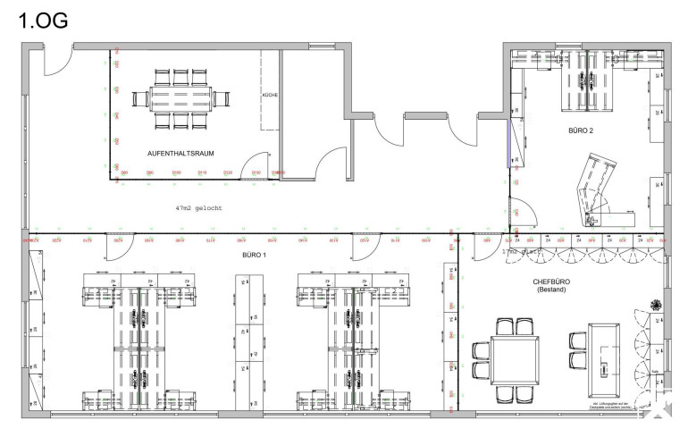
Ein ganzes Geschoß - selbstverständlich mit Lift erreichbar, das fünf Büros, Sanitär- und Technikräume, wie auch einen Aufenthaltsraum nebst Küche umfasst, wartet auf Sie und Ihre Mitarbeiter! Vollständige Infrastruktur dank Betriebsgebiet, fünf PKW-Abstellplätze und vieles mehr erwarten Sie vor Ort:

  • Empfang/Hauptgang mit Zugang zu allen Räumen
  • Mehrere Büro-/Besprechungsräume mit Glaswänden abgeteilt
  • Alarmanlage, Videoüberwachung, Zutrittssystem
  • Glasfaserinternetanbindung
  • Fußbodenheizung & Klimaanlagen in jedem Büroraum
  • adäquate Sanitärräumlichkeiten
  • Aufenthaltsraum mit neuwertiger Teeküche
  • FÜNF Parkplätze vor dem Gebäude zur eigenen Nutzung, auf Wunsch mit Ladestation versehbar

Wir würde uns über Ihr Interesse freuen, und bitte um schriftliche Kontaktaufnahme in der von Ihnen verwendeten Internetplattform!

Eckdaten

Objektnr: 0001009820
Art: Büro / Praxis - Bürofläche
Land: Österreich
Baujahr: 2016
Gesamtmiete: 2.517,65
Kaltmiete (netto): 1.880,00 €
Kaltmiete: 2.098,04 €
Miete / m²: 9,60 €
Provision: 3 Bruttomonatsmieten plus 20% USt.
Betriebskosten: 218,04 €
Nutzfläche: 235,00 m²
Grundstücksfl.: 235,00 m²
Zimmer: 6
WC: 2
Heizwärmebedarf:  A  21,00 kWh/m²a
fGEE:  A  0,71
Immobilie merken Exposé

Ausstattung

Fußbodenheizung, Einbauküche


Internet und TV

Information zur Internet und TV Versorgung hier


Immobilie anfragen


Ihre persönliche Beratung

Raiffeisen Immobilien Vermittlung Ges.m.b.H

DI(FH) Hubert Poustka

Raiffeisen Immobilien Vermittlung

E hubert.poustka@riv.at

T +4351751706646051751756