Neuer Preis - Neu renoviert! 2-Zimmer-Wohnung in Graz!

Wohnung - Etage, 8020 Graz

Beschreibung der Immobilie

Klein, fein & umfassend saniert!

So präsentiert sich diese 2-Zimmer-Wohnung im 5. Stock (mit Lift!) eines Mehrparteienhauses in der Elisabethinergasse 22 im Bezirk Gries in Graz.

Die Renovierungsarbeiten (Malerarbeiten, neu verlegte Echtholzböden, neue Strom- und Wasserleitungen, neuer Sicherungskasten, neue Küche mit AEG Einbaugeräten) in der Wohnung wurden erst vor kurzem abgeschlossen. In der Speis/Abstellraum wurde ein neuer Waschmaschinenanschluss installiert. Sanierungsarbeiten am Haus (Dachsanierung, Thermoputz) wurden vor ca. 15 Jahren durchgeführt.

In jeder Etage (Zwischenstock) befindet sich ein Gemeinschaftsbalkon mit Blick in den Innenhof. Ebenfalls im Innenhof können Parkplätze je nach Verfügbarkeit angemietet werden.
Ein zugehöriges Kellerabteil ergänzt das Raumangebot.

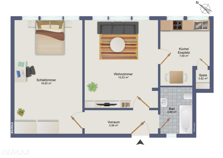
RAUMAUFTEILUNG:
- Vorraum
- Wohnzimmer
- Schlafzimmer
- Küche mit kleinem Essplatz und Speis/Abstellraum
- Bad mit Wanne und WC

INFRASTRUKTUR:
Den Hauptplatz der Landeshauptstadt erreichen Sie in wenigen Fahrminuten. Weitere Informationen und Details zur Infrastruktur entnehmen Sie bitte beiliegendem Lage-Exposé!

Sie interessieren sich für diese Wohnung? Vereinbaren Sie gleich Ihren ganz persönlichen Besichtigungstermin. Wir freuen uns auf Sie!

Wir weisen darauf hin, dass es sich bei diesem Preis um einen Richtpreis handelt, der sich aufgrund der Nachfragesituation nach oben oder unten verändern kann, vorbehaltlich Annahme durch den Abgeber.
Angaben gemäß gesetzlichem Erfordernis:
Heizwärmebedarf:65.0 kWh/(m²a)
Klasse Heizwärmebedarf:C

Ein Haus zu viel, eine Wohnung zu wenig?



Wir helfen gerne!



Wir sind Ihre Immobilienexperten für Graz und Umgebung und suchen für vorgemerkte Interessenten Häuser, Wohnungen und Baugrundstücke! Ebenso bieten wir Ihnen eine kostenlose, seriöse Beratung und eine Bewertung Ihrer Immobilie an.



RE/MAX for all, Conrad-von-Hötzendorf-Straße 37a, 8010 Graz, Tel.: 0316 815 915, Mail: office@remax-for-all.at

Eckdaten

Objektnr: 1606_16481
Art: Wohnung - Etage
Land: Österreich
Baujahr: ca. 1953
Zustand: Gepflegt
Kaufpreis: 139.000,00
Provision: 3.00 %
Wohnfläche: 52,00 m²
Zimmer: 2
Bäder: 1
WC: 1
Keller: 5,00 m²
Heizwärmebedarf:  C  65,00 kWh/m²a
Immobilie merken Exposé

Ausstattung

Zentralheizung, Personenaufzug


Internet und TV

Information zur Internet und TV Versorgung hier


Immobilie anfragen


Ihre persönliche Beratung

RE/MAX for all in Graz

Andreas Malli

RE/MAX for all in Graz

E a.malli@remax-for-all.at

H +43 650 22 555 66