Investieren in Reihenhäuser in St. Pölten – Jetzt investieren, langfristig profitieren.
Haus
- Doppelhaushälfte,
3100
St. Pölten
,
Waldstraße
Lage der Immobilie
Gelegen an der Waldstraße/Ecke Haydnstraße in St. Pölten genießt man die Vorzüge zweier Welten. Zum einen befinden Sie sich mitten im Grünen und können die Natur genießen. Zum anderen sind die Innenstadt und der Bahnhof bequem zu Fuß erreichbar. Darüber hinaus gibt es Schulen und Einkaufsmöglichkeiten in unmittelbarer Nähe, was diese Lage sehr attraktiv macht.Beschreibung der Immobilie
JETZT NEU – Vorsorgeimmobilie erwerben und Grunderwerbsteuer sparen!
Willkommen im exklusiven Neubauprojekt „Nova Terra – Wohnen mit Perspektive“
In erstklassiger Lage am Eisberg in St. Pölten entstehen 56 moderne Reihen- und Doppelhäuser – ein Investment mit Zukunft! Diese einzigartige Wohnanlage vereint modernes Design, nachhaltige Bauweise und hohe Lebensqualität in naturnaher Umgebung. Gleichzeitig überzeugt sie durch die Nähe zur Stadt – ideal für Eigennutzer wie auch Kapitalanleger.
Dank durchdachter Grundrisse, hochwertiger Ausstattung und attraktiver Förderungen bietet dieses Projekt ideale Voraussetzungen für eine zukunftssichere Anlage. Die massive Ziegelbauweise in Kombination mit Energieeffizienzklasse A, Smart-Home-Lösungen und optionalem Keller verspricht langfristige Wertbeständigkeit.
Ein besonderes Highlight für Anleger: Der Bauträger übernimmt die Grunderwerbsteuer in Höhe von 3,5 % – das bedeutet bares Geld sparen beim Kauf.
Das Projekt
· 56 Reihen- und Doppelhäuser – ideal für Familien, Paare und Mieter
· 99 – 109 m² Wohnfläche, verteilt auf 3 Etagen, teilweise mit eigenem Keller
· 4 Zimmer – flexibel nutzbar als Schlafzimmer, Homeoffice oder Gästezimmer
· Großzügige Freiflächen: Eigengarten, Terrasse, teils mit Dachterrasse
· 2 Tiefgaragenplätze pro Einheit inklusive (auf Wunsch 3 möglich)
Die Ausstattung
Die nachhaltige und komfortorientierte Ausstattung gewährleistet nicht nur hohe Wohnqualität, sondern auch geringe Betriebskosten – ein Vorteil bei langfristiger Vermietung:
- Luft-/Wasserwärmepumpe – effizient & umweltschonend
- Photovoltaikanlage – reduziert laufende Energiekosten
- Fußbodenheizung – wartungsarm und komfortabel
- 3-fach verglaste Kunststoff-Alufenster mit Außenbeschattung
- Exklusive Holzböden & moderne Designerfliesen
- KNX-System – vorbereitet für intelligentes Wohnen (Smart Home Ready)
Kaufpreise der Vorsorgewohnungen
von EUR 410.526,- bis EUR 515.024,- netto zzgl. 20% USt.
Zu erwartender Mietertrag
von ca. EUR 12,75 bis EUR 14,50 netto/m²
Provisionsfrei für den Kunden!
Fertigstellung: bereits erfolgt
Bei diesem Angebot handelt es sich um eine Vorsorgewohnung, die zu Vermietungszwecken erworben wird. Der angegebene Kaufpreis versteht sich daher zzgl. 20% USt. Diese Daten sind vorbehaltlich möglicher Änderungen.
Ein detaillierten Überblick finden Sie auf unserer EHL-Projekthomepage!
Wir weisen darauf hin, dass zwischen dem Vermittler und dem zu vermittelnden Dritten ein familiäres oder wirtschaftliches Naheverhältnis besteht.
Infrastruktur / Entfernungen
Gesundheit
Arzt <1.750m
Apotheke <2.000m
Klinik <2.250m
Krankenhaus <2.250m
Kinder & Schulen
Schule <1.250m
Kindergarten <1.000m
Universität <2.500m
Höhere Schule <2.250m
Nahversorgung
Supermarkt <1.750m
Bäckerei <1.250m
Einkaufszentrum <1.750m
Sonstige
Bank <1.750m
Geldautomat <1.750m
Polizei <750m
Post <2.000m
Verkehr
Bus <250m
Bahnhof <1.500m
Autobahnanschluss <1.500m
Flughafen <5.500m
Angaben Entfernung Luftlinie / Quelle: OpenStreetMap
Eckdaten
| Objektnr: | 86885 |
| Art: | Haus - Doppelhaushälfte |
| Land: | Österreich |
| Baujahr: | 2025 |
| Zustand: | Erstbezug |
| Alter: | Neubau |
| Kaufpreis: | 460.524,00 € |
| Kaufpreis / m²: | auf Anfrage |
| Provision: | Provision bezahlt der Abgeber. |
| Betriebskosten: | 160,00 € |
| MwSt Gesamt: | 16,00 € |
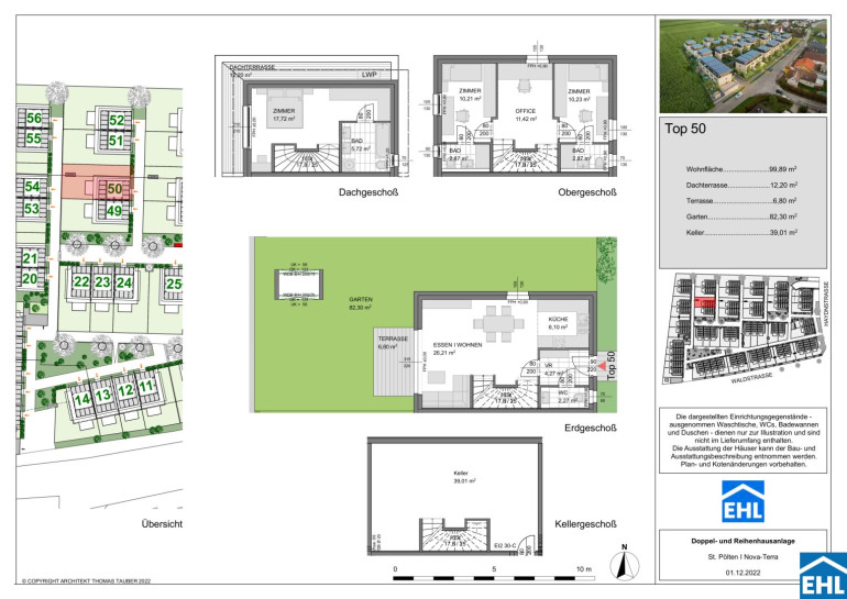
| Wohnfläche: | 99,89 m² |
| Zimmer: | 4 |
| Bäder: | 3 |
| WC: | 4 |
| Terrassen: | 2 |
| Garten: | 82,30 m² |
| Keller: | 39,01 m² |
| Heizwärmebedarf: | B 40,63 kWh/m²a |
| fGEE: | A 0,82 |
Ausstattung
Fliesen, Parkett, Fußbodenheizung, Bad mit Fenster, Badewanne, Dusche, Tiefgarage
Internet und TV
Information zur Internet und TV Versorgung hier
Ihre persönliche Beratung
Andrea PÖCHHACKER; MSc
EHL Immobilien GmbH
E a.poechhacker@ehl.at
T +4315127690 DW 411
H +43664 83 73 481
