Eigentumswohnungen in innovativer Holzbauweise

Wohnung , 4553 Schlierbach

Beschreibung der Immobilie

Innovative und nachhaltige Modulbauweise aus Holz

Fertigungsprozess von der Außenwand bis zur Zarge: Alles aus einer Hand

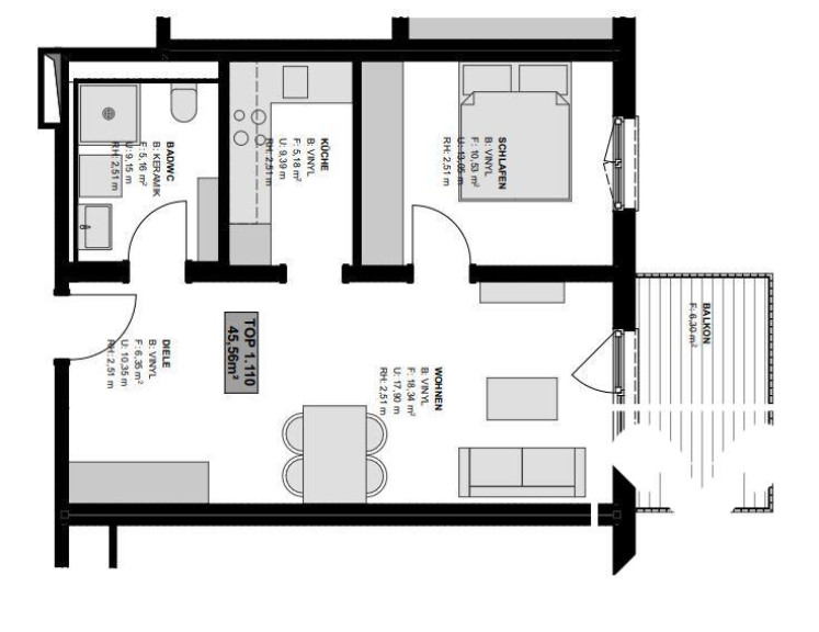
► Vielfältige Wohnungsgrößen: Unsere Wohnungen bieten mit Flächen von 45,56 bis 94,88 m² den idealen Wohnraum für unterschiedliche Bedürfnisse.

► Tiefgarage: Beide Gebäude verfügen über eine Tiefgarage, die einen

Fahrradabstellraum und einen separaten Abstellraum pro Wohneinheit beinhaltet.

► Komfortable Erschließung: Beide Häuser sind mit einem modernen Aufzug ausgestattet.

► Niedrigenergiehaus: Unser Projekt zeichnet sich durch energieeffiziente Bauweise mit PV Anlage aus. Dazu gehören auch Schallschutzfenster und eine innovative Heiz-Kühl-Decke.

► Hochwertige Innenausstattung: Die Wohnräume sind mit robustem Vinylboden ausgestattet, während die Sanitärbereiche mit Großkeramikfliesen belegt sind.

Die Badezimmer sind mit einer Dusche bzw. Badewanne ausgestattet.

► Freiräume: Jede Wohneinheit verfügt über einen Balkon oder einen kleinen Garten, der zum Entspannen im Freien einlädt.

► Familienfreundlich: Als besonderes Extra bieten wir einen großen Kinderspielplatz, der für Spiel und Spaß sorgt.

► Qualität und Ausstattung: Wir legen großen Wert auf Qualität und statten unsere Wohnungen ausschließlich mit Produkten der Firma Laufen aus. 

Glasfaser vorhanden

Ein Tiefgaragenstellplatz EUR 22.000,- verpflichtend

Zweiter TG Stellplatz um EUR 22.000,- und Außenstellplatz um EUR 6.000,- optional möglich

Eckdaten

Objektnr: 00040060500020
Art: Wohnung
Land: Österreich
Baujahr: 2025
Möbliert: Teil
Kaufpreis: 189.200,00
Provision: 6336.00
Wohnfläche: 45,56 m²
Zimmer: 2
Bäder: 1
WC: 1
Keller: 3,00 m²
Heizwärmebedarf:  B  27,00 kWh/m²a
fGEE:  A  0,71
Immobilie merken Exposé

Ausstattung

Fußbodenheizung, Personenaufzug, Dusche


Internet und TV

Information zur Internet und TV Versorgung hier


Immobilie anfragen


Ihre persönliche Beratung

Real-Treuhand Immobilien Vertriebs GmbH

Ursula Mizelli

Real-Treuhand Immobilien

E mizelli@raiffeisen-immobilien.at

T +43 50 6596 8002

H +43 676 8142 82862