Büro - Geschäftslokal - Ordination - Praxis | 2 PKW-Stellplätze
Halle / Lager / Produktion
- Service,
2100
Korneuburg
,
Wiener Straße
Lage der Immobilie
Korneuburg - Wiener Straße | 300 Meter zum HauptplatzBeschreibung der Immobilie
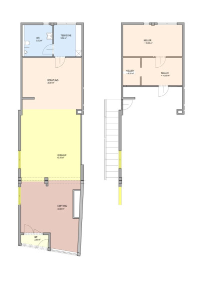
Dieses vielseitige Geschäftslokal in zentraler Lage von Korneuburg eignet sich perfekt für Büro, Praxis, Handel oder Studio. Mit einer Fläche von ca. 130 m², großen Schaufenstern und zwei eigenen Parkplätzen bietet die Immobilie beste Voraussetzungen für Ihren Geschäftserfolg (unmöbliert).
Highlights:
- 130 m² Geschäftsfläche im Erdgeschoss
- 40 m² Kellerfläche – ideal als Lager oder Archiv
- 2 PKW-Stellplätze direkt vor der Tür
- Barrierefreier Zugang
- Klimaanlage & Infrarotheizung
- Komplett saniert 2014, Fassade & Fenster 2015
- Sofort bezugsfertig
- Hohe Sichtbarkeit an der Wienerstraße
Lage & Infrastruktur:
- Nur 300 m zum Hauptplatz – mitten im Zentrum!
- Bahnhof und Regionalbusse in wenigen Minuten erreichbar
- Direkte Autobahnanbindung (A22, ca. 5 Min.)
- Billa Plus, Banken, Ärzte, Fachärzte, Gastronomie und viele weitere Einkaufsmöglichkeiten in unmittelbarer Nähe
- Zahlreiche Schulen und Kindergärten in der Umgebung
Die Umgebung ist geprägt von neu errichteten Wohnanlagen und zahlreichen Geschäften, was die Kundenfrequenz deutlich erhöht. Damit ist dieser Standort langfristig attraktiv für Unternehmen.
Weitere Vorteile:
- Helle, flexibel gestaltbare Räume
- Hohe Decken für ein großzügiges Raumgefühl
- Klimaanlage
Noch nichts gefunden? Wir informieren Sie über geeignete Immobilienangebote noch vor allen anderen.
Legen Sie jetzt Ihren individuellen Suchagenten unter folgendem Link an. Wir schicken Ihnen passende Immobilien exklusiv vorab zu.
Suchagent anlegen - https://accenta-immobilien.service.immo/registrieren/de
Sie möchten Ihre Immobilie verkaufen oder vermieten?
Vertrauen Sie auf unsere Erfahrung – mit geprüfter Qualität und transparenter Abwicklung.
Die Immobilien Card garantiert Ihnen, dass Sie mit einem geprüften Profi für Verkauf und Vermietung sprechen.
Infrastruktur / Entfernungen
Gesundheit
Arzt <2.250m
Apotheke <250m
Krankenhaus <250m
Klinik <4.750m
Kinder & Schulen
Schule <750m
Kindergarten <250m
Universität <6.250m
Höhere Schule <10.000m
Nahversorgung
Supermarkt <250m
Bäckerei <500m
Einkaufszentrum <6.000m
Sonstige
Bank <500m
Geldautomat <500m
Post <750m
Polizei <1.000m
Verkehr
Bus <250m
Straßenbahn <6.750m
Autobahnanschluss <1.250m
Bahnhof <750m
Angaben Entfernung Luftlinie / Quelle: OpenStreetMap
Eckdaten
| Kaufpreis: | 250.000,00 € |
| Fläche: | 130,00 m² |
Basisdaten zur Immobilie
| Objektnr: | 11239 |
| Art: | Halle / Lager / Produktion - Service |
| Land: | Österreich |
| Baujahr: | 1979 |
| Alter: | Neubau |
| Kaufpreis: | 250.000,00 € |
| Kaufpreis / m²: | auf Anfrage |
| Provision: | 3% des Kaufpreises zzgl. 20% USt. |
| Betriebskosten: | 980,10 € |
| MwSt Gesamt: | 196,02 € |
| Nutzfläche: | 130,00 m² |
| Heizwärmebedarf: | C 67,80 kWh/m²a |
| fGEE: | C 1,40 |
Ausstattung
Steinboden, Alternativ, Einbauküche, Parkplatz
Internet und TV
Information zur Internet und TV Versorgung hier
Ihre persönliche Beratung
Michael Riedler
Accenta Immobilien e.U.
michael.riedler@accenta-immo.at
+43 1 997 18 00
+43 699 14228400
F +43 1 997 18 00 – 10
