Büro- und Geschäftsfläche ++ Nähe U1 ++ ERSTBEZUG!!
Büro / Praxis
- Bürofläche,
1220
Wien
Beschreibung der Immobilie
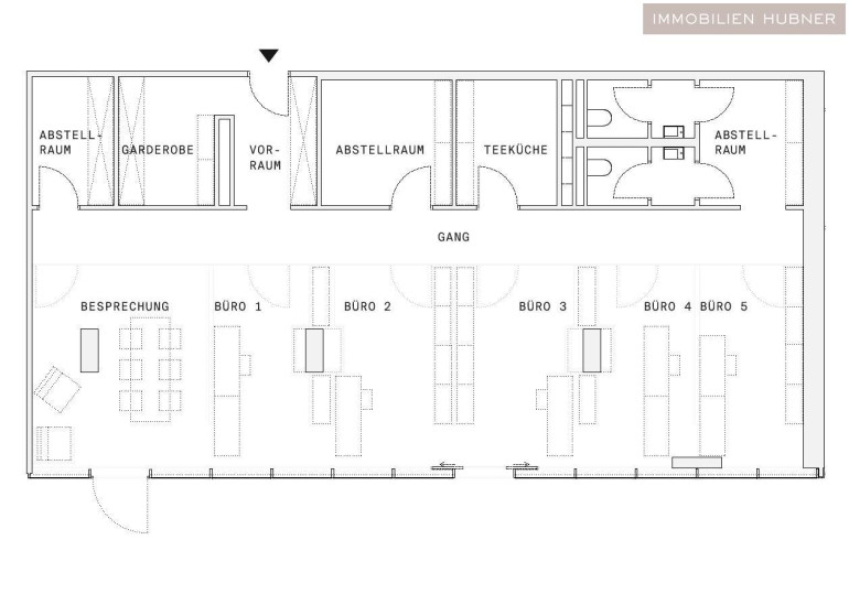
Zur Miete wird diese neu errichtete Gewerbefläche in der Donau-City angeboten.
Die Liegenschaft befindet sich im Erdgeschoß und hat einen eigenen Straßenzugang.
Fußbodenheizung und Deckenkühlung sorgen ganzjährig für ein optimales Raumklima.
Beste öffentliche Verkehrsanbindung ist durch die U1 Station Kaisermühlen/Vienna International Center in unmittelbarer Nähe gegeben.
HIGHLIGHTS UND AUSSTATTUNGSMERKMALE
• ERSTBEZUG
• Flexible Raumaufteilung
• Deckenkühlung
• DV Verkabelung
• Damen und Herren WC
• Flexible Raumaufteilung in Absprache mit dem künftigen Mieter
• Tiefgarage sowohl für Dauer- als auch für Kurzparker (je nach Verfügbarkeit anmietbar)
• barrierefreie Zugänge
• attraktive Gastronomie- und Nahversorgung
• unmittelbare U1 Nähe
SEHR GUTE ÖFFENTLICHE VERKEHRSANBINDUNG
• U-Bahn: U1 Kaisermühlen/ Vienna International Center
• Autobus: 90A, 91A, 92A, 20B
ERSTZAHLUNG UND KONDITIONEN
• Kaution: 6 BMM
• Provision: 3 BMM
• Vergebührung für das Finanzamt
• erste Monatsmiete
• Befristung 10J
• Kündigungsverzicht: 3 J
• Kündigungsfrist 6 M
• Akonto Heizung € 1,51/m² im Monat
• Akonto Kühlung € 0,17/m² im Monat
Gerne beantworte ich Ihre Fragen und freue mich über Ihre Kontaktaufnahme!
KONTAKT
Robert Fried
robert.fried@hubner-immobilien.com, +43 664 88 296 010
____
Angaben gemäß gesetzlichem Erfordernis: | |||
Miete | € | 1697,52 | zzgl 20% USt. |
Betriebskosten | € | 238,85 | zzgl 20% USt. |
Umsatzsteuer | € | 387,27 | |
------------------------------------------------------------------ | |||
Gesamtbetrag | € | 2323,64 |
------------------------------------------------------------------ | |||
Heizwärmebedarf: | 67.7 kWh/(m²a) | ||
Klasse Heizwärmebedarf: | C | ||
Faktor Gesamtenergieeffizienz: | 1.52 | ||
Klasse Faktor Gesamtenergieeffizienz: | C |
Verfügbare Flächen
Stiege/Bauteil
Eckdaten
Objektnr: | 3610_7707 |
Art: | Büro / Praxis - Bürofläche |
Land: | Österreich |
Baujahr: | 2025 |
Zustand: | Erstbezug |
Alter: | Neubau |
Gesamtmiete: | 2.323,64 € |
Kaltmiete (netto): | 1.697,52 € |
Kaltmiete: | 1.936,37 € |
Nutzfläche: | 150,00 m² |
Bürofläche: | 150,00 m² |
WC: | 2 |
Heizwärmebedarf: | C 67,70 kWh/m²a |
fGEE: | C 1,52 |
Ausstattung
Zentralheizung, Personenaufzug
Internet und TV
Information zur Internet und TV Versorgung hier
Ihre persönliche Beratung

Robert Fried
Hubner Immobilien GmbH
E robert.fried@hubner-immobilien.com