Lage der Immobilie
HaberlgasseBeschreibung der Immobilie
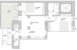
Diese charmante Wohnung befindet sich im Erdgeschoss eines gepflegten Altbaus und besticht durch ihren individuellen Charakter.
Der Zugang erfolgt über den ruhigen Innenhof. Vom Vorraum aus gelangt man in den großzügigen Wohn- und Essbereich mit offener Küche. Ein besonderes Highlight ist die ca. 16,5 m² große Terrasse im Innenhof – eine Oase der Ruhe mitten in der Stadt, ideal zum Entspannen und Genießen.
Zwei gut geschnittene Schlafzimmer sowie ein modernes Badezimmer mit bodengleicher Walk-In-Dusche ergänzen das Raumangebot.
Die Wohnung wurde hochwertig saniert und bietet ein hohes Maß an Wohnkomfort.
Die Wohnung ist ab 01.01.2028 bestandsfrei und verfügbar.
Lage und Umgebung:
Die Lage an der Koppstraße 38 / Ecke Haberlgasse im aufstrebenden Ottakring überzeugt durch ihre Vielseitigkeit:
Eine ausgezeichnete Anbindung an das öffentliche Verkehrsnetz (Straßenbahn, Bus und U-Bahn), eine hervorragende Nahversorgung sowie ein vielfältiges gastronomisches Angebot machen diesen Standort besonders attraktiv. Direkt vor der Haustür laden neu gestaltete, öffentlich zugängliche Freiflächen zum Verweilen ein. Ergänzt wird das urbane Lebensgefühl durch zahlreiche Freizeit- und Kulturangebote in der Umgebung.
Der beliebte Brunnenmarkt und Yppenmarkt mit seinem multikulturellen Flair sind in wenigen Gehminuten erreichbar. Auch die nahegelegene Thaliastraße bietet eine breite Auswahl an Einkaufsmöglichkeiten.
Die öffentliche Verkehrsanbindung ist optimal:
Straßenbahnlinien 9 und 46, die Buslinien 10A und 48A, sowie die nahegelegenen U-Bahnstationen der Linien U3 und U6 sorgen für schnelle Verbindungen in alle Teile der Stadt.
Noch nichts gefunden? Wir informieren Sie über geeignete Immobilienangebote noch vor allen anderen.
Legen Sie jetzt Ihren individuellen Suchagenten unter folgendem Link an. Wir schicken Ihnen passende Immobilien exklusiv vorab zu.
Suchagent anlegen - https://accenta-immobilien.service.immo/registrieren/de
Wir weisen darauf hin, dass zwischen dem Vermittler und dem zu vermittelnden Dritten ein familiäres oder wirtschaftliches Naheverhältnis besteht.
Der Vermittler ist als Doppelmakler tätig.
Sie möchten Ihre Immobilie verkaufen oder vermieten?
Vertrauen Sie auf unsere Erfahrung – mit geprüfter Qualität und transparenter Abwicklung.
Die Immobilien Card garantiert Ihnen, dass Sie mit einem geprüften Profi für Verkauf und Vermietung sprechen.
Infrastruktur / Entfernungen
Gesundheit
Arzt <250m
Apotheke <500m
Klinik <750m
Krankenhaus <1.500m
Kinder & Schulen
Schule <250m
Kindergarten <250m
Universität <1.000m
Höhere Schule <1.000m
Nahversorgung
Supermarkt <250m
Bäckerei <250m
Einkaufszentrum <750m
Sonstige
Geldautomat <250m
Bank <500m
Post <500m
Polizei <500m
Verkehr
Bus <250m
U-Bahn <750m
Straßenbahn <500m
Bahnhof <750m
Autobahnanschluss <4.500m
Angaben Entfernung Luftlinie / Quelle: OpenStreetMap
Eckdaten
| Kaufpreis: | 330.000,00 € |
| Fläche: | 62,45 m² |
| Zimmer: | 3 |
Basisdaten zur Immobilie
| Objektnr: | 11246 |
| Art: | Wohnung |
| Land: | Österreich |
| Alter: | Altbau |
| Kaufpreis: | 330.000,00 € |
| Provision: | 3% des Kaufpreises zzgl. 20% USt. |
| Betriebskosten: | 96,81 € |
| MwSt Gesamt: | 11,55 € |
| Wohnfläche: | 62,45 m² |
| Nutzfläche: | 79,00 m² |
| Gesamtfläche: | 79,00 m² |
| Zimmer: | 3 |
| Bäder: | 1 |
| WC: | 1 |
| Terrassen: | 1 |
| Heizwärmebedarf: | D 94,40 kWh/m²a |
| fGEE: | D 1,95 |
Ausstattung
Parkett, Fliesen, Gas, Zentralheizung, Einbauküche, Personenaufzug, Westbalkon, Dusche
Internet und TV
Information zur Internet und TV Versorgung hier
Ihre persönliche Beratung
Martina Schütz
Accenta Immobilien e.U.
martina.schuetz@accenta-immo.at
+43 1 9971293
+43 699 17089345
F +43 1 997129310
